• 手机版

    扫码体验手机版

  • 微信公众号

    扫码关注公众号

登录注册
游客您好
第三方账号登陆

[衢州] 望潮府17-1-5#99㎡现代简约——治愈

[复制链接]
发表于 2022-5-28 10:02:56 | 显示全部楼层 |阅读模式
望潮府17-1-5#99㎡现代简约——治愈

格堂装饰为您全程记录装修全过程!

小区名称
望潮府
房屋面积
99㎡
户型结构
套房
装修风格
现代
装修方式
半包
装修造价
查看请联系客服万元
设计师
邓工
项目经理
施工
装修公司
格堂装饰
完工实景
完工实景
水电全景
水电全景
VR全景
VR全景
设计说明
全屋以奶茶色为主,适当的留白,整个家弥漫着精致与时尚感,体现了主人对生活品质的追求。暖色的软装搭配并点缀以绿色,纯净自然清新感油然而生,温柔又治愈。
更多信息
效果图
558da97cb34692131ebcd163093dbce.jpg

326632057fe1f0df4daed7997a15092.jpg

f752a27189f390c6c3ea002aeac145c.jpg

a430b7f207707935ff5ae17a812f25f.jpg
回复

使用道具 举报

 楼主| 发表于 2022-5-28 10:07:37 | 显示全部楼层
回复 支持 反对

使用道具 举报

 楼主| 发表于 2022-5-28 10:07:59 | 显示全部楼层
原始结构图
21aa10ddb6612e0c6ee25e98b4d6fa9_副本.png
回复 支持 反对

使用道具 举报

 楼主| 发表于 2022-5-28 10:08:13 | 显示全部楼层
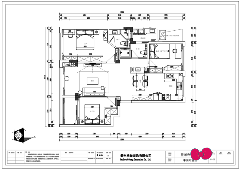
平面布置图
c5f78dd71ff408b90529251ffd07fe3_副本.png
回复 支持 反对

使用道具 举报

 楼主| 发表于 2022-5-28 10:09:13 | 显示全部楼层
开工仪式准备,开工横幅、鲜花、礼花准备到位
IMG_20220527_110815.jpg

IMG_20220527_105841.jpg

回复 支持 反对

使用道具 举报

 楼主| 发表于 2022-5-28 10:10:53 | 显示全部楼层
燃气表保护到位
IMG_20220527_105647.jpg

IMG_20220527_105653.jpg
回复 支持 反对

使用道具 举报

 楼主| 发表于 2022-5-28 10:11:28 | 显示全部楼层
下水管用格堂专用保护盖保护,防止砂石堵塞管道
IMG_20220527_105625.jpg

IMG_20220527_105607.jpg

IMG_20220527_105657.jpg

回复 支持 反对

使用道具 举报

 楼主| 发表于 2022-5-28 10:11:50 | 显示全部楼层
简易马桶到位
IMG_20220527_105615.jpg
回复 支持 反对

使用道具 举报

 楼主| 发表于 2022-5-28 10:12:35 | 显示全部楼层
大门保护到位,防止施工过程中磕碰到
IMG_20220527_105748.jpg
回复 支持 反对

使用道具 举报

 楼主| 发表于 2022-5-28 10:14:14 | 显示全部楼层
拆除放样
IMG_20220527_105957.jpg

IMG_20220527_110013.jpg

IMG_20220527_110307.jpg

IMG_20220527_111229.jpg
回复 支持 反对

使用道具 举报

您需要登录后才可以回帖 登录 | 立即注册

本版积分规则

全国统一客服电话
0570-8028505

24x7小时免费咨询

  • 官方在线客服

    QQ客服:小西

    点击交谈

    QQ客服:良子

    点击交谈

    QQ客服:闵月

    点击交谈
  • 衢州市柯城区财富中心3号楼2楼

  • 衢州格堂装饰有限公司

  • 扫一扫关注官方微信

    获取一手特惠信息

快速回复 返回顶部 返回列表