• 手机版

    扫码体验手机版

  • 微信公众号

    扫码关注公众号

登录注册
游客您好
第三方账号登陆

[常山] 常山百悦城5-3-1#177㎡原木风——自由宁静

[复制链接]
发表于 2022-5-23 15:02:44 | 显示全部楼层 |阅读模式
常山百悦城5-3-1#177㎡原木风——自由宁静

格堂装饰为您全程记录装修全过程!

小区名称
百悦城
房屋面积
177㎡
户型结构
复式
装修风格
日式
装修方式
半包
装修造价
查看请联系客服万元
设计师
郑工
项目经理
施工
装修公司
格堂装饰
完工实景
完工实景
水电全景
水电全景
VR全景
VR全景
设计说明
舒适的家,是量身定制,经得住时间考验的。不需要过多元素堆砌,不需要冗余功能叠加,切实围绕居者真实需求,回归生活本质。通过专业的设计语言让空间开阔、视觉延伸、功能完善,丰盈温润家居,成就真正契合居者内心的家。
更多信息
效果图
4f5357821237736756a4c03a8af109c.jpg

313461ddf2b1a37c852ff974c4d8d99.jpg

b540f2c208f3f9d0fd96cfbee56becd.jpg

ccba5fec06716032540e8390b23fb32.jpg

e5f9b7e4d223ee7730c10a89e1ac527.jpg
回复

使用道具 举报

 楼主| 发表于 2022-5-23 15:03:43 | 显示全部楼层
回复 支持 反对

使用道具 举报

 楼主| 发表于 2022-5-23 15:04:52 | 显示全部楼层
一层原始结构图
c773db9fbbf1ab11a629fb90bbd7edd.png
回复 支持 反对

使用道具 举报

 楼主| 发表于 2022-5-23 15:05:21 | 显示全部楼层
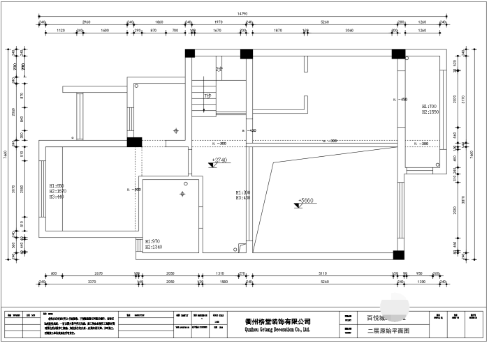
二层原始结构图
7d02d9378403171e717f7d87902f7c4.png
回复 支持 反对

使用道具 举报

 楼主| 发表于 2022-5-23 15:05:47 | 显示全部楼层
一层平面布置图
6cb15ddba5d82f312b49606f21a8883.png
回复 支持 反对

使用道具 举报

 楼主| 发表于 2022-5-23 15:06:07 | 显示全部楼层
二层平面布置图
bf4c23715e5d5641bc05da599bc6b35.png
回复 支持 反对

使用道具 举报

 楼主| 发表于 2022-5-23 15:06:36 | 显示全部楼层
良辰吉日,开工咯!开工仪式准备好。
6fcf37f3c7bef40d1463ae30ce4ab0e.jpg
回复 支持 反对

使用道具 举报

 楼主| 发表于 2022-5-23 15:07:53 | 显示全部楼层
鲜花礼炮也要一起准备好
bef946c24a5f4feafd3e020b509ae0d.jpg

be8d37ff7ab83fb2e872a69446e654e.jpg
回复 支持 反对

使用道具 举报

 楼主| 发表于 2022-5-23 15:08:19 | 显示全部楼层
卫生间简易马桶安装到位,防止后期施工中沙石堵塞进入,既美观又干净!
fe7fad6b582ec83024f61b2a41f17ab.jpg
回复 支持 反对

使用道具 举报

 楼主| 发表于 2022-5-23 15:08:42 | 显示全部楼层
排水管道用格堂专用保护盖保护,防止后期施工中砂石 堵塞管道
1f0950dd48b8e18188f00743bf1ec00.jpg

b37d9b2778391d25ec0090723d711a3.jpg
回复 支持 反对

使用道具 举报

您需要登录后才可以回帖 登录 | 立即注册

本版积分规则

全国统一客服电话
0570-8028505

24x7小时免费咨询

  • 官方在线客服

    QQ客服:小西

    点击交谈

    QQ客服:良子

    点击交谈

    QQ客服:闵月

    点击交谈
  • 衢州市柯城区财富中心3号楼2楼

  • 衢州格堂装饰有限公司

  • 扫一扫关注官方微信

    获取一手特惠信息

快速回复 返回顶部 返回列表