• 手机版

    扫码体验手机版

  • 微信公众号

    扫码关注公众号

登录注册
游客您好
第三方账号登陆

[衢州] 吾悦华府5-2-100#153㎡现代简约---姹寂之风

[复制链接]
发表于 2022-5-10 16:08:59 | 显示全部楼层 |阅读模式
吾悦华府5-2-100#153㎡现代简约---姹寂之风

格堂装饰为您全程记录装修全过程!

小区名称
吾悦华府
房屋面积
153㎡
户型结构
套房
装修风格
现代
装修方式
半包
装修造价
查看请联系客服万元
设计师
江工
项目经理
周工
装修公司
格堂装饰
完工实景
完工实景
水电全景
水电全景
VR全景
VR全景
设计说明
姹寂之风----奶油色侘寂风,让家温柔又浪漫
给家裹上舒缓奶油色,奠定空间温柔基调,再搭配上温润原木,居室自然会呼吸。
我们坚信空间本身就是一种语言,在相见的那刻便诉说着彼此
更多信息
本帖最后由 格堂陈辰 于 2022-5-10 16:18 编辑

效果图
4503c0d0872ddb41413b487e784ca17.png

ad199a326b5585ce1044d8463106eb7.png
回复

使用道具 举报

 楼主| 发表于 2022-5-10 16:12:06 | 显示全部楼层
原始结构图
76bfb95666fe0cea1dcae1304a47f80.png
回复 支持 反对

使用道具 举报

 楼主| 发表于 2022-5-10 16:12:36 | 显示全部楼层

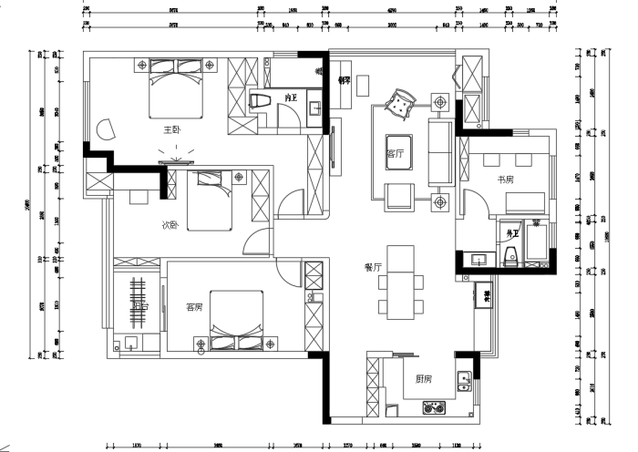
平面布置图
da4b93e124e01235a75fb487235c273.png
回复 支持 反对

使用道具 举报

 楼主| 发表于 2022-5-10 16:14:11 | 显示全部楼层
本帖最后由 格堂陈辰 于 2022-8-15 15:56 编辑

目      录


回复 支持 反对

使用道具 举报

 楼主| 发表于 2022-5-10 16:15:30 | 显示全部楼层
本帖最后由 格堂陈辰 于 2022-5-13 14:53 编辑

电梯口保护
IMG_20220513_131130.jpg

IMG_20220513_131132.jpg

IMG_20220513_131135.jpg

IMG_20220513_131133.jpg

IMG_20220513_131136.jpg
回复 支持 反对

使用道具 举报

 楼主| 发表于 2022-5-10 16:15:55 | 显示全部楼层
本帖最后由 格堂陈辰 于 2022-5-13 14:55 编辑

门口保护
IMG_20220513_131146.jpg

IMG_20220513_131148.jpg

IMG_20220513_131152.jpg

IMG_20220513_131207.jpg

IMG_20220513_131150.jpg
回复 支持 反对

使用道具 举报

 楼主| 发表于 2022-5-10 16:17:47 | 显示全部楼层
本帖最后由 格堂陈辰 于 2022-5-13 14:55 编辑

门槛保护
IMG_20220223_095205.jpg
回复 支持 反对

使用道具 举报

 楼主| 发表于 2022-5-10 16:18:54 | 显示全部楼层

大门保护
IMG_20220508_065645.jpg
回复 支持 反对

使用道具 举报

 楼主| 发表于 2022-5-10 16:19:32 | 显示全部楼层
煤气表已经保护到位。
IMG_20220508_065620.jpg
回复 支持 反对

使用道具 举报

 楼主| 发表于 2022-5-10 16:20:05 | 显示全部楼层
临时马桶:每一个施工现场都会配备临时小便斗,并且时刻保持干净卫生、保证工地环境干净、整洁
IMG_20220508_065702.jpg
回复 支持 反对

使用道具 举报

您需要登录后才可以回帖 登录 | 立即注册

本版积分规则

全国统一客服电话
0570-8028505

24x7小时免费咨询

  • 官方在线客服

    QQ客服:小西

    点击交谈

    QQ客服:良子

    点击交谈

    QQ客服:闵月

    点击交谈
  • 衢州市柯城区财富中心3号楼2楼

  • 衢州格堂装饰有限公司

  • 扫一扫关注官方微信

    获取一手特惠信息

快速回复 返回顶部 返回列表