• 手机版

    扫码体验手机版

  • 微信公众号

    扫码关注公众号

登录注册
游客您好
第三方账号登陆

[衢州] 誉江南3-1-80#120㎡现代风——深灰致简

[复制链接]
发表于 2022-4-17 15:55:17 | 显示全部楼层 |阅读模式
誉江南3-1-80#120㎡现代——深灰致简

格堂装饰为您全程记录装修全过程!

小区名称
誉江南
房屋面积
120㎡
户型结构
套房
装修风格
现代
装修方式
半包
装修造价
查看请联系客服万元
设计师
吴工
项目经理
周工
装修公司
格堂装饰
完工实景
完工实景
水电全景
水电全景
VR全景
VR全景
设计说明
本案屋主喜欢大气深灰色的装修风格,对生活品质有一定的追求。 作为婚房的用途,我们并没有规划更多的卧室,而是把空间最大化融入公共区域。 把不合理的空间重新规划,满足更加实用,把细节之处做到极致。 营造功能实用和生活美学兼备的居家氛围。
更多信息
本帖最后由 格堂陈辰 于 2022-4-17 16:18 编辑

效果图
b4e0e8de2ab552ed44fe651c1980211.jpg

e78c3543a9a80f129584fc17ddeefd8.jpg
回复

使用道具 举报

 楼主| 发表于 2022-4-17 15:58:43 | 显示全部楼层
本帖最后由 格堂陈辰 于 2022-4-17 16:21 编辑

原始结构图
ebe4c2abe843366f62fb12925d14790.jpg
回复 支持 反对

使用道具 举报

 楼主| 发表于 2022-4-17 15:59:03 | 显示全部楼层
本帖最后由 格堂陈辰 于 2022-4-17 16:22 编辑

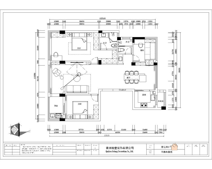
平面布置图
590232ab8167961292ef2269b7bd543.jpg
回复 支持 反对

使用道具 举报

 楼主| 发表于 2022-4-17 16:00:07 | 显示全部楼层
回复 支持 反对

使用道具 举报

 楼主| 发表于 2022-4-17 16:14:01 | 显示全部楼层
电梯保护
IMG_20220416_123103.jpg

IMG_20220416_123105.jpg

IMG_20220416_123107.jpg

IMG_20220416_123108.jpg

IMG_20220416_123110.jpg
回复 支持 反对

使用道具 举报

 楼主| 发表于 2022-4-17 16:22:53 | 显示全部楼层

门口保护
IMG_20220416_123120.jpg

IMG_20220416_123122.jpg

IMG_20220416_123124.jpg

IMG_20220416_123126.jpg

IMG_20220416_123128.jpg
回复 支持 反对

使用道具 举报

 楼主| 发表于 2022-4-17 16:24:54 | 显示全部楼层

门口保护对角
IMG_20220416_123151.jpg

IMG_20220416_123153.jpg

IMG_20220416_123202.jpg

IMG_20220416_123155.jpg
回复 支持 反对

使用道具 举报

 楼主| 发表于 2022-4-17 16:26:00 | 显示全部楼层
门槛已经保护到位
IMG_20220416_083747.jpg
回复 支持 反对

使用道具 举报

 楼主| 发表于 2022-4-17 16:27:09 | 显示全部楼层

大门套好了门套保护到位
IMG_20220416_084521.jpg
回复 支持 反对

使用道具 举报

 楼主| 发表于 2022-4-17 16:29:39 | 显示全部楼层
临时马桶:每一个施工现场都会配备临时小便斗,并且时刻保持干净卫生、保证工地环境干净、整洁。
IMG_20220416_125537.jpg
回复 支持 反对

使用道具 举报

您需要登录后才可以回帖 登录 | 立即注册

本版积分规则

全国统一客服电话
0570-8028505

24x7小时免费咨询

  • 官方在线客服

    QQ客服:小西

    点击交谈

    QQ客服:良子

    点击交谈

    QQ客服:闵月

    点击交谈
  • 衢州市柯城区财富中心3号楼2楼

  • 衢州格堂装饰有限公司

  • 扫一扫关注官方微信

    获取一手特惠信息

快速回复 返回顶部 返回列表