• 手机版

    扫码体验手机版

  • 微信公众号

    扫码关注公众号

登录注册
游客您好
第三方账号登陆

[衢州] 悦海棠1-3-6#160㎡现代——奶油原木屋

[复制链接]
发表于 2022-4-14 11:05:19 | 显示全部楼层 |阅读模式
悦海棠1-3-6#160㎡现代——奶油原木屋

格堂装饰为您全程记录装修全过程!

小区名称
悦海棠
房屋面积
160㎡
户型结构
复式
装修风格
现代
装修方式
全包
装修造价
查看请联系客服万元
设计师
吴工
项目经理
余工
装修公司
格堂装饰
完工实景
完工实景
水电全景
水电全景
VR全景
VR全景
设计说明
本案是一套约160平的复式四居室,超高5米的挑空客厅空间简洁大方,色调奶油原木,使得空间温馨满满,餐厅是餐岛一体的设计搭配顶部原木护墙,空间分布明确。
更多信息
效果图
8c05c6d37a61fdda0d32cf8a8200866.jpg

c243d96a09feb391c0b816c488fad6c.jpg
回复

使用道具 举报

 楼主| 发表于 2022-4-14 11:11:14 | 显示全部楼层
回复 支持 反对

使用道具 举报

 楼主| 发表于 2022-4-14 11:11:44 | 显示全部楼层
一楼原始结构图
e738e288a738c645dbbc78f46dee6f6_副本.jpg

一楼平面布置图 90f6ed16fed9797f68320303546acf3_副本.jpg

回复 支持 反对

使用道具 举报

 楼主| 发表于 2022-4-14 11:12:46 | 显示全部楼层
本帖最后由 格堂彩霞 于 2022-4-14 11:14 编辑

阁楼原始结构图
9467fb421f42f8d9fca5c9857f21037_副本.jpg

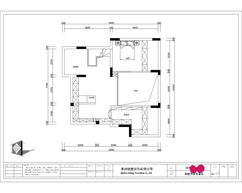
阁楼平面布置图
57cb8bb4571646da98c8e06bb09db26_副本.jpg
回复 支持 反对

使用道具 举报

 楼主| 发表于 2022-4-14 11:15:28 | 显示全部楼层
开工仪式准备,开工横幅、鲜花、礼花准备到位
IMG_20220413_125244.jpg

IMG_20220413_124850.jpg

回复 支持 反对

使用道具 举报

 楼主| 发表于 2022-4-14 11:16:10 | 显示全部楼层
拆除放样
IMG_20220413_125007_副本.jpg

IMG_20220413_124935.jpg

IMG_20220413_124836_副本.jpg

IMG_20220413_124652.jpg
回复 支持 反对

使用道具 举报

 楼主| 发表于 2022-4-14 11:16:56 | 显示全部楼层
拆除放样
IMG_20220413_125305_副本.jpg

IMG_20220413_125457_副本.jpg

IMG_20220413_125657_副本.jpg

IMG_20220413_125712_副本.jpg
回复 支持 反对

使用道具 举报

 楼主| 发表于 2022-4-14 11:17:57 | 显示全部楼层
在墙上做好标记,方便师傅后续施工
IMG_20220413_125328.jpg

IMG_20220413_125343.jpg

IMG_20220413_125348.jpg

IMG_20220413_125337.jpg
回复 支持 反对

使用道具 举报

 楼主| 发表于 2022-4-14 11:18:32 | 显示全部楼层
拆除标记做好
IMG_20220413_124940.jpg

IMG_20220413_125014.jpg

IMG_20220413_125108.jpg

IMG_20220413_125114.jpg

IMG_20220413_125213.jpg
回复 支持 反对

使用道具 举报

 楼主| 发表于 2022-4-14 11:20:07 | 显示全部楼层
拆除标记做好
IMG_20220413_125401.jpg

IMG_20220413_130411.jpg

IMG_20220413_130520.jpg

IMG_20220413_131951.jpg


回复 支持 反对

使用道具 举报

您需要登录后才可以回帖 登录 | 立即注册

本版积分规则

全国统一客服电话
0570-8028505

24x7小时免费咨询

  • 官方在线客服

    QQ客服:小西

    点击交谈

    QQ客服:良子

    点击交谈

    QQ客服:闵月

    点击交谈
  • 衢州市柯城区财富中心3号楼2楼

  • 衢州格堂装饰有限公司

  • 扫一扫关注官方微信

    获取一手特惠信息

快速回复 返回顶部 返回列表