• 手机版

    扫码体验手机版

  • 微信公众号

    扫码关注公众号

登录注册
游客您好
第三方账号登陆

国金旭辉城13-1-3#137㎡现代 ——趣

[复制链接]
发表于 2022-4-8 09:11:17 | 显示全部楼层 |阅读模式
国金旭辉城13-1-3#137㎡现代 ——趣

格堂装饰实景完工案例欣赏!

小区名称
国金旭辉城
房屋面积
137㎡
户型结构
套房
装修风格
现代
装修方式
全包
装修造价
查看请联系客服万元
设计师
杨工
项目经理
周工
装修公司
格堂装饰
装修过程
装修日记
设计说明
有趣的点线面
更多信息
7E1A2329.jpg


回复

使用道具 举报

 楼主| 发表于 2022-4-8 09:12:06 | 显示全部楼层

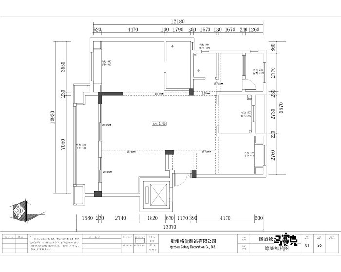
原始构图▼▼▼

161443asgikikkogqew22p.jpg

平面布置图▼▼▼

161512r17rp7bbanwd1rnr.jpg




回复 支持 反对

使用道具 举报

 楼主| 发表于 2022-4-8 09:12:37 | 显示全部楼层
客厅▼▼▼



7E1A2323.jpg


7E1A2324.jpg


7E1A2326.jpg


7E1A2327.jpg


7E1A2328.jpg


7E1A2329.jpg


7E1A2331.jpg




回复 支持 反对

使用道具 举报

 楼主| 发表于 2022-4-8 09:13:00 | 显示全部楼层
餐厅▼▼▼



7E1A2333.jpg



7E1A2334.jpg


7E1A2335.jpg


回复 支持 反对

使用道具 举报

 楼主| 发表于 2022-4-8 09:14:03 | 显示全部楼层
厨房▼▼▼



7E1A2338.jpg


7E1A2339.jpg




回复 支持 反对

使用道具 举报

 楼主| 发表于 2022-4-8 09:14:34 | 显示全部楼层
主卧▼▼▼



7E1A2344.jpg


7E1A2346.jpg


7E1A2347.jpg




回复 支持 反对

使用道具 举报

 楼主| 发表于 2022-4-8 09:15:06 | 显示全部楼层
次卫干区▼▼▼



7E1A2343.jpg


7E1A2342.jpg



回复 支持 反对

使用道具 举报

您需要登录后才可以回帖 登录 | 立即注册

本版积分规则

全国统一客服电话
0570-8028505

24x7小时免费咨询

  • 官方在线客服

    QQ客服:小西

    点击交谈

    QQ客服:良子

    点击交谈

    QQ客服:闵月

    点击交谈
  • 衢州市柯城区财富中心3号楼2楼

  • 衢州格堂装饰有限公司

  • 扫一扫关注官方微信

    获取一手特惠信息

快速回复 返回顶部 返回列表