石亘别墅603㎡中式——朴苑 |
|
石亘别墅603㎡中式——朴苑
格堂装饰实景完工案例欣赏!
设计说明
站于文化上,居于诗性中”,将现代生活与传统文化相融贯通。这里包含了三代人的相互尊重,理解与包容。长者对晚辈的厚爱与希望。晚辈对长辈的尊重与遵从。
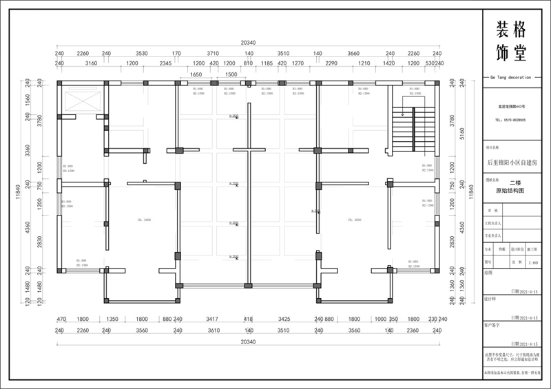
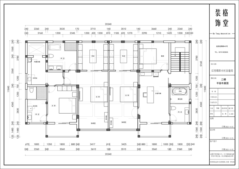
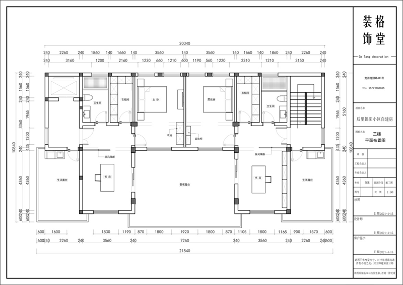
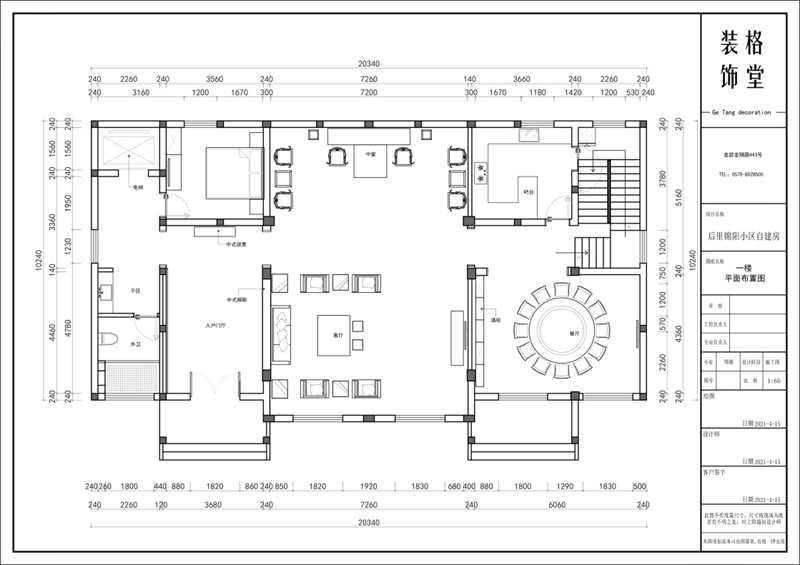
一楼空间作为全家人的活动场所,按家里长者的心意设计成中式风格。开门入境,玄关造景,从入户门厅到客厅以半隔断的设计手法,移步换景,随着步入者的位置变换与视线流转,不同角落皆可自成一幅画卷。 二楼,三楼作为家中个人的私密空间,最大程度的遵从了各自的喜好。 更多信息
| |
| |


在线客服
微信客服
关注有礼