• 手机版

    扫码体验手机版

  • 微信公众号

    扫码关注公众号

登录注册
游客您好
第三方账号登陆

[衢州] 衢州公馆1-2-230#143㎡现代极简——格调生活

[复制链接]
发表于 2022-3-25 17:17:35 | 显示全部楼层 |阅读模式
衢州公馆1-2-230#143㎡现代极简——格调生活

格堂装饰为您全程记录装修全过程!

小区名称
衢州公馆
房屋面积
143㎡
户型结构
套房
装修风格
现代
装修方式
半包
装修造价
查看请联系客服万元
设计师
万工
项目经理
周工
装修公司
格堂装饰
完工实景
完工实景
水电全景
水电全景
VR全景
VR全景
设计说明
大面积的留白设计,局部点缀一些木饰面和岩板元素,以现代极简主义的设计理念,让整个空间精致且富有细节感。以简单而不失质感的空间设计,给人带来一种静谧舒适的视觉享受。
更多信息
效果图
9b1c77b73cc1ba5e6e56270246e3195.jpg

c743dd70b4d629990a39ba1071a3f89.jpg
回复

使用道具 举报

 楼主| 发表于 2022-3-25 17:19:41 | 显示全部楼层

原始结构图
46be1cd3a6387d42ac746a276c72601.png
回复 支持 反对

使用道具 举报

 楼主| 发表于 2022-3-25 17:20:57 | 显示全部楼层

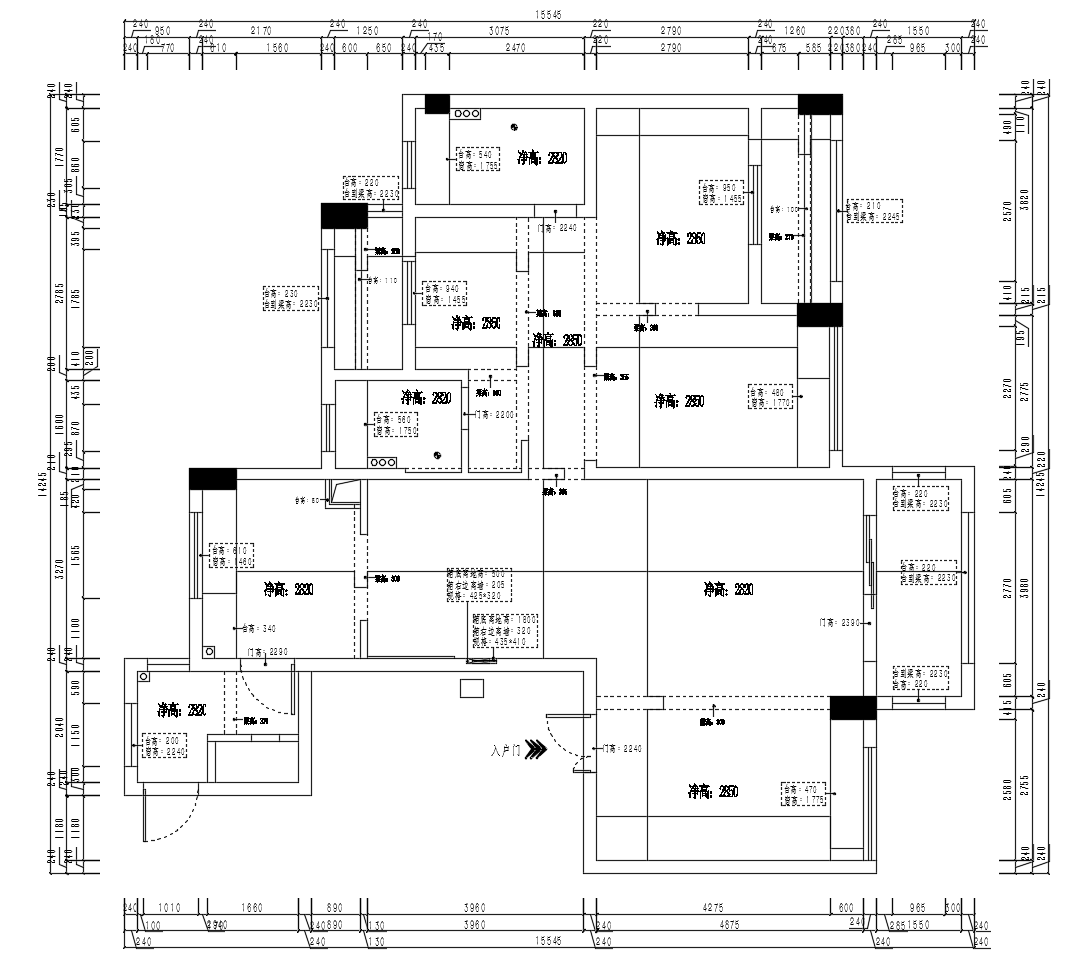
平面布置图
d1fadd8ca277d06a3fb43b2b6214b21.png
回复 支持 反对

使用道具 举报

 楼主| 发表于 2022-3-26 16:17:21 | 显示全部楼层
回复 支持 反对

使用道具 举报

 楼主| 发表于 2022-3-26 16:41:05 | 显示全部楼层
本帖最后由 格堂陈辰 于 2022-3-31 15:19 编辑

电梯口保护到位。
IMG_20220330_152413.jpg

IMG_20220330_152415.jpg

IMG_20220330_152418.jpg

IMG_20220330_152420.jpg

IMG_20220330_152422.jpg

回复 支持 反对

使用道具 举报

 楼主| 发表于 2022-3-26 16:41:19 | 显示全部楼层
本帖最后由 格堂陈辰 于 2022-3-31 15:19 编辑

电梯口对角保护到位。
IMG_20220330_152430.jpg

IMG_20220330_152432.jpg

IMG_20220330_152440.jpg

IMG_20220330_152437.jpg

IMG_20220330_152445.jpg
回复 支持 反对

使用道具 举报

 楼主| 发表于 2022-3-26 16:42:01 | 显示全部楼层
本帖最后由 格堂陈辰 于 2022-3-31 15:20 编辑

门槛保护到位
IMG_20220330_152403.jpg
回复 支持 反对

使用道具 举报

 楼主| 发表于 2022-3-26 16:42:49 | 显示全部楼层
本帖最后由 格堂陈辰 于 2022-3-31 15:20 编辑

大门保护到位。
IMG_20220330_152420.jpg
回复 支持 反对

使用道具 举报

 楼主| 发表于 2022-3-26 16:44:36 | 显示全部楼层
煤气表已经保护到位。
2022_03_13_09_36_IMG_9732.JPG
回复 支持 反对

使用道具 举报

 楼主| 发表于 2022-3-26 16:45:36 | 显示全部楼层
临时马桶:每一个施工现场都会配备临时小便斗,并且时刻保持干净卫生、保证工地环境干净、整洁
2022_03_13_09_36_IMG_9734.JPG
回复 支持 反对

使用道具 举报

您需要登录后才可以回帖 登录 | 立即注册

本版积分规则

全国统一客服电话
0570-8028505

24x7小时免费咨询

  • 官方在线客服

    QQ客服:小西

    点击交谈

    QQ客服:良子

    点击交谈

    QQ客服:闵月

    点击交谈
  • 衢州市柯城区财富中心3号楼2楼

  • 衢州格堂装饰有限公司

  • 扫一扫关注官方微信

    获取一手特惠信息

快速回复 返回顶部 返回列表