• 手机版

    扫码体验手机版

  • 微信公众号

    扫码关注公众号

登录注册
游客您好
第三方账号登陆

[龙游] 公园世家12-2-11#200㎡现代轻奢——恬然

[复制链接]
发表于 2022-3-11 13:59:19 | 显示全部楼层 |阅读模式
恬然

格堂装饰为您全程记录装修全过程!

小区名称
公园世家
房屋面积
200㎡
户型结构
套房
装修风格
现代轻奢
装修方式
半包
装修造价
查看请联系客服万元
设计师
吴工
项目经理
沈工
装修公司
格堂装饰
完工实景
完工实景
水电全景
水电全景
VR全景
VR全景
设计说明
业主在购房时就一眼相中大露台以及采光和视眼都很棒的南阳台,在设计之初,我们的侧重点就在阳台和露台位置,最大限度的利用空间,把光引进室内。整体风格及色系的搭配也都是运用的暖色调。以人为本,追求舒适的生活环境是居住这套房子的初心。
更多信息
回复

使用道具 举报

 楼主| 发表于 2022-3-11 14:03:15 | 显示全部楼层

一楼原始结构图
IMG_0977(2).JPG
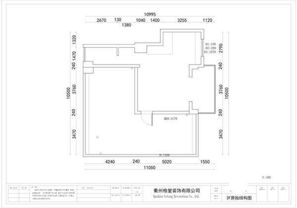
二楼原始结构图
IMG_0976(2).JPG
回复 支持 反对

使用道具 举报

 楼主| 发表于 2022-3-11 14:04:56 | 显示全部楼层

一楼平面布置图
IMG_0978(2).JPG
二楼平面布置图
IMG_0979(2).JPG
回复 支持 反对

使用道具 举报

 楼主| 发表于 2022-3-11 14:06:31 | 显示全部楼层

开工布置
IMG_3316(1).JPG

IMG_3320(1).JPG
回复 支持 反对

使用道具 举报

 楼主| 发表于 2022-3-11 14:08:31 | 显示全部楼层

下水管道做好保护,防止沙石阻塞

IMG_3304.JPG

IMG_3305.JPG
回复 支持 反对

使用道具 举报

 楼主| 发表于 2022-3-11 14:09:12 | 显示全部楼层
煤气表做好保护,防止磕碰受损
IMG_3302.JPG

IMG_3309(1).JPG
回复 支持 反对

使用道具 举报

 楼主| 发表于 2022-3-11 14:09:39 | 显示全部楼层


IMG_3307(1).JPG
回复 支持 反对

使用道具 举报

 楼主| 发表于 2022-3-11 14:10:42 | 显示全部楼层


IMG_3310(1).JPG

IMG_3311(1).JPG
回复 支持 反对

使用道具 举报

 楼主| 发表于 2022-3-11 14:11:23 | 显示全部楼层


IMG_3313(1).JPG

IMG_3314(1).JPG
回复 支持 反对

使用道具 举报

 楼主| 发表于 2022-3-11 14:11:39 | 显示全部楼层


IMG_3315(1).JPG
回复 支持 反对

使用道具 举报

您需要登录后才可以回帖 登录 | 立即注册

本版积分规则

全国统一客服电话
0570-8028505

24x7小时免费咨询

  • 官方在线客服

    QQ客服:小西

    点击交谈

    QQ客服:良子

    点击交谈

    QQ客服:闵月

    点击交谈
  • 衢州市柯城区财富中心3号楼2楼

  • 衢州格堂装饰有限公司

  • 扫一扫关注官方微信

    获取一手特惠信息

快速回复 返回顶部 返回列表