• 手机版

    扫码体验手机版

  • 微信公众号

    扫码关注公众号

登录注册
游客您好
第三方账号登陆

[龙游] 莱茵河畔5#109 ㎡——再造 | 韵律

[复制链接]
发表于 2022-3-6 11:02:11 | 显示全部楼层 |阅读模式
再造 | 韵律

格堂装饰为您全程记录装修全过程!

小区名称
莱茵河畔
房屋面积
109㎡
户型结构
别墅
装修风格
东南亚
装修方式
半包
装修造价
查看请联系客服万元
设计师
毛工
项目经理
杨工
装修公司
格堂装饰
完工实景
完工实景
水电全景
水电全景
VR全景
VR全景
设计说明
时光对每个人来说都是公平的
而如何体现差异则完全取决于选择
在契合自己的舒适空间里
是让指间流淌出一首悠扬的钢琴曲
还是捧一本书沉浸在故事里
亦或是靠在懒人榻上单纯的晒太阳
慢下来,才能真正的享受岁月静好
更多信息
回复

使用道具 举报

 楼主| 发表于 2022-3-6 11:04:13 | 显示全部楼层

原始结构图
IMG_0029(20220306-103538).JPG

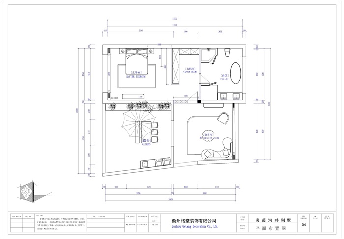
平面布置图
IMG_0030(20220306-103540).JPG
回复 支持 反对

使用道具 举报

 楼主| 发表于 2022-3-6 11:04:49 | 显示全部楼层

开工布置
IMG_6583(1).JPG

IMG_6587(2).JPG
回复 支持 反对

使用道具 举报

 楼主| 发表于 2022-3-6 11:08:45 | 显示全部楼层


IMG_6588(1).JPG

IMG_6590(2).JPG
回复 支持 反对

使用道具 举报

 楼主| 发表于 2022-3-6 11:09:09 | 显示全部楼层


IMG_6589(1).JPG

IMG_6593(1).JPG
回复 支持 反对

使用道具 举报

 楼主| 发表于 2022-3-6 11:09:39 | 显示全部楼层


IMG_6594(1).JPG
回复 支持 反对

使用道具 举报

 楼主| 发表于 2022-3-6 11:09:55 | 显示全部楼层


IMG_6591(2).JPG

IMG_6592(2).JPG
回复 支持 反对

使用道具 举报

 楼主| 发表于 2022-3-6 11:10:19 | 显示全部楼层


IMG_6595(2).JPG

IMG_6596(2).JPG
回复 支持 反对

使用道具 举报

 楼主| 发表于 2022-3-6 11:10:46 | 显示全部楼层
一楼卫生间
IMG_6598(1).JPG
回复 支持 反对

使用道具 举报

 楼主| 发表于 2022-3-6 11:11:30 | 显示全部楼层


IMG_6599(1).JPG

IMG_6600(2).JPG
回复 支持 反对

使用道具 举报

您需要登录后才可以回帖 登录 | 立即注册

本版积分规则

全国统一客服电话
0570-8028505

24x7小时免费咨询

  • 官方在线客服

    QQ客服:小西

    点击交谈

    QQ客服:良子

    点击交谈

    QQ客服:闵月

    点击交谈
  • 衢州市柯城区财富中心3号楼2楼

  • 衢州格堂装饰有限公司

  • 扫一扫关注官方微信

    获取一手特惠信息

快速回复 返回顶部 返回列表