• 手机版

    扫码体验手机版

  • 微信公众号

    扫码关注公众号

登录注册
游客您好
第三方账号登陆

[衢州] 衢州公馆2-1-10#143㎡现代——来自时空的对话

[复制链接]
发表于 2022-2-27 14:09:21 | 显示全部楼层 |阅读模式
衢州公馆2-1-10#143㎡现代——来自时空的对话

格堂装饰为您全程记录装修全过程!

小区名称
衢州公馆
房屋面积
143㎡
户型结构
套房
装修风格
现代
装修方式
全包
装修造价
查看请联系客服万元
设计师
王工
项目经理
胡工
装修公司
格堂装饰
完工实景
完工实景
水电全景
水电全景
VR全景
VR全景
设计说明
门外是人间烟火,门里是闲情雅致。用简约的设计手法将纯、雅古代美学的独特风貌融入都市的生活,两个时代的重叠开启一场关于时空的对话。
更多信息

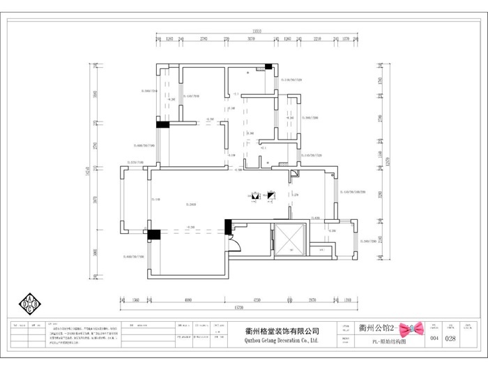
原始结构图
WPS图片.jpg
回复

使用道具 举报

 楼主| 发表于 2022-2-27 14:10:12 | 显示全部楼层

平面布置图
WPS图片(1).jpg
回复 支持 反对

使用道具 举报

 楼主| 发表于 2022-2-27 14:10:57 | 显示全部楼层

效果图
WPS图片(2).jpeg

WPS图片(3).jpeg
回复 支持 反对

使用道具 举报

 楼主| 发表于 2022-2-27 14:11:33 | 显示全部楼层
回复 支持 反对

使用道具 举报

 楼主| 发表于 2022-2-27 14:12:25 | 显示全部楼层

大门保护
IMG_20220227_080035.jpg
回复 支持 反对

使用道具 举报

 楼主| 发表于 2022-2-27 14:13:55 | 显示全部楼层
排水管道用格堂专用保护盖保护,防止后期施工中砂石 堵塞管道。 IMG_20220227_075915.jpg

IMG_20220227_075919.jpg

IMG_20220227_075932.jpg

回复 支持 反对

使用道具 举报

 楼主| 发表于 2022-2-27 14:15:01 | 显示全部楼层
卫生间简易马桶安装到位。
IMG_20220227_075924.jpg
回复 支持 反对

使用道具 举报

 楼主| 发表于 2022-2-27 14:15:50 | 显示全部楼层
燃气表保护到位。
IMG_20220227_075904.jpg
回复 支持 反对

使用道具 举报

 楼主| 发表于 2022-2-27 14:16:49 | 显示全部楼层
开工锤准备好了
IMG_20220227_080010.jpg
回复 支持 反对

使用道具 举报

 楼主| 发表于 2022-2-27 14:17:46 | 显示全部楼层
给业主大大的鲜花。
IMG_20220227_080018.jpg
回复 支持 反对

使用道具 举报

您需要登录后才可以回帖 登录 | 立即注册

本版积分规则

全国统一客服电话
0570-8028505

24x7小时免费咨询

  • 官方在线客服

    QQ客服:小西

    点击交谈

    QQ客服:良子

    点击交谈

    QQ客服:闵月

    点击交谈
  • 衢州市柯城区财富中心3号楼2楼

  • 衢州格堂装饰有限公司

  • 扫一扫关注官方微信

    获取一手特惠信息

快速回复 返回顶部 返回列表