• 手机版

    扫码体验手机版

  • 微信公众号

    扫码关注公众号

登录注册
游客您好
第三方账号登陆

[常山] 常山南悦名城18-1-1#250㎡新中式——守。望

[复制链接]
发表于 2022-2-22 10:17:25 | 显示全部楼层 |阅读模式
常山南悦名城18-1-1#250㎡新中式——守。望

格堂装饰为您全程记录装修全过程!

小区名称
南悦名城
房屋面积
250㎡
户型结构
叠排
装修风格
新中式
装修方式
半包
装修造价
查看请联系客服万元
设计师
王工
项目经理
施工
装修公司
格堂装饰
完工实景
完工实景
水电全景
水电全景
VR全景
VR全景
设计说明
一布一木,三茶六饭中有喜乐团圆。一桌一椅,觥筹交错里是灯花绚烂。有风吹来,听山语将时光与生活酿成诗。内,有香浓的烟火,可甜可盐。外,有相伴的温情,可望可守。
《山河远阔》,愿生活尽在掌握,游刃有余。
更多信息
本帖最后由 格堂小丽 于 2022-2-27 16:46 编辑

效果图
be5e400cc43cc7a6b5d635367adc54b.jpg

81858697b325fcaf7e84ebf9c8adf17.jpg
回复

使用道具 举报

 楼主| 发表于 2022-2-22 10:17:43 | 显示全部楼层
回复 支持 反对

使用道具 举报

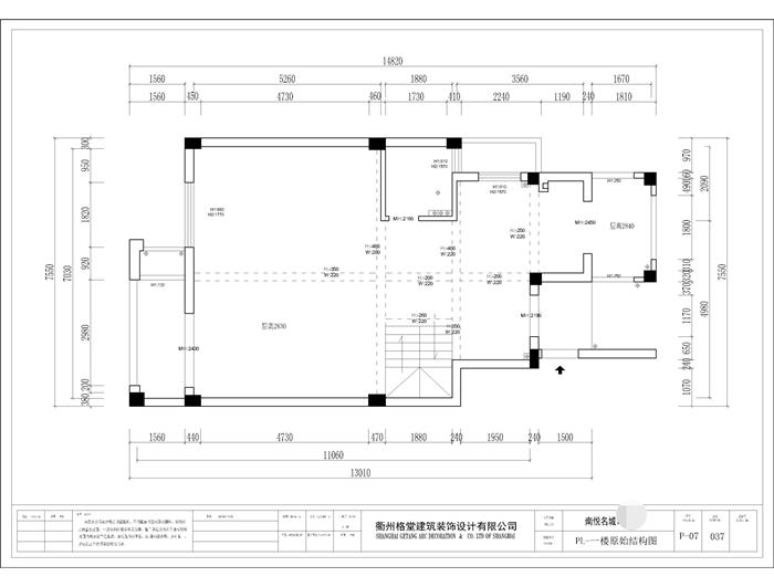
 楼主| 发表于 2022-2-22 10:18:13 | 显示全部楼层
一楼原始结构图
d3e7b68b05b7c5852e3ef33a8875ac8.jpg
回复 支持 反对

使用道具 举报

 楼主| 发表于 2022-2-22 10:18:30 | 显示全部楼层
一楼平面布置图
7fc6ad7f2d9aada34e246d12d9fa3ff.jpg
回复 支持 反对

使用道具 举报

 楼主| 发表于 2022-2-22 10:18:58 | 显示全部楼层
二楼原始结构图
483f9db49bcfe6c0dd394af90035a95.jpg
回复 支持 反对

使用道具 举报

 楼主| 发表于 2022-2-22 10:19:15 | 显示全部楼层
二楼平面布置图
17b29bff2afc35813de0f334be951f9.jpg
回复 支持 反对

使用道具 举报

 楼主| 发表于 2022-2-22 10:19:51 | 显示全部楼层
负一楼原始结构图
f947480b0988c9a4179dbeb6a3ede79.jpg
回复 支持 反对

使用道具 举报

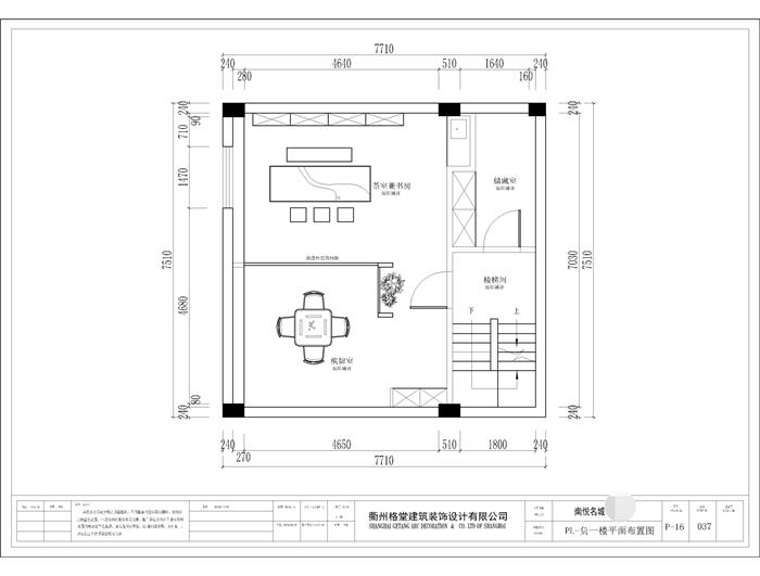
 楼主| 发表于 2022-2-22 10:20:07 | 显示全部楼层
负一楼平面布置图
f39bcf25b7e0a734ea542da6744b2f3.jpg
回复 支持 反对

使用道具 举报

 楼主| 发表于 2022-2-22 10:20:37 | 显示全部楼层
负二楼原始结构图
4ce962cc9c41e0d8b75e85d5da97115.jpg
回复 支持 反对

使用道具 举报

 楼主| 发表于 2022-2-22 10:21:00 | 显示全部楼层
负二楼平面布置图
b2dbbf2f7209e1cd4908cc1b717c468.jpg
回复 支持 反对

使用道具 举报

您需要登录后才可以回帖 登录 | 立即注册

本版积分规则

全国统一客服电话
0570-8028505

24x7小时免费咨询

  • 官方在线客服

    QQ客服:小西

    点击交谈

    QQ客服:良子

    点击交谈

    QQ客服:闵月

    点击交谈
  • 衢州市柯城区财富中心3号楼2楼

  • 衢州格堂装饰有限公司

  • 扫一扫关注官方微信

    获取一手特惠信息

快速回复 返回顶部 返回列表