• 手机版

    扫码体验手机版

  • 微信公众号

    扫码关注公众号

登录注册
游客您好
第三方账号登陆

[江山] 大都荟9#150m2现代---自然与空间的对话

[复制链接]
发表于 2022-2-20 11:38:04 | 显示全部楼层 |阅读模式
自然与空间的对话

格堂装饰为您全程记录装修全过程!

小区名称
大都荟
房屋面积
150㎡
户型结构
套房
装修风格
现代
装修方式
半包
装修造价
查看请联系客服万元
设计师
吴工
项目经理
郑工
装修公司
格堂装饰
完工实景
完工实景
水电全景
水电全景
VR全景
VR全景
设计说明
家不仅仅是居所,更是承载屋主对生活的感悟与温度。我们描绘着一个对家的想象,她不仅是点线面的空间结构,亦是灵魂寄托的所在。整体空间动静分离,布局舒适合理
更多信息
回复

使用道具 举报

 楼主| 发表于 2022-2-20 11:39:15 | 显示全部楼层
原始结构图

51d8019196edf6c76f557c193847cff.jpg

回复 支持 反对

使用道具 举报

 楼主| 发表于 2022-2-20 11:39:47 | 显示全部楼层
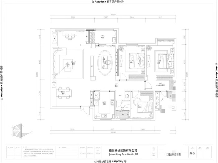
平面布置图

63a5bcd88bece0d2510bc37c2b22683.jpg
回复 支持 反对

使用道具 举报

 楼主| 发表于 2022-2-20 11:40:52 | 显示全部楼层
开工前大门先保护到位

eb980a9192a2a6e9c0de581155897c6.jpg

5b216ebb1f982174cf0b69399c1a179.jpg


回复 支持 反对

使用道具 举报

 楼主| 发表于 2022-2-20 11:42:30 | 显示全部楼层
开工前电梯口地面已经保护到位,防止磕碰。


e23ef178a9b19860518cb1fac3aa4e4.jpg

dcbee1d990081201d8fcd257e9b786c.jpg
回复 支持 反对

使用道具 举报

 楼主| 发表于 2022-2-20 11:43:13 | 显示全部楼层
卫生间的简易马桶安装到位,防止后期施工中沙石堵塞进入,美观又干净!


091b7e567cc7dea63a8985f0a5724ad.jpg
回复 支持 反对

使用道具 举报

 楼主| 发表于 2022-2-20 11:44:23 | 显示全部楼层
排水管道用格堂装饰专用保护盖保护,防止后期施工砂石堵塞管道


1b43edcda2382605d2e3ad9a424e531.jpg

9b211cf2d4cf3428eaea57eb7739db3.jpg

92112de442fc0698c88dc9e66db972f.jpg

e81bcafe29c4ee666f9bbece6a0cfcc.jpg
回复 支持 反对

使用道具 举报

 楼主| 发表于 2022-2-20 11:44:50 | 显示全部楼层
礼炮已准备好


a3fce77159844f9150e2ade6a656c69.jpg
回复 支持 反对

使用道具 举报

 楼主| 发表于 2022-2-20 11:45:14 | 显示全部楼层
开工锤已准备好


ecd79aa522e6eb38e948a9952cd5e6d.jpg
回复 支持 反对

使用道具 举报

 楼主| 发表于 2022-2-20 11:45:33 | 显示全部楼层
送给业主美丽的鲜花



d55000745df559a1b3a78fd32ecf001.jpg
回复 支持 反对

使用道具 举报

您需要登录后才可以回帖 登录 | 立即注册

本版积分规则

全国统一客服电话
0570-8028505

24x7小时免费咨询

  • 官方在线客服

    QQ客服:小西

    点击交谈

    QQ客服:良子

    点击交谈

    QQ客服:闵月

    点击交谈
  • 衢州市柯城区财富中心3号楼2楼

  • 衢州格堂装饰有限公司

  • 扫一扫关注官方微信

    获取一手特惠信息

快速回复 返回顶部 返回列表