• 手机版

    扫码体验手机版

  • 微信公众号

    扫码关注公众号

登录注册
游客您好
第三方账号登陆

[衢州] 誉江南15-4-100#134㎡现代—— 向阳而居

[复制链接]
发表于 2022-2-18 15:07:20 | 显示全部楼层 |阅读模式
誉江南15-4-100#134㎡现代—— 向阳而居

格堂装饰为您全程记录装修全过程!

小区名称
誉江南
房屋面积
134㎡
户型结构
套房
装修风格
现代
装修方式
半包
装修造价
查看请联系客服万元
设计师
邓工
项目经理
周工
装修公司
格堂装饰
完工实景
完工实景
水电全景
水电全景
VR全景
VR全景
设计说明
设计理念:日出而作,日落而息。人间烟火如常,万物皆因有光,有光照进来的地方,便是生命之所。引光入室,向阳而居让诗意渗透生活,唤起心灵的奏鸣曲。
更多信息
本帖最后由 格堂陈辰 于 2022-2-18 15:07 编辑

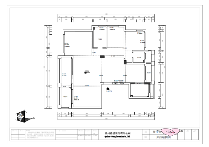
原始结构图
图片1.png
回复

使用道具 举报

 楼主| 发表于 2022-2-18 15:07:21 | 显示全部楼层

平面布置图
图片2.png
回复 支持 反对

使用道具 举报

 楼主| 发表于 2022-2-18 15:07:22 | 显示全部楼层

效果图
图片3.png

图片4.png

图片5.png

图片6.png
回复 支持 反对

使用道具 举报

 楼主| 发表于 2022-2-18 15:11:10 | 显示全部楼层
回复 支持 反对

使用道具 举报

 楼主| 发表于 2022-2-18 15:12:15 | 显示全部楼层

开工前电梯口墙面和地面已经保护到位
IMG_20220218_085318.jpg

IMG_20220218_085321.jpg

IMG_20220218_085324.jpg

IMG_20220218_085327.jpg

IMG_20220218_085330.jpg
回复 支持 反对

使用道具 举报

 楼主| 发表于 2022-2-18 15:13:33 | 显示全部楼层

电梯口对角
IMG_20220218_085336.jpg

IMG_20220218_085338.jpg

IMG_20220218_085341.jpg

IMG_20220218_085344.jpg

IMG_20220218_085347.jpg
回复 支持 反对

使用道具 举报

 楼主| 发表于 2022-2-18 15:23:05 | 显示全部楼层

门槛已经保护到位
IMG_20220218_094643.jpg

IMG_20220218_094618.jpg

IMG_20220218_094615.jpg
回复 支持 反对

使用道具 举报

 楼主| 发表于 2022-2-18 16:18:50 | 显示全部楼层
大门套好了门套保护到位。
IMG_20220218_093559.jpg

IMG_20220218_093733.jpg

IMG_20220218_093928.jpg
回复 支持 反对

使用道具 举报

 楼主| 发表于 2022-2-18 16:19:48 | 显示全部楼层
临时马桶:每一个施工现场都会配备临时小便斗,并且时刻保持干净卫生、保证工地环境干净、整洁。
IMG_20220218_090254.jpg
回复 支持 反对

使用道具 举报

 楼主| 发表于 2022-2-18 16:21:04 | 显示全部楼层
下水管用格堂专用保护盖保护,防止砂石堵塞管道。
IMG_20220218_090259.jpg

IMG_20220218_090312.jpg

IMG_20220218_090316.jpg
回复 支持 反对

使用道具 举报

您需要登录后才可以回帖 登录 | 立即注册

本版积分规则

全国统一客服电话
0570-8028505

24x7小时免费咨询

  • 官方在线客服

    QQ客服:小西

    点击交谈

    QQ客服:良子

    点击交谈

    QQ客服:闵月

    点击交谈
  • 衢州市柯城区财富中心3号楼2楼

  • 衢州格堂装饰有限公司

  • 扫一扫关注官方微信

    获取一手特惠信息

快速回复 返回顶部 返回列表