• 手机版

    扫码体验手机版

  • 微信公众号

    扫码关注公众号

登录注册
游客您好
第三方账号登陆

[衢州] 铂金府邸8#450㎡中式 ——《寻觅》

[复制链接]
发表于 2022-1-20 09:54:29 | 显示全部楼层 |阅读模式
铂金府邸8#450㎡中式 ——《寻觅》

格堂装饰为您全程记录装修全过程!

小区名称
铂金府邸
房屋面积
450㎡
户型结构
别墅
装修风格
中式
装修方式
半包
装修造价
查看请联系客服万元
设计师
江工
项目经理
余工
装修公司
格堂装饰
完工实景
完工实景
水电全景
水电全景
VR全景
VR全景
设计说明
设计概念源自东方园林的游园体验,游览时,从室外走入室内,又从室内走向室外,形成感官上的切换。有时是故意压窄拉长的长廊,有时是豁然开朗的方亭,方亭之外又有水庭,是中国微缩宇宙的景观寓意。闭合和开放的空间节奏,以及视线刻意的压窄和放远,是中国式的游园精髓。
更多信息
效果图
e0bf9b448bda5caa1b2804211f69886.png

efd3e41e16eaf95ce174cfb19032768.png
回复

使用道具 举报

 楼主| 发表于 2022-1-20 09:56:43 | 显示全部楼层
原始结构图
115e1def3936a865e7faf1277b6cdce.png

3015c1a7db411c05bbb5c604c0d3dfe.png

c42cefd177ccc10366b788e4d782e13.png

e2200896313ab89ac2886f345db08e6.png
回复 支持 反对

使用道具 举报

 楼主| 发表于 2022-1-20 09:58:23 | 显示全部楼层
本帖最后由 格堂陈辰 于 2022-1-20 10:00 编辑

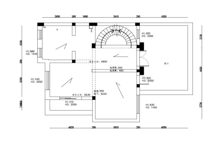
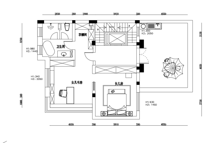
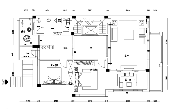
平面布置图
ff923355203ac7299e4ad44e72d77d0.png

be3189482d67679d361e9654a6ace73.png

c28f893732f2f9f26538f9e67662399.png

4adc5c7cc95330e2c7fe87d7b53530a.png
回复 支持 反对

使用道具 举报

 楼主| 发表于 2022-1-20 10:03:14 | 显示全部楼层
本帖最后由 格堂陈辰 于 2022-12-21 16:11 编辑

目      录

回复 支持 反对

使用道具 举报

 楼主| 发表于 2022-1-20 10:20:30 | 显示全部楼层
项目经理和师傅,正在做开工前的准备工作哦!
IMG_20220113_085945.jpg

IMG_20220113_085447.jpg
回复 支持 反对

使用道具 举报

 楼主| 发表于 2022-1-20 10:21:28 | 显示全部楼层
临时马桶安装到位,方便师傅使用,要讲究卫生哦!
IMG_20220113_091513.jpg
回复 支持 反对

使用道具 举报

 楼主| 发表于 2022-1-20 10:22:52 | 显示全部楼层
下水管用格堂专用保护盖保护,防止砂石堵塞管道.
IMG_20220113_091133.jpg

IMG_20220113_091144.jpg

IMG_20220113_091211.jpg

IMG_20220113_091227.jpg

IMG_20220113_091315.jpg

回复 支持 反对

使用道具 举报

 楼主| 发表于 2022-1-20 10:25:17 | 显示全部楼层
礼炮已经准备好了
IMG_20220113_085343.jpg
回复 支持 反对

使用道具 举报

 楼主| 发表于 2022-1-20 10:26:28 | 显示全部楼层
开工锤已经准备好了
IMG_20220113_085223.jpg
回复 支持 反对

使用道具 举报

 楼主| 发表于 2022-1-20 10:27:12 | 显示全部楼层
给业主大人送上美丽的鲜花。
IMG_20220113_085214.jpg
回复 支持 反对

使用道具 举报

您需要登录后才可以回帖 登录 | 立即注册

本版积分规则

全国统一客服电话
0570-8028505

24x7小时免费咨询

  • 官方在线客服

    QQ客服:小西

    点击交谈

    QQ客服:良子

    点击交谈

    QQ客服:闵月

    点击交谈
  • 衢州市柯城区财富中心3号楼2楼

  • 衢州格堂装饰有限公司

  • 扫一扫关注官方微信

    获取一手特惠信息

快速回复 返回顶部 返回列表