• 手机版

    扫码体验手机版

  • 微信公众号

    扫码关注公众号

登录注册
游客您好
第三方账号登陆

[开化] 国金悦江府4-10#96㎡现代简约--「余白」

[复制链接]
发表于 2022-1-13 10:30:01 | 显示全部楼层 |阅读模式
国金悦江府4-10#96㎡现代简约--「余白」

格堂装饰为您全程记录装修全过程!

小区名称
国金悦江府
房屋面积
96㎡
户型结构
3房2厅1厨1卫
装修风格
现代
装修方式
半包
装修造价
查看请联系客服万元
设计师
蒋工
项目经理
毛工
装修公司
格堂装饰
完工实景
完工实景
水电全景
水电全景
VR全景
VR全景
设计说明
畅想自由空间
感受自己与自然,物器同与同在
形成生活方式的和声
植被,花朵,四季,夜晚,情感
黑夜与白昼
四季的更替
更多信息
回复

使用道具 举报

 楼主| 发表于 2022-1-13 10:30:24 | 显示全部楼层

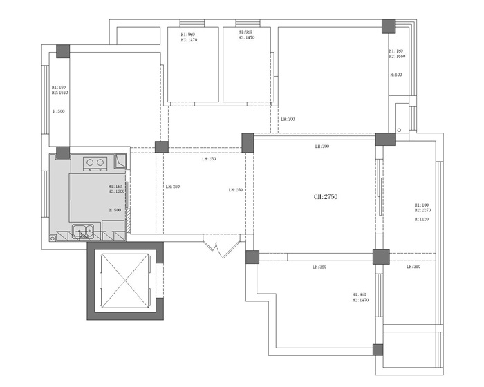
原始结构图
国金4-1-1001-模型.jpg
回复 支持 反对

使用道具 举报

 楼主| 发表于 2022-1-13 10:30:39 | 显示全部楼层

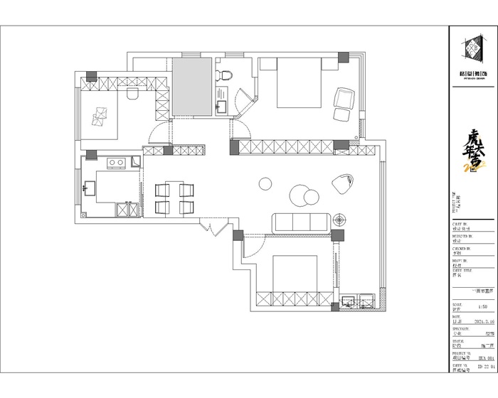
平面布置图
国金4-1-1001-平面图_副本.jpg
回复 支持 反对

使用道具 举报

 楼主| 发表于 2022-3-24 09:12:41 | 显示全部楼层

开工前的准备
IMG_3112.JPG

IMG_3113.JPG

IMG_3114.JPG

IMG_3115.JPG

IMG_3116.JPG
回复 支持 反对

使用道具 举报

 楼主| 发表于 2022-3-24 09:13:09 | 显示全部楼层

吉时到,我们开工了
IMG_3372.JPG
回复 支持 反对

使用道具 举报

 楼主| 发表于 2022-3-24 09:14:03 | 显示全部楼层

装修开工第一锤应该敲在要拆除的墙体的墙角(即拐角)上,象征一锤定音的意思,也是新房动土的一种表示方式。
IMG_3148.JPG

IMG_3373.JPG
回复 支持 反对

使用道具 举报

 楼主| 发表于 2022-3-24 09:14:39 | 显示全部楼层

大门保护
IMG_3117.JPG
回复 支持 反对

使用道具 举报

 楼主| 发表于 2022-3-24 09:15:02 | 显示全部楼层

电梯口保护
IMG_3118.JPG

IMG_3119.JPG

IMG_3120.JPG

IMG_3121.JPG

IMG_3122.JPG
回复 支持 反对

使用道具 举报

 楼主| 发表于 2022-3-24 09:15:32 | 显示全部楼层

电梯口对角保护
IMG_3123.JPG

IMG_3124.JPG

IMG_3125.JPG

IMG_3126.JPG

IMG_3127.JPG
回复 支持 反对

使用道具 举报

 楼主| 发表于 2022-3-24 09:17:10 | 显示全部楼层
本帖最后由 格堂小韩 于 2022-3-24 09:19 编辑

长辈房原始结构
IMG_3150.JPG

IMG_3151.JPG

IMG_3152.JPG

IMG_3153.JPG

IMG_3154.JPG
回复 支持 反对

使用道具 举报

您需要登录后才可以回帖 登录 | 立即注册

本版积分规则

全国统一客服电话
0570-8028505

24x7小时免费咨询

  • 官方在线客服

    QQ客服:小西

    点击交谈

    QQ客服:良子

    点击交谈

    QQ客服:闵月

    点击交谈
  • 衢州市柯城区财富中心3号楼2楼

  • 衢州格堂装饰有限公司

  • 扫一扫关注官方微信

    获取一手特惠信息

快速回复 返回顶部 返回列表