• 手机版

    扫码体验手机版

  • 微信公众号

    扫码关注公众号

登录注册
游客您好
第三方账号登陆

[衢州] 志城蓝湾10-1-3#115㎡现代法式——臻·谧

[复制链接]
发表于 2022-1-12 15:30:42 | 显示全部楼层 |阅读模式
臻·谧

格堂装饰为您全程记录装修全过程!

小区名称
志城蓝湾
房屋面积
115㎡
户型结构
套房
装修风格
法式
装修方式
半包
装修造价
查看请联系客服万元
设计师
徐工
项目经理
施工
装修公司
格堂装饰
完工实景
完工实景
水电全景
水电全景
VR全景
VR全景
设计说明
时代的节奏匆匆,生活的状态紧促,在步履不停的日子里,我们需要时间和空间去暂停不断的消耗,去放松取悦自己,去享受生活的浪漫。
更多信息
本帖最后由 格堂飞飞 于 2022-2-24 13:46 编辑

效果图
IMG_3951.JPG

IMG_3952.JPG

IMG_3950.JPG
回复

使用道具 举报

 楼主| 发表于 2022-1-12 15:30:54 | 显示全部楼层
回复 支持 反对

使用道具 举报

 楼主| 发表于 2022-1-12 15:31:15 | 显示全部楼层

原始结构图
IMG_3953.JPG
回复 支持 反对

使用道具 举报

 楼主| 发表于 2022-1-12 15:31:38 | 显示全部楼层

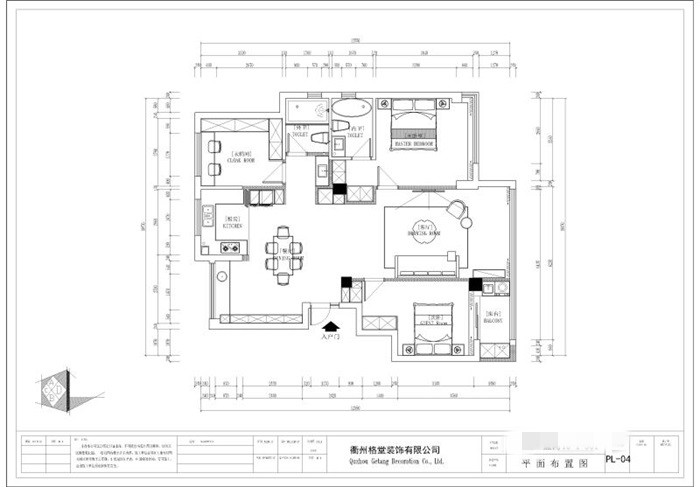
平面布置图
IMG_3954.JPG
回复 支持 反对

使用道具 举报

 楼主| 发表于 2022-1-12 15:35:06 | 显示全部楼层

开工前大门先要,保护起来,防止磕碰哦!
IMG_1390.JPG

IMG_1421.JPG
回复 支持 反对

使用道具 举报

 楼主| 发表于 2022-1-12 15:36:40 | 显示全部楼层

项目经理和师傅,正在做开工前的,准备工作哦!
IMG_1391.JPG

IMG_1393.JPG

IMG_1398.JPG

IMG_1399.JPG
回复 支持 反对

使用道具 举报

 楼主| 发表于 2022-1-12 15:38:23 | 显示全部楼层

开工前准备工作,先要做好了哦!
IMG_1424.JPG
回复 支持 反对

使用道具 举报

 楼主| 发表于 2022-1-12 15:40:24 | 显示全部楼层
本帖最后由 格堂飞飞 于 2022-1-12 15:41 编辑

临时马桶安装好了,方便师傅使用,要讲究卫生哦!
IMG_1436.JPG
回复 支持 反对

使用道具 举报

 楼主| 发表于 2022-1-12 15:42:45 | 显示全部楼层

下水管用格堂专用保护盖保护,防止砂石堵塞管道。

IMG_1435.JPG

IMG_1437.JPG

IMG_1438.JPG
回复 支持 反对

使用道具 举报

 楼主| 发表于 2022-1-12 15:43:39 | 显示全部楼层

一切准备就绪,就等开工吉时啦!
IMG_1425.JPG

IMG_1426.JPG
回复 支持 反对

使用道具 举报

您需要登录后才可以回帖 登录 | 立即注册

本版积分规则

全国统一客服电话
0570-8028505

24x7小时免费咨询

  • 官方在线客服

    QQ客服:小西

    点击交谈

    QQ客服:良子

    点击交谈

    QQ客服:闵月

    点击交谈
  • 衢州市柯城区财富中心3号楼2楼

  • 衢州格堂装饰有限公司

  • 扫一扫关注官方微信

    获取一手特惠信息

快速回复 返回顶部 返回列表