• 手机版

    扫码体验手机版

  • 微信公众号

    扫码关注公众号

登录注册
游客您好
第三方账号登陆

[衢州] 玫瑰园21#530㎡现代极简——『现代混搭』

[复制链接]
发表于 2022-1-11 09:46:43 | 显示全部楼层 |阅读模式
玫瑰园21#530㎡现代极简——『现代混搭』

格堂装饰为您全程记录装修全过程!

小区名称
玫瑰园
房屋面积
530㎡
户型结构
别墅
装修风格
现代
装修方式
半包
装修造价
查看请联系客服万元
设计师
余工
项目经理
周工
装修公司
格堂装饰
完工实景
完工实景
水电全景
水电全景
VR全景
VR全景
设计说明
与其说设计一个家,我更愿意相信是我们在共周探索如何呈现更多生活方式的可能性,本案设计分别代入不同的居住人群,用以讲述两段不同的人生故事
更多信息
本帖最后由 格堂彩霞 于 2022-1-11 10:18 编辑

效果图
a352a244cf69dd229eff1fe53a4e978.jpg

3cc34c331097dc277c1bff291e56615.jpg
回复

使用道具 举报

 楼主| 发表于 2022-1-11 09:47:31 | 显示全部楼层
回复 支持 反对

使用道具 举报

 楼主| 发表于 2022-1-11 09:54:37 | 显示全部楼层
本帖最后由 格堂彩霞 于 2022-1-11 09:55 编辑

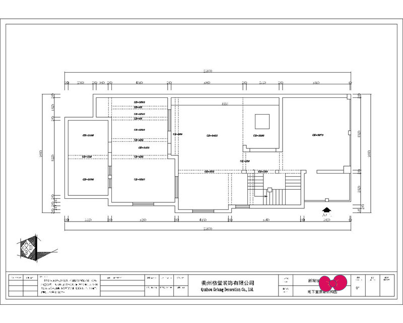
地下室原始结构图
5c185fb30add9f56f3beb7b86bdefff_副本.jpg


地下室平面布置图
a8476692643bbafbfd6625366eb1322_副本.jpg
回复 支持 反对

使用道具 举报

 楼主| 发表于 2022-1-11 09:57:54 | 显示全部楼层
一楼原始结构图
805beab33a661616f40f3cc1880ee70_副本.jpg

一楼平面布置图
66558ca5678482f51b475bb073b1499_副本.jpg
回复 支持 反对

使用道具 举报

 楼主| 发表于 2022-1-11 10:00:41 | 显示全部楼层
二楼原始结构图
49267746e6f0b443e56be17edf28143_副本.jpg

二楼平面布置图
3cb45fa86942433cd4b0b7e0e2cb467_副本.jpg
回复 支持 反对

使用道具 举报

 楼主| 发表于 2022-1-11 10:02:28 | 显示全部楼层
三楼原始结构图
78b1a2a40f8a11853e6a9621113c7e7_副本.jpg

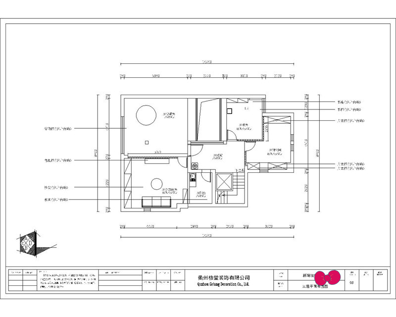
三楼平面布置图
19a24126093e2b6e70849079fb959de_副本.jpg
回复 支持 反对

使用道具 举报

 楼主| 发表于 2022-1-11 10:19:44 | 显示全部楼层
开工仪式准备,开工横幅、鲜花、礼花准备到位
IMG_20211028_090746.jpg
回复 支持 反对

使用道具 举报

 楼主| 发表于 2022-1-11 10:20:54 | 显示全部楼层
开工吉时到,礼花放起来!
恭祝业主开工大吉、大吉大利!!!
IMG_20211028_091746_副本.jpg

8a584abf12a49702d46999be9e8bb82_副本.jpg

回复 支持 反对

使用道具 举报

 楼主| 发表于 2022-1-11 10:21:55 | 显示全部楼层
开工第一锤,由业主敲在要拆除的墙体的墙角(即拐角)上,象征一锤定音的意思,也是新房动土的一种表示方式
IMG_20211028_091904_副本.jpg

IMG_20211028_091906_副本.jpg

IMG_20211028_091918.jpg

回复 支持 反对

使用道具 举报

 楼主| 发表于 2022-1-11 10:22:56 | 显示全部楼层
下水管用格堂专用保护盖保护,防止砂石堵塞管道
IMG_20211028_092056.jpg

IMG_20211028_092151.jpg

回复 支持 反对

使用道具 举报

您需要登录后才可以回帖 登录 | 立即注册

本版积分规则

全国统一客服电话
0570-8028505

24x7小时免费咨询

  • 官方在线客服

    QQ客服:小西

    点击交谈

    QQ客服:良子

    点击交谈

    QQ客服:闵月

    点击交谈
  • 衢州市柯城区财富中心3号楼2楼

  • 衢州格堂装饰有限公司

  • 扫一扫关注官方微信

    获取一手特惠信息

快速回复 返回顶部 返回列表