• 手机版

    扫码体验手机版

  • 微信公众号

    扫码关注公众号

登录注册
游客您好
第三方账号登陆

[衢州] 百岁苑7-1-5#106㎡现代简约 —— 【温·度】

[复制链接]
发表于 2022-1-8 15:02:36 | 显示全部楼层 |阅读模式
 【温·度】

格堂装饰为您全程记录装修全过程!

小区名称
百岁苑
房屋面积
106㎡
户型结构
套房
装修风格
现代
装修方式
半包
装修造价
查看请联系客服万元
设计师
韩工
项目经理
傅工
装修公司
格堂装饰
完工实景
完工实景
水电全景
水电全景
VR全景
VR全景
设计说明
打破空间边界感,让公共区域呈现开放式格局;同时,色彩使用极为克制,反而通过材质本身和灯光氛围刻画细节,烘托空间高级质感。暖色灯带贯穿整个空间,材质与灯光相互呼应,细微之处,呈现出丰富的美学效果。
更多信息
本帖最后由 格堂飞飞 于 2022-4-1 14:54 编辑

效果图
IMG_3143.JPG

IMG_3144.JPG
回复

使用道具 举报

 楼主| 发表于 2022-1-8 15:04:03 | 显示全部楼层
回复 支持 反对

使用道具 举报

 楼主| 发表于 2022-1-8 15:04:30 | 显示全部楼层

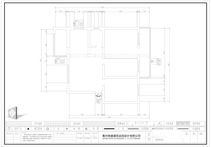
原始结构图
IMG_3146.JPG
回复 支持 反对

使用道具 举报

 楼主| 发表于 2022-1-8 15:04:48 | 显示全部楼层

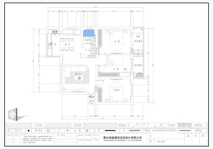
平面布置图。
IMG_3145.JPG
回复 支持 反对

使用道具 举报

 楼主| 发表于 2022-1-8 17:00:27 | 显示全部楼层
本帖最后由 格堂飞飞 于 2022-1-8 17:01 编辑

客厅墙面拆改中。
IMG_0313.JPG
房间墙面门洞拆改后,增加了采光和美观!
IMG_0311.JPG

IMG_0312.JPG

IMG_0314.JPG

IMG_0315.JPG
回复 支持 反对

使用道具 举报

 楼主| 发表于 2022-1-8 17:02:25 | 显示全部楼层

餐厅墙面拆改中。
IMG_0317.JPG

IMG_0316.JPG

IMG_0318.JPG

IMG_0319.JPG
回复 支持 反对

使用道具 举报

 楼主| 发表于 2022-1-8 17:03:07 | 显示全部楼层

厨房墙面拆改好了。
IMG_0321.JPG
墙面切割平整。
IMG_0322.JPG

IMG_0320.JPG
回复 支持 反对

使用道具 举报

 楼主| 发表于 2022-1-8 17:05:05 | 显示全部楼层

卫生间墙面拆改后,增加了采光和美观哦!
IMG_0324.JPG
墙面切割平整。
IMG_0327.JPG

IMG_0326.JPG

IMG_0323.JPG

IMG_0328.JPG
回复 支持 反对

使用道具 举报

 楼主| 发表于 2022-1-8 17:06:16 | 显示全部楼层

房间门洞墙面拆改后,增加了采光和美观!
IMG_0332.JPG

IMG_0333.JPG

IMG_0331.JPG

IMG_0330.JPG

IMG_0329.JPG
回复 支持 反对

使用道具 举报

 楼主| 发表于 2022-1-8 17:07:10 | 显示全部楼层

阳台墙面拆改好了,墙面切割平整。
IMG_0334.JPG

IMG_0336.JPG

IMG_0337.JPG

IMG_0335.JPG
回复 支持 反对

使用道具 举报

您需要登录后才可以回帖 登录 | 立即注册

本版积分规则

全国统一客服电话
0570-8028505

24x7小时免费咨询

  • 官方在线客服

    QQ客服:小西

    点击交谈

    QQ客服:良子

    点击交谈

    QQ客服:闵月

    点击交谈
  • 衢州市柯城区财富中心3号楼2楼

  • 衢州格堂装饰有限公司

  • 扫一扫关注官方微信

    获取一手特惠信息

快速回复 返回顶部 返回列表