• 手机版

    扫码体验手机版

  • 微信公众号

    扫码关注公众号

登录注册
游客您好
第三方账号登陆

[衢州] 姜家山大唐家园二区1-1-7#110㎡新中式——木弦

[复制链接]
发表于 2022-1-7 11:08:20 | 显示全部楼层 |阅读模式
姜家山大唐家园二区1-1-7#110㎡新中式——木弦

格堂装饰为您全程记录装修全过程!

小区名称
大唐家园二区
房屋面积
110㎡
户型结构
套房
装修风格
新中式
装修方式
半包
装修造价
查看请联系客服万元
设计师
徐工
项目经理
胡工
装修公司
格堂装饰
完工实景
完工实景
水电全景
水电全景
VR全景
VR全景
设计说明
本着业主“避繁就简”的生活态度,去除复杂的吊顶,以简单的中式线条作为顶面的唯一装饰,以简洁明快的设计风格为主调,在总体布局方面尽量满足业主生活上的需求,创造一个温馨,健康的家庭环境。
更多信息
本帖最后由 格堂彩霞 于 2022-2-16 09:12 编辑

效果图
6484137bee41aa15ae82238c0cd7a89.jpg

45518360830a3812fc82d9b8dbd1471.jpg
回复

使用道具 举报

 楼主| 发表于 2022-1-7 11:08:58 | 显示全部楼层
回复 支持 反对

使用道具 举报

 楼主| 发表于 2022-1-7 11:09:17 | 显示全部楼层
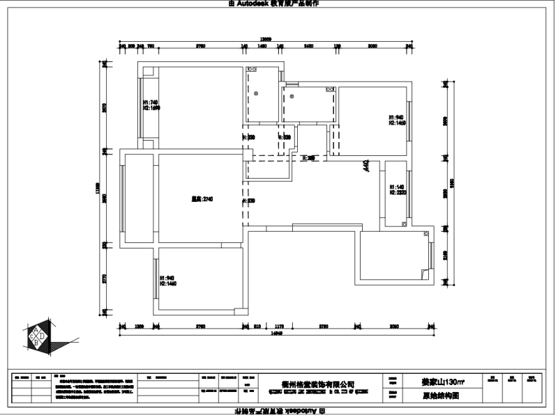
原始结构图
0d461c278e582008606940ca15eb8cb.png
回复 支持 反对

使用道具 举报

 楼主| 发表于 2022-1-7 11:09:32 | 显示全部楼层
平面布置图
f386474a7e777b75cb6a2720f21ce9e.png
回复 支持 反对

使用道具 举报

 楼主| 发表于 2022-1-7 11:24:02 | 显示全部楼层
开工仪式准备,开工横幅、鲜花、礼花准备到位
IMG_20220101_085133.jpg

IMG_20220101_085138.jpg

IMG_20220101_085142.jpg
回复 支持 反对

使用道具 举报

 楼主| 发表于 2022-1-7 11:24:23 | 显示全部楼层
煤气表保护到位
IMG_20220101_085156.jpg

IMG_20220101_085208.jpg
回复 支持 反对

使用道具 举报

 楼主| 发表于 2022-1-7 11:24:50 | 显示全部楼层
简易马桶到位
IMG_20220101_085934.jpg

IMG_20220101_085929.jpg
回复 支持 反对

使用道具 举报

 楼主| 发表于 2022-1-7 11:27:13 | 显示全部楼层
开工吉时到,礼花放起来!
恭祝业主开工大吉、大吉大利!!!
IMG_20220101_091824_副本.jpg

IMG_20220101_091825_副本.jpg

回复 支持 反对

使用道具 举报

 楼主| 发表于 2022-1-7 11:29:06 | 显示全部楼层
开工第一锤,由业主敲在要拆除的墙体的墙角(即拐角)上,象征一锤定音的意思,也是新房动土的一种表示方式
IMG_20220101_091852_副本.jpg

IMG_20220101_091902.jpg

回复 支持 反对

使用道具 举报

 楼主| 发表于 2022-1-7 11:31:04 | 显示全部楼层
恭祝开工大吉
IMG_20220101_091933_副本.jpg
回复 支持 反对

使用道具 举报

您需要登录后才可以回帖 登录 | 立即注册

本版积分规则

全国统一客服电话
0570-8028505

24x7小时免费咨询

  • 官方在线客服

    QQ客服:小西

    点击交谈

    QQ客服:良子

    点击交谈

    QQ客服:闵月

    点击交谈
  • 衢州市柯城区财富中心3号楼2楼

  • 衢州格堂装饰有限公司

  • 扫一扫关注官方微信

    获取一手特惠信息

快速回复 返回顶部 返回列表