• 手机版

    扫码体验手机版

  • 微信公众号

    扫码关注公众号

登录注册
游客您好
第三方账号登陆

[衢州] 姜家山兴运家园二区8-17#89㎡简约法式——简法孟非斯

[复制链接]
发表于 2022-1-5 14:19:17 | 显示全部楼层 |阅读模式
姜家山兴运家园二区8-17#89㎡简约法式——简法孟非斯

格堂装饰为您全程记录装修全过程!

小区名称
兴运家园
房屋面积
89㎡
户型结构
套房
装修风格
法式
装修方式
半包
装修造价
查看请联系客服万元
设计师
江工
项目经理
胡工
装修公司
格堂装饰
完工实景
完工实景
水电全景
水电全景
VR全景
VR全景
设计说明
刚开始给女主定位的是现代北欧风格,后面女主刷了一晚上的小红书确定自己喜欢的是简约法式的浪漫。然后我就在简约法式的基础上再加上一点孟菲斯色彩的趣味性,从而极具视觉冲击力。
更多信息
本帖最后由 格堂彩霞 于 2022-2-16 10:27 编辑

效果图
2296eb02e4ca3f6ad14365aa5085d89.png

95e9e104663cbcf3131b4313fef4052.png
回复

使用道具 举报

 楼主| 发表于 2022-1-5 14:19:34 | 显示全部楼层
回复 支持 反对

使用道具 举报

 楼主| 发表于 2022-1-5 14:19:47 | 显示全部楼层
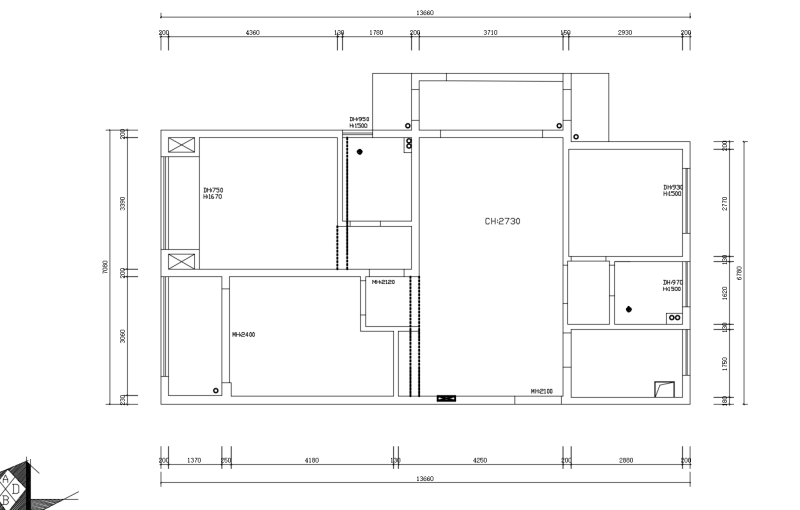
原始结构图
150f2fb6431a592f036ff37e130259c.png
回复 支持 反对

使用道具 举报

 楼主| 发表于 2022-1-5 14:19:59 | 显示全部楼层
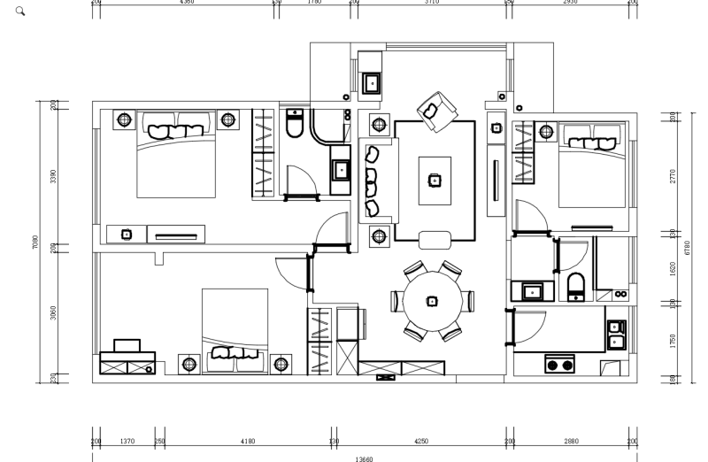
平面布置图
9701f1e81ac5e9d30e8dfbb36fb3f45.png
回复 支持 反对

使用道具 举报

 楼主| 发表于 2022-1-5 14:21:34 | 显示全部楼层
本帖最后由 格堂彩霞 于 2022-1-5 14:25 编辑

开工仪式准备,开工横幅、鲜花、礼花准备到位
IMG_20220102_090750_副本.jpg

IMG_20220102_091239.jpg
回复 支持 反对

使用道具 举报

 楼主| 发表于 2022-1-5 14:26:24 | 显示全部楼层
大门保护
IMG_20220102_092830.jpg


回复 支持 反对

使用道具 举报

 楼主| 发表于 2022-1-5 14:26:58 | 显示全部楼层
本帖最后由 格堂彩霞 于 2022-1-5 14:31 编辑

简易马桶到位
IMG_20220102_092422.jpg

IMG_20220102_092016.jpg
回复 支持 反对

使用道具 举报

 楼主| 发表于 2022-1-5 14:27:32 | 显示全部楼层
本帖最后由 格堂彩霞 于 2022-1-5 14:31 编辑

煤气表保护到位
IMG_20220102_092026.jpg

IMG_20220102_092156.jpg
回复 支持 反对

使用道具 举报

 楼主| 发表于 2022-1-5 14:28:08 | 显示全部楼层
开工吉时到,礼花放起来!
恭祝业主开工大吉、大吉大利!!!
IMG_20220102_091912_副本.jpg

IMG_20220102_091913_mh1641090066582.jpg

回复 支持 反对

使用道具 举报

 楼主| 发表于 2022-1-5 14:28:39 | 显示全部楼层
开工第一锤,由业主敲在要拆除的墙体的墙角(即拐角)上,象征一锤定音的意思,也是新房动土的一种表示方式
IMG_20220102_091943_副本.jpg

IMG_20220102_092006.jpg

回复 支持 反对

使用道具 举报

您需要登录后才可以回帖 登录 | 立即注册

本版积分规则

全国统一客服电话
0570-8028505

24x7小时免费咨询

  • 官方在线客服

    QQ客服:小西

    点击交谈

    QQ客服:良子

    点击交谈

    QQ客服:闵月

    点击交谈
  • 衢州市柯城区财富中心3号楼2楼

  • 衢州格堂装饰有限公司

  • 扫一扫关注官方微信

    获取一手特惠信息

快速回复 返回顶部 返回列表