• 手机版

    扫码体验手机版

  • 微信公众号

    扫码关注公众号

登录注册
游客您好
第三方账号登陆

[衢州] 中梁首府20-3-4#128㎡现代——当生活与浪漫撞个满怀

[复制链接]
发表于 2022-1-4 16:23:58 | 显示全部楼层 |阅读模式
中梁首府20-3-4#128㎡现代——当生活与浪漫撞个满怀

格堂装饰为您全程记录装修全过程!

小区名称
中梁首府
房屋面积
128㎡
户型结构
套房
装修风格
现代
装修方式
全包
装修造价
查看请联系客服万元
设计师
毛工
项目经理
施工
装修公司
格堂装饰
完工实景
完工实景
水电全景
水电全景
VR全景
VR全景
设计说明
设计的艺术植根于一种平衡的创造,即精神与物质、人与自然之间的平衡。一盏日落灯,是归家的第一幕。以素色的净,留下家的初印象,以落日的暖,融化心中的纷繁嘈杂,将一切隔绝在外。
更多信息
效果图
3b08bb012125b6dfbe61366f5bd44c0.jpg

72f7e27de6aa2cd477a3ad7b218a589.jpg
回复

使用道具 举报

 楼主| 发表于 2022-1-4 16:24:11 | 显示全部楼层
回复 支持 反对

使用道具 举报

 楼主| 发表于 2022-1-4 16:32:47 | 显示全部楼层
原始结构图
b1ac83d8b4a2ce8c8b1d9eaa7ed0d00_副本.png
回复 支持 反对

使用道具 举报

 楼主| 发表于 2022-1-4 16:34:10 | 显示全部楼层
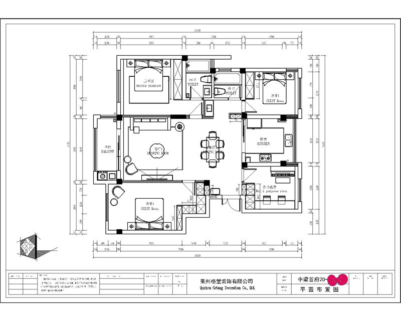
平面布置图
2975c510637c91de8ad4d9b12146963_副本.jpg
回复 支持 反对

使用道具 举报

 楼主| 发表于 2022-1-4 16:35:26 | 显示全部楼层
开工仪式准备,开工横幅、鲜花、礼花准备到位
IMG_20211231_080555.jpg
回复 支持 反对

使用道具 举报

 楼主| 发表于 2022-1-4 16:36:07 | 显示全部楼层
拆除放样
IMG_20211231_080615_副本.jpg

IMG_20211231_080723_副本.jpg

IMG_20211231_080949_副本.jpg

IMG_20211231_080946.jpg
回复 支持 反对

使用道具 举报

 楼主| 发表于 2022-1-4 16:38:11 | 显示全部楼层
按照图纸放样,确保放样无误
IMG_20211231_080610.jpg

IMG_20211231_082129.jpg

IMG_20211231_082221.jpg
回复 支持 反对

使用道具 举报

 楼主| 发表于 2022-1-4 16:39:03 | 显示全部楼层
按照图纸在墙上做好拆除标记 IMG_20211231_080803.jpg

IMG_20211231_080806.jpg

IMG_20211231_080832.jpg

IMG_20211231_080838.jpg
回复 支持 反对

使用道具 举报

 楼主| 发表于 2022-1-4 16:39:38 | 显示全部楼层
拆除标记做好
IMG_20211231_080707.jpg

IMG_20211231_080655.jpg

IMG_20211231_080728.jpg

IMG_20211231_080733.jpg
回复 支持 反对

使用道具 举报

 楼主| 发表于 2022-1-4 16:40:05 | 显示全部楼层
拆除标记做好
IMG_20211231_080744.jpg

IMG_20211231_080755.jpg

IMG_20211231_081052.jpg

IMG_20211231_081056.jpg

IMG_20211231_080738.jpg
回复 支持 反对

使用道具 举报

您需要登录后才可以回帖 登录 | 立即注册

本版积分规则

全国统一客服电话
0570-8028505

24x7小时免费咨询

  • 官方在线客服

    QQ客服:小西

    点击交谈

    QQ客服:良子

    点击交谈

    QQ客服:闵月

    点击交谈
  • 衢州市柯城区财富中心3号楼2楼

  • 衢州格堂装饰有限公司

  • 扫一扫关注官方微信

    获取一手特惠信息

快速回复 返回顶部 返回列表