• 手机版

    扫码体验手机版

  • 微信公众号

    扫码关注公众号

登录注册
游客您好
第三方账号登陆

[衢州] 阳光水岸4-3-11#138㎡现代——凝萃 · 时光

[复制链接]
发表于 2022-1-2 17:37:35 | 显示全部楼层 |阅读模式
阳光水岸4-3-11#138㎡现代——凝萃 · 时光

格堂装饰为您全程记录装修全过程!

小区名称
阳光水岸
房屋面积
138㎡
户型结构
套房
装修风格
现代
装修方式
半包
装修造价
查看请联系客服万元
设计师
毛工
项目经理
施工
装修公司
格堂装饰
完工实景
完工实景
水电全景
水电全景
VR全景
VR全景
设计说明
撇开繁华回归宁静,追求艺术的开阔和轻盈感,
试图营造一种繁华中的别样风景。
没有太多色彩,回归内心宁静,
通过营造室内空间秩序感,安放居住者内心,
搭建舒适丰富的生活场景,成为屋主的心灵修养地。
更多信息
本帖最后由 格堂小飞。 于 2022-1-2 18:17 编辑

效果图。
e742bf916b3e6c617665f916f127751.jpg

b399176f8d8b439ddbe5266f1739309.jpg

1970785ccebd9f371559177b4682027.jpg
回复

使用道具 举报

 楼主| 发表于 2022-1-2 17:38:45 | 显示全部楼层
本帖最后由 格堂小飞。 于 2022-3-30 14:53 编辑

目      录

1开工9水电验收
2拆改放样10泥木工材料
3拆改11木工中途
4砌墙放样.砌墙12泥木工验收
5水电放样13油漆材料
6水电材料14油漆中途
7水电开槽15安装阶段
8水电中途16竣工验收
回复 支持 反对

使用道具 举报

 楼主| 发表于 2022-1-2 17:42:07 | 显示全部楼层
原始结构图。
6376e72b2427c69c0b94999b41b086a.jpg
回复 支持 反对

使用道具 举报

 楼主| 发表于 2022-1-2 17:42:46 | 显示全部楼层
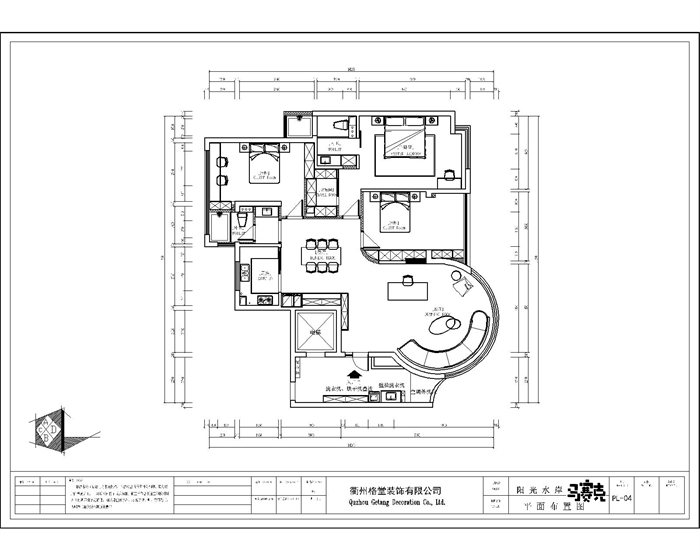
平面布置图。
c1aff7fe97de6418709fd962c89c6b2.jpg
回复 支持 反对

使用道具 举报

 楼主| 发表于 2022-1-2 17:43:57 | 显示全部楼层
本帖最后由 格堂小飞。 于 2022-1-2 17:54 编辑

电梯口保护到位,防止后期磕碰到。
IMG_20211231_100716.jpg

IMG_20211231_100718.jpg

IMG_20211231_100721.jpg

IMG_20211231_100723.jpg

IMG_20211231_100725.jpg
回复 支持 反对

使用道具 举报

 楼主| 发表于 2022-1-2 17:45:02 | 显示全部楼层
电梯口对角。
IMG_20211231_100731.jpg

IMG_20211231_100733.jpg

IMG_20211231_100736.jpg

IMG_20211231_100738.jpg

IMG_20211231_100742.jpg
回复 支持 反对

使用道具 举报

 楼主| 发表于 2022-1-2 17:45:53 | 显示全部楼层
本帖最后由 格堂小飞。 于 2022-1-2 17:47 编辑

大门、门槛保护到位。
IMG_20211231_100752.jpg

IMG_20211231_100811.jpg

IMG_20211231_100801.jpg
回复 支持 反对

使用道具 举报

 楼主| 发表于 2022-1-2 17:48:56 | 显示全部楼层
临时马桶:每一个施工现场都会配备临时小便斗,并且时刻保持干净卫生、保证工地环境干净、整洁。
IMG_20211231_101002.jpg
回复 支持 反对

使用道具 举报

 楼主| 发表于 2022-1-2 17:49:29 | 显示全部楼层
开工前下水管用格堂专用保护盖保护,防止砂石堵塞管道。
IMG_20211231_100923.jpg

IMG_20211231_100934.jpg

IMG_20211231_100941.jpg

IMG_20211231_101016.jpg
回复 支持 反对

使用道具 举报

 楼主| 发表于 2022-1-2 17:55:34 | 显示全部楼层
煤气表保护到位。
IMG_20211231_100917.jpg
回复 支持 反对

使用道具 举报

您需要登录后才可以回帖 登录 | 立即注册

本版积分规则

全国统一客服电话
0570-8028505

24x7小时免费咨询

  • 官方在线客服

    QQ客服:小西

    点击交谈

    QQ客服:良子

    点击交谈

    QQ客服:闵月

    点击交谈
  • 衢州市柯城区财富中心3号楼2楼

  • 衢州格堂装饰有限公司

  • 扫一扫关注官方微信

    获取一手特惠信息

快速回复 返回顶部 返回列表