• 手机版

    扫码体验手机版

  • 微信公众号

    扫码关注公众号

登录注册
游客您好
第三方账号登陆

中央郡7-1-4#165㎡ 现代极简——静水流深

[复制链接]
发表于 2022-1-2 15:37:13 | 显示全部楼层 |阅读模式
中央郡7-1-4#165㎡ 现代极简——静水流深

格堂装饰实景完工案例欣赏!

小区名称
中央郡
房屋面积
165㎡
户型结构
套房
装修风格
现代
装修方式
半包
装修造价
查看请联系客服万元
设计师
王工
项目经理
周工
装修公司
格堂装饰
装修过程
装修日记
设计说明
为满足业主生活功能上的需求,本案在结构上进行了大型的改动,改变了原结构客厅的位置,造型上用恰到好处的细节设计来满足业主对于家的需求。整体的色彩搭配上我们使用了原木色作为主色调,使用灰色进行点睛之笔,灯光设计上注重了点线面的处理,让家有了多层次的氛围。
更多信息
7E1A2086.jpg


回复

使用道具 举报

 楼主| 发表于 2022-1-2 15:42:45 | 显示全部楼层

原始构图▼▼▼

162921dog4xtesogm3oggg.jpg

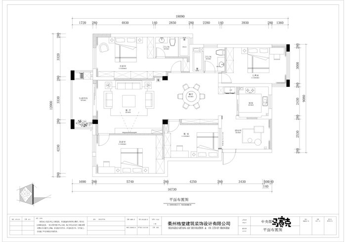
平面布置图▼▼▼

162938n0vcgc0ktgvqcqvk.jpg

客厅▼▼▼

7E1A2082.jpg

7E1A2083.jpg

7E1A2084.jpg

7E1A2086.jpg

7E1A2087.jpg

7E1A2088.jpg

7E1A2090.jpg

7E1A2091.jpg

玄关▼▼▼

7E1A2125.jpg

餐厅▼▼▼

7E1A2099.jpg

7E1A2101.jpg

7E1A2102.jpg

7E1A2104.jpg

7E1A2106.jpg

7E1A2108.jpg

厨房▼▼▼

7E1A2113.jpg

7E1A2114.jpg

7E1A2115.jpg

主卧▼▼▼

7E1A2116.jpg

7E1A2118.jpg

次卧▼▼▼

7E1A2122.jpg

7E1A2123.jpg

7E1A2124.jpg

主卫▼▼▼

7E1A2120.jpg

次卫▼▼▼

7E1A2112.jpg

活动室▼▼▼

7E1A2129.jpg

小景▼▼▼

7E1A2110.jpg

7E1A2141.jpg

7E1A2144.jpg

7E1A2150.jpg

7E1A2161.jpg






回复 支持 反对

使用道具 举报

您需要登录后才可以回帖 登录 | 立即注册

本版积分规则

全国统一客服电话
0570-8028505

24x7小时免费咨询

  • 官方在线客服

    QQ客服:小西

    点击交谈

    QQ客服:良子

    点击交谈

    QQ客服:闵月

    点击交谈
  • 衢州市柯城区财富中心3号楼2楼

  • 衢州格堂装饰有限公司

  • 扫一扫关注官方微信

    获取一手特惠信息

快速回复 返回顶部 返回列表