• 手机版

    扫码体验手机版

  • 微信公众号

    扫码关注公众号

登录注册
游客您好
第三方账号登陆

月亮湾沁园2-3-12#117㎡现代——栖

[复制链接]
发表于 2022-1-2 14:18:52 | 显示全部楼层 |阅读模式
月亮湾沁园2-3-12#117㎡现代——栖

格堂装饰实景完工案例欣赏!

小区名称
月亮湾
房屋面积
117㎡
户型结构
套房
装修风格
现代
装修方式
半包
装修造价
查看请联系客服万元
设计师
毛工
项目经理
周工
装修公司
格堂装饰
装修过程
装修日记
设计说明
设计说明:空间对大多数人具有昭示性,人与空间个性相合,具有相似的生活观念,才是设计背后的逻辑。这样看来,仿佛是一切随缘,又冥冥之中早已注定。
更多信息
本帖最后由 格堂方俊 于 2022-1-8 16:20 编辑

7E1A1257.jpg


回复

使用道具 举报

 楼主| 发表于 2022-1-2 14:23:07 | 显示全部楼层

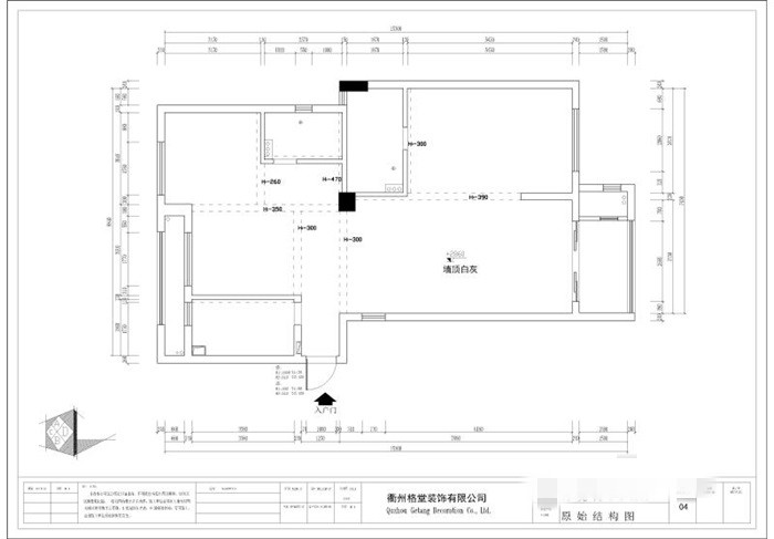
原始构图▼▼▼

160710q6v1v22ccpbsrh7p.jpg

平面布置图▼▼▼

160738ijunonjjhnnddzol.jpg

客厅▼▼▼

7E1A1189.jpg

7E1A1191.jpg

7E1A1192.jpg

7E1A1198.jpg

7E1A1257.jpg

7E1A1260.jpg

餐厅▼▼▼

7E1A1213.jpg

7E1A1214.jpg

7E1A1207.jpg

7E1A1204.jpg

厨房▼▼▼

7E1A1282.jpg

主卧▼▼▼

7E1A1262.jpg

7E1A1263.jpg

7E1A1265.jpg

7E1A1266.jpg

7E1A1267.jpg

榻榻米房▼▼▼

7E1A1215.jpg

7E1A1219.jpg

7E1A1221.jpg

7E1A1250.jpg

主卫▼▼▼

7E1A1280.jpg

小景▼▼▼

7E1A1199.jpg

7E1A1200.jpg

7E1A1212.jpg

7E1A1240.jpg

7E1A1270.jpg




回复 支持 反对

使用道具 举报

您需要登录后才可以回帖 登录 | 立即注册

本版积分规则

全国统一客服电话
0570-8028505

24x7小时免费咨询

  • 官方在线客服

    QQ客服:小西

    点击交谈

    QQ客服:良子

    点击交谈

    QQ客服:闵月

    点击交谈
  • 衢州市柯城区财富中心3号楼2楼

  • 衢州格堂装饰有限公司

  • 扫一扫关注官方微信

    获取一手特惠信息

快速回复 返回顶部 返回列表