• 手机版

    扫码体验手机版

  • 微信公众号

    扫码关注公众号

登录注册
游客您好
第三方账号登陆

观棠府39-2-1#126㎡ 现代——LESS IS MORE 简为真

[复制链接]
发表于 2022-1-1 17:08:02 | 显示全部楼层 |阅读模式
观棠府39-2-1#126㎡ 现代——LESS IS MORE 简为真

格堂装饰实景完工案例欣赏!

小区名称
观棠府
房屋面积
126㎡
户型结构
套房
装修风格
现代
装修方式
半包
装修造价
查看请联系客服万元
设计师
徐工
项目经理
施工
装修公司
格堂装饰
装修过程
装修日记
设计说明
每个人都渴望在繁琐的生活中获得和谐与安宁的精神居所。
空间素简,不需要装饰的外表,一如探索生活的本质,努力的为这个世界,设计出一种更加单纯、简洁的生活方式。
更多信息
本帖最后由 格堂方俊 于 2022-1-5 09:05 编辑

3D9A3658.jpg


回复

使用道具 举报

 楼主| 发表于 2022-1-1 17:12:40 | 显示全部楼层
本帖最后由 格堂方俊 于 2022-4-7 14:32 编辑


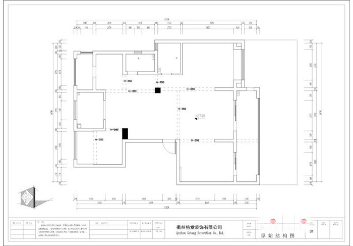
原始构图▼▼▼

164249jsxur01u8vg03g03.jpg

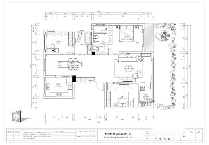
平面布置图▼▼▼

164316yynnxadxqrefxdex.jpg





回复 支持 反对

使用道具 举报

 楼主| 发表于 2022-4-7 14:33:19 | 显示全部楼层
客厅▼▼▼



3D9A3015.jpg


3D9A3033.jpg


3D9A3073.jpg


3D9A3088.jpg


3D9A3104.jpg


3D9A3130.jpg


3D9A3141.jpg


3D9A3658.jpg




回复 支持 反对

使用道具 举报

 楼主| 发表于 2022-4-7 14:33:42 | 显示全部楼层
餐厅▼▼▼



3D9A3158.jpg


3D9A3174.jpg


3D9A3310.jpg




回复 支持 反对

使用道具 举报

 楼主| 发表于 2022-4-7 14:34:02 | 显示全部楼层
厨房▼▼▼



3D9A3279.jpg


3D9A3286.jpg




回复 支持 反对

使用道具 举报

 楼主| 发表于 2022-4-7 14:34:34 | 显示全部楼层
主卧▼▼▼



3D9A3467.jpg


3D9A3488-1.jpg


3D9A3506.jpg


3D9A3526.jpg




回复 支持 反对

使用道具 举报

 楼主| 发表于 2022-4-7 14:35:24 | 显示全部楼层
主卫▼▼▼



3D9A3641.jpg


3D9A3621.jpg


回复 支持 反对

使用道具 举报

 楼主| 发表于 2022-4-7 14:35:48 | 显示全部楼层
次卫干区▼▼▼



3D9A3560.jpg


3D9A3571.jpg




回复 支持 反对

使用道具 举报

 楼主| 发表于 2022-4-7 14:36:32 | 显示全部楼层
小景▼▼▼



3D9A3190-2.jpg


3D9A3218.jpg


3D9A3393.jpg


3D9A3413.jpg


3D9A3678.jpg


3D9A3747.jpg


回复 支持 反对

使用道具 举报

您需要登录后才可以回帖 登录 | 立即注册

本版积分规则

全国统一客服电话
0570-8028505

24x7小时免费咨询

  • 官方在线客服

    QQ客服:小西

    点击交谈

    QQ客服:良子

    点击交谈

    QQ客服:闵月

    点击交谈
  • 衢州市柯城区财富中心3号楼2楼

  • 衢州格堂装饰有限公司

  • 扫一扫关注官方微信

    获取一手特惠信息

快速回复 返回顶部 返回列表