• 手机版

    扫码体验手机版

  • 微信公众号

    扫码关注公众号

登录注册
游客您好
第三方账号登陆

国金旭辉城10-3-2#99㎡现代 -层 叙

[复制链接]
发表于 2022-1-1 16:09:05 | 显示全部楼层 |阅读模式
国金旭辉城10-3-2#99㎡现代 -层 叙

格堂装饰实景完工案例欣赏!

小区名称
国金旭辉城
房屋面积
99㎡
户型结构
套房
装修风格
现代
装修方式
全包
装修造价
查看请联系客服万元
设计师
徐工
项目经理
周工
装修公司
格堂装饰
装修过程
装修日记
设计说明
我们不断的探索
设计的多种表达
空间的多重呈现

We keep exploring
Multiple expressions of design
Multiple representations of space
更多信息
本帖最后由 格堂方俊 于 2022-1-1 16:12 编辑

7E1A0416.jpg


回复

使用道具 举报

 楼主| 发表于 2022-1-1 16:18:01 | 显示全部楼层

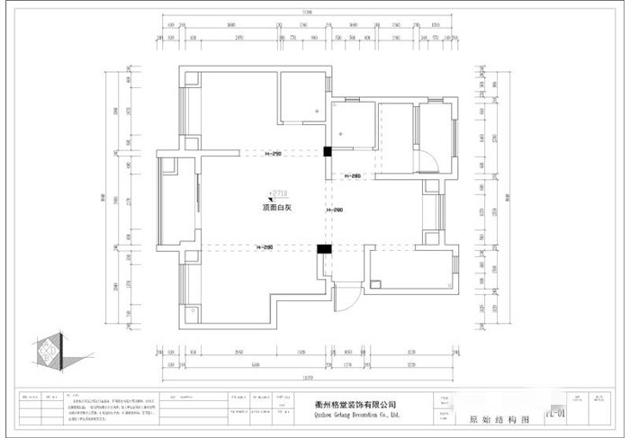
原始构图▼▼▼

093028zld38drrd5n7r1zl.jpg

平面布置图▼▼▼

093053mtlmm2ljxlokmt04.jpg

客厅▼▼▼

7E1A0413.jpg

7E1A0416.jpg

7E1A0418.jpg

7E1A0419.jpg

7E1A0422.jpg

7E1A0427.jpg

7E1A0430.jpg

7E1A0434.jpg

餐厅▼▼▼

7E1A0460.jpg

7E1A0462.jpg

玄关▼▼▼

7E1A0456.jpg

7E1A0457.jpg

厨房▼▼▼
7E1A0463.jpg

主卧▼▼▼

7E1A0472.jpg

7E1A0473.jpg

7E1A0475.jpg

干区次卫▼▼▼
7E1A0492.jpg

7E1A0494.jpg

娱乐室▼▼▼

7E1A0490.jpg

小景▼▼▼
7E1A0426.jpg

7E1A0442.jpg

7E1A0453.jpg

7E1A0469.jpg

7E1A0470.jpg

7E1A0484.jpg

7E1A0487.jpg




回复 支持 反对

使用道具 举报

您需要登录后才可以回帖 登录 | 立即注册

本版积分规则

全国统一客服电话
0570-8028505

24x7小时免费咨询

  • 官方在线客服

    QQ客服:小西

    点击交谈

    QQ客服:良子

    点击交谈

    QQ客服:闵月

    点击交谈
  • 衢州市柯城区财富中心3号楼2楼

  • 衢州格堂装饰有限公司

  • 扫一扫关注官方微信

    获取一手特惠信息

快速回复 返回顶部 返回列表