• 手机版

    扫码体验手机版

  • 微信公众号

    扫码关注公众号

登录注册
游客您好
第三方账号登陆

信安华府2-3-150#86㎡ 现代——期颐

[复制链接]
发表于 2022-1-1 15:51:27 | 显示全部楼层 |阅读模式
信安华府2-3-150#86㎡ 现代——期颐

格堂装饰实景完工案例欣赏!

小区名称
信安华府
房屋面积
86㎡
户型结构
套房
装修风格
现代
装修方式
半包
装修造价
查看请联系客服万元
设计师
徐工
项目经理
郑工
装修公司
格堂装饰
装修过程
装修日记
设计说明
城市角落里,一盏为自己而留的灯、年华老去后,依然从容的生活...设计,将人的情绪延展进房屋的形态,建立起情感与房屋的连接,从功能区的合理规划,到一个摆件的精美舒适;都是为了让人能在家里,获得最舒适、轻松、自由的生活状态,找到生命的归属感。
更多信息
7E1A0062.jpg


回复

使用道具 举报

 楼主| 发表于 2022-1-1 15:58:41 | 显示全部楼层
本帖最后由 格堂方俊 于 2022-1-1 16:00 编辑


原始构图▼▼▼

170452zzgggi38gid8g88g.jpg

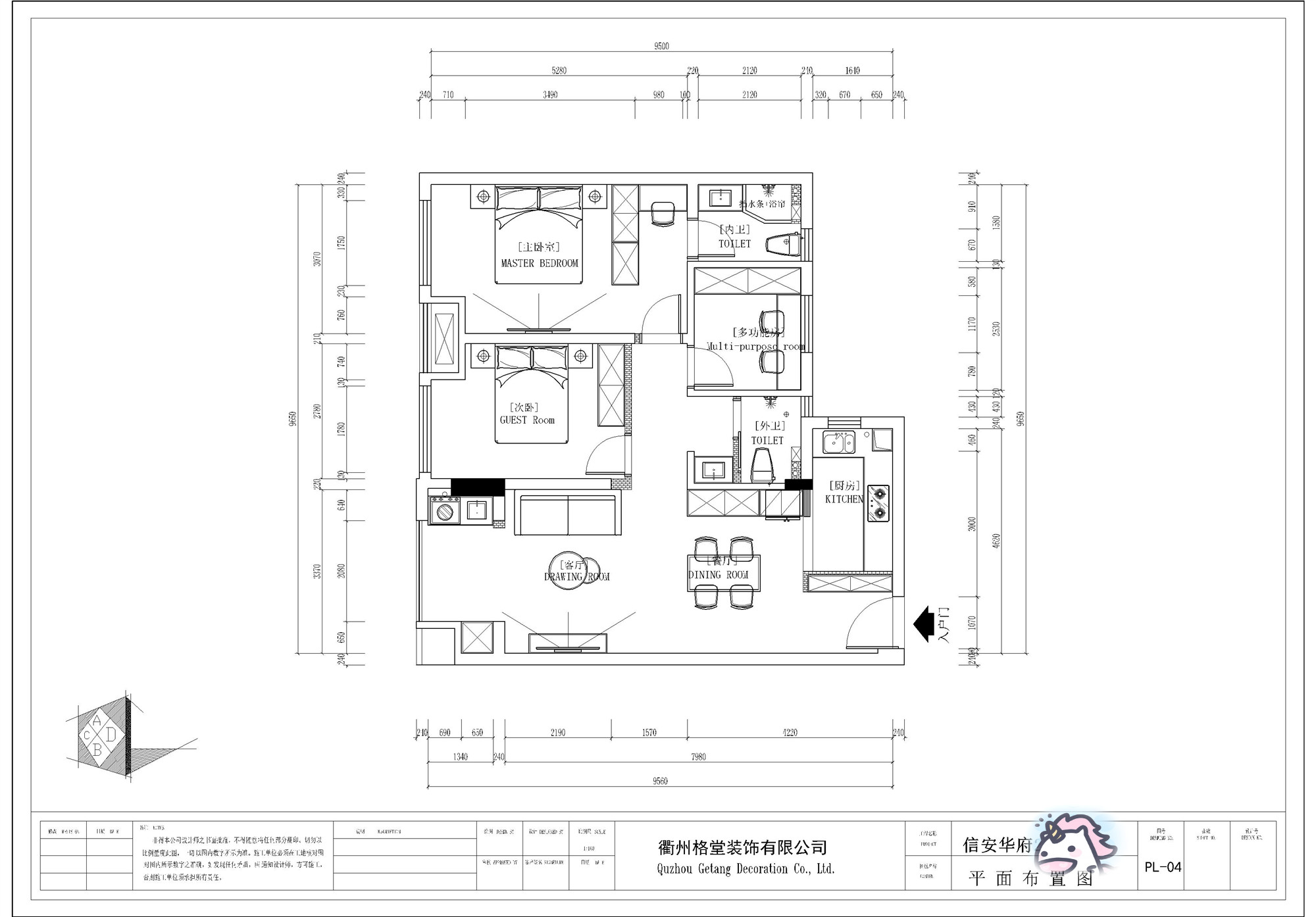
平面布置图▼▼▼
170452lipfk7f9pkppxrxi.jpg

客厅▼▼▼
7E1A0036.jpg

7E1A0038.jpg

7E1A0040.jpg

7E1A0042.jpg

7E1A0047.jpg


7E1A0062.jpg

餐厅▼▼▼
7E1A0052.jpg

7E1A0055.jpg

7E1A0059.jpg

7E1A0061.jpg

7E1A0063.jpg

餐厅▼▼▼

7E1A0076.jpg

玄关▼▼▼

7E1A0064.jpg


主卧▼▼▼
7E1A0091.jpg

7E1A0094.jpg

7E1A0096.jpg

7E1A0097.jpg

次卧▼▼▼

7E1A0100.jpg

7E1A0101.jpg

书房▼▼▼

7E1A0085.jpg

7E1A0086.jpg

阳台▼▼▼
7E1A0049.jpg

7E1A0050.jpg



干区▼▼▼

7E1A0079.jpg


卫生间▼▼▼

7E1A0090.jpg

7E1A0088.jpg

小景▼▼▼

7E1A0067.jpg

7E1A0068.jpg

7E1A0071.jpg

7E1A0073.jpg

7E1A0104.jpg

7E1A0106.jpg







回复 支持 反对

使用道具 举报

您需要登录后才可以回帖 登录 | 立即注册

本版积分规则

全国统一客服电话
0570-8028505

24x7小时免费咨询

  • 官方在线客服

    QQ客服:小西

    点击交谈

    QQ客服:良子

    点击交谈

    QQ客服:闵月

    点击交谈
  • 衢州市柯城区财富中心3号楼2楼

  • 衢州格堂装饰有限公司

  • 扫一扫关注官方微信

    获取一手特惠信息

快速回复 返回顶部 返回列表