• 手机版

    扫码体验手机版

  • 微信公众号

    扫码关注公众号

登录注册
游客您好
第三方账号登陆

[衢州] 衢州公馆22-30#115㎡现代简约——云染

[复制链接]
发表于 2021-12-25 16:46:40 | 显示全部楼层 |阅读模式
衢州公馆22-30#115㎡现代简约——云染

格堂装饰为您全程记录装修全过程!

小区名称
衢州公馆
房屋面积
115㎡
户型结构
套房
装修风格
现代
装修方式
全包
装修造价
查看请联系客服万元
设计师
何工
项目经理
刘工
装修公司
格堂装饰
完工实景
完工实景
水电全景
水电全景
VR全景
VR全景
设计说明
现代风格家居的空间,色彩就要跳跃出来。
高纯色彩的大量运用,大胆而灵活,不单是对现代风格家居的遵循,也是个性的展示。
整个客厅被纯净的白色所主宰,浅色的沙发,白色的背景墙,浅灰色的地毯,张扬而不夸张。
更多信息
效果图。

微信图片_20211225163022.png

微信图片_202112251630221.png
回复

使用道具 举报

 楼主| 发表于 2021-12-25 16:47:56 | 显示全部楼层
本帖最后由 格堂小飞。 于 2022-2-9 15:51 编辑

目      录

1开工9水电验收
2拆改,铲灰10泥木工材料
3砌墙11木工中途
43D放大样.水电放样12泥木工验收
5水电开槽13油漆材料
6水电材料14油漆中途
7水电中途15安装阶段
8水电布线16竣工验收

回复 支持 反对

使用道具 举报

 楼主| 发表于 2021-12-25 16:52:43 | 显示全部楼层
原始结构图。
微信图片_202112251630221.jpg
回复 支持 反对

使用道具 举报

 楼主| 发表于 2021-12-25 16:53:52 | 显示全部楼层
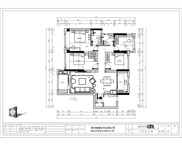
平面布置图。
微信图片_20211225163022.jpg
回复 支持 反对

使用道具 举报

 楼主| 发表于 2021-12-25 16:55:55 | 显示全部楼层
电梯口保护到位,防止后期磕碰到。
微信图片_2021122516262813.jpg
回复 支持 反对

使用道具 举报

 楼主| 发表于 2021-12-25 16:57:07 | 显示全部楼层
电梯口对角。
微信图片_2021122516262817.jpg
回复 支持 反对

使用道具 举报

 楼主| 发表于 2021-12-25 16:58:13 | 显示全部楼层
大门保护到位。
IMG_20211223_105053.jpg
回复 支持 反对

使用道具 举报

 楼主| 发表于 2021-12-25 16:59:02 | 显示全部楼层
临时马桶:每一个施工现场都会配备临时小便斗,并且时刻保持干净卫生、保证工地环境干净、整洁。
IMG_20211223_104610.jpg
回复 支持 反对

使用道具 举报

 楼主| 发表于 2021-12-25 17:00:31 | 显示全部楼层
开工前下水管用格堂专用保护盖保护,防止砂石堵塞管道。
IMG_20211223_104616.jpg

IMG_20211223_104632.jpg
回复 支持 反对

使用道具 举报

 楼主| 发表于 2021-12-25 17:01:11 | 显示全部楼层
煤气表保护到位。
IMG_20211223_104653.jpg
回复 支持 反对

使用道具 举报

您需要登录后才可以回帖 登录 | 立即注册

本版积分规则

全国统一客服电话
0570-8028505

24x7小时免费咨询

  • 官方在线客服

    QQ客服:小西

    点击交谈

    QQ客服:良子

    点击交谈

    QQ客服:闵月

    点击交谈
  • 衢州市柯城区财富中心3号楼2楼

  • 衢州格堂装饰有限公司

  • 扫一扫关注官方微信

    获取一手特惠信息

快速回复 返回顶部 返回列表