• 手机版

    扫码体验手机版

  • 微信公众号

    扫码关注公众号

登录注册
游客您好
第三方账号登陆

[衢州] 吾悦华府3-1-20#153㎡现代——形简意长

[复制链接]
发表于 2021-11-24 14:46:34 | 显示全部楼层 |阅读模式
形简意长

格堂装饰为您全程记录装修全过程!

小区名称
吾悦华府
房屋面积
153㎡
户型结构
套房
装修风格
现代
装修方式
半包
装修造价
查看请联系客服万元
设计师
王工
项目经理
施工
装修公司
格堂装饰
完工实景
完工实景
水电全景
水电全景
VR全景
VR全景
设计说明
本案为简约的空间设计通常非常含蓄,往往能达到以少胜多、以简胜繁的效果,以简洁的表现形式来满足人们对空间环境那种感性的、本能的和理性的需求,这是当今国际社会流行的设计风格——简洁明快的简约主义
更多信息
效果图展示
微信图片_202111241411091.jpg

微信图片_20211124141109.jpg
回复

使用道具 举报

 楼主| 发表于 2021-11-24 14:47:39 | 显示全部楼层
本帖最后由 格堂福星 于 2021-11-24 14:55 编辑

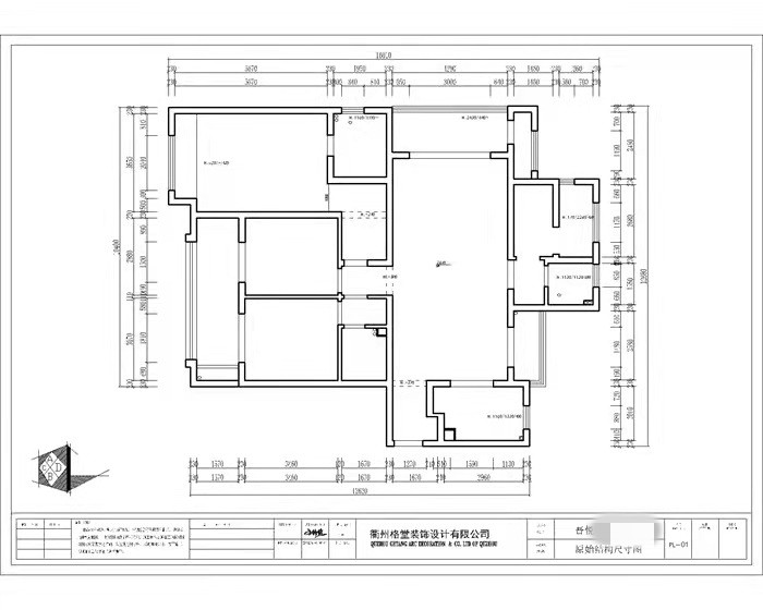
原始结构图
微信图片_202111241411093.jpg
回复 支持 反对

使用道具 举报

 楼主| 发表于 2021-11-24 14:55:38 | 显示全部楼层
平面布局方案
微信图片_202111241411092.jpg
回复 支持 反对

使用道具 举报

 楼主| 发表于 2021-11-24 15:08:59 | 显示全部楼层
主卧吊顶基础已完成
IMG_20211124_103815.jpg

IMG_20211124_103813.jpg

IMG_20211124_103810.jpg

IMG_20211124_103808.jpg

IMG_20211124_103806.jpg
回复 支持 反对

使用道具 举报

 楼主| 发表于 2021-11-24 15:09:37 | 显示全部楼层
主卧对角
IMG_20211124_103800.jpg

IMG_20211124_103757.jpg

IMG_20211124_103751.jpg

IMG_20211124_103749.jpg

IMG_20211124_103747.jpg
回复 支持 反对

使用道具 举报

 楼主| 发表于 2021-11-24 15:10:54 | 显示全部楼层
过道吊顶基础已完成,地砖贴好也保护。
IMG_20211124_103739.jpg

IMG_20211124_103736.jpg

IMG_20211124_103733.jpg

IMG_20211124_103731.jpg

IMG_20211124_103728.jpg
回复 支持 反对

使用道具 举报

 楼主| 发表于 2021-11-24 15:11:44 | 显示全部楼层
过道对角
IMG_20211124_103723.jpg

IMG_20211124_103721.jpg

IMG_20211124_103716.jpg

IMG_20211124_103714.jpg

IMG_20211124_103710.jpg
回复 支持 反对

使用道具 举报

 楼主| 发表于 2021-11-24 15:12:44 | 显示全部楼层
外卫干区贴砖工艺展示
IMG_20211124_103655.jpg
回复 支持 反对

使用道具 举报

 楼主| 发表于 2021-11-24 15:15:02 | 显示全部楼层
外卫墙地砖已贴好,墙面水电标识已粘贴,防止后期安装打到水管。
IMG_20211124_103648.jpg

IMG_20211124_103645.jpg

IMG_20211124_103642.jpg

IMG_20211124_103639.jpg

IMG_20211124_103636.jpg
回复 支持 反对

使用道具 举报

 楼主| 发表于 2021-11-24 15:15:54 | 显示全部楼层
外卫对角
IMG_20211124_103627.jpg

IMG_20211124_103630.jpg

IMG_20211124_103624.jpg

IMG_20211124_103622.jpg

IMG_20211124_103619.jpg
回复 支持 反对

使用道具 举报

您需要登录后才可以回帖 登录 | 立即注册

本版积分规则

全国统一客服电话
0570-8028505

24x7小时免费咨询

  • 官方在线客服

    QQ客服:小西

    点击交谈

    QQ客服:良子

    点击交谈

    QQ客服:闵月

    点击交谈
  • 衢州市柯城区财富中心3号楼2楼

  • 衢州格堂装饰有限公司

  • 扫一扫关注官方微信

    获取一手特惠信息

快速回复 返回顶部 返回列表