• 手机版

    扫码体验手机版

  • 微信公众号

    扫码关注公众号

登录注册
游客您好
第三方账号登陆

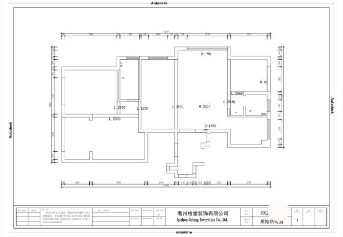
[龙游] 印江南7#11#109㎡现代——极简

[复制链接]
发表于 2021-11-14 16:45:17 | 显示全部楼层 |阅读模式
极简

格堂装饰为您全程记录装修全过程!

小区名称
印江南
房屋面积
109㎡
户型结构
套房
装修风格
现代
装修方式
半包
装修造价
查看请联系客服万元
设计师
徐工
项目经理
沈工
装修公司
格堂装饰
完工实景
完工实景
水电全景
水电全景
VR全景
VR全景
设计说明
本案以极简的设计手法,融合现代风的温情,打造个性而温暖的居住空间。勇于打破常规,用更为独特,个性的造型,打造更具想象力的空间氛围。而有品质的简朴,有节制的丰盛,才是好设计的根本。
更多信息
回复

使用道具 举报

 楼主| 发表于 2021-11-14 16:47:37 | 显示全部楼层
本帖最后由 格堂小静 于 2022-6-10 11:15 编辑

开工大吉布置电梯入户门做好保护,防止磕碰受损 IMG_2820.JPG


回复 支持 反对

使用道具 举报

 楼主| 发表于 2021-11-14 16:49:03 | 显示全部楼层
本帖最后由 格堂小静 于 2022-6-10 11:14 编辑

所有玻璃窗做好保护,防尘
IMG_2817.JPG

IMG_2818.JPG
回复 支持 反对

使用道具 举报

 楼主| 发表于 2021-11-14 16:49:25 | 显示全部楼层
本帖最后由 格堂小静 于 2022-6-10 10:51 编辑

所有玻璃窗做好保护,防尘
IMG_2819.JPG

IMG_2821.JPG
回复 支持 反对

使用道具 举报

 楼主| 发表于 2021-11-14 16:49:53 | 显示全部楼层


IMG_2825.JPG

IMG_2826.JPG
回复 支持 反对

使用道具 举报

 楼主| 发表于 2021-11-14 16:50:17 | 显示全部楼层


IMG_2823.JPG
回复 支持 反对

使用道具 举报

 楼主| 发表于 2021-11-14 16:50:51 | 显示全部楼层
本帖最后由 格堂小静 于 2022-6-10 10:49 编辑

下水管道做好保护,防止沙石阻塞
IMG_2827.JPG

IMG_2829.JPG
回复 支持 反对

使用道具 举报

 楼主| 发表于 2021-11-14 16:53:41 | 显示全部楼层

IMG_2830.JPG
回复 支持 反对

使用道具 举报

 楼主| 发表于 2021-11-14 16:54:11 | 显示全部楼层
本帖最后由 格堂小静 于 2022-6-10 10:49 编辑

煤气表做好保护,防止磕碰受损
IMG_2831.JPG
回复 支持 反对

使用道具 举报

 楼主| 发表于 2021-11-14 16:55:15 | 显示全部楼层
本帖最后由 格堂小静 于 2022-6-10 10:52 编辑

设计师和项目经理现场对接拆改放样
IMG_2824.JPG

IMG_2835.JPG
回复 支持 反对

使用道具 举报

您需要登录后才可以回帖 登录 | 立即注册

本版积分规则

全国统一客服电话
0570-8028505

24x7小时免费咨询

  • 官方在线客服

    QQ客服:小西

    点击交谈

    QQ客服:良子

    点击交谈

    QQ客服:闵月

    点击交谈
  • 衢州市柯城区财富中心3号楼2楼

  • 衢州格堂装饰有限公司

  • 扫一扫关注官方微信

    获取一手特惠信息

快速回复 返回顶部 返回列表