• 手机版

    扫码体验手机版

  • 微信公众号

    扫码关注公众号

登录注册
游客您好
第三方账号登陆

[开化] 中梁望府17#307㎡原木风-- 路过全世界,却发现最好的风景在家里!

[复制链接]
发表于 2021-11-7 10:10:28 | 显示全部楼层 |阅读模式
中梁望府17#307㎡原木风-- 路过全世界,却发现最好的风景在家里!

格堂装饰为您全程记录装修全过程!

小区名称
中梁望府
房屋面积
307㎡
户型结构
七房5卫5厅一厨1院
装修风格
日式
装修方式
半包
装修造价
查看请联系客服万元
设计师
余工
项目经理
毛工
装修公司
格堂装饰
完工实景
完工实景
水电全景
水电全景
VR全景
VR全景
设计说明
好用是基础,好看是结果
更多信息
回复

使用道具 举报

 楼主| 发表于 2021-11-7 10:11:29 | 显示全部楼层
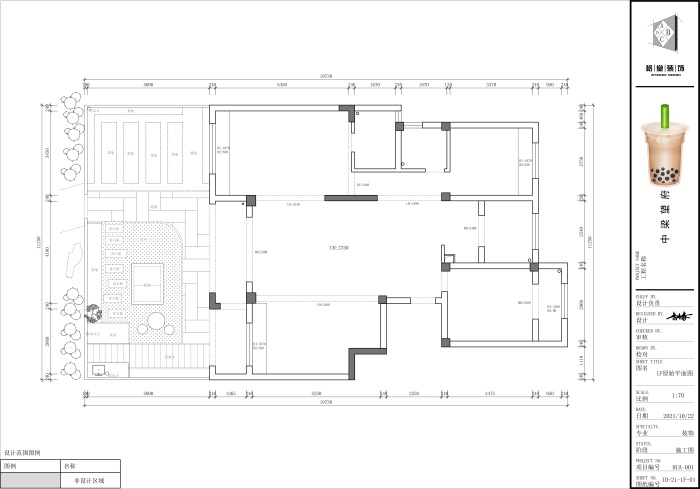
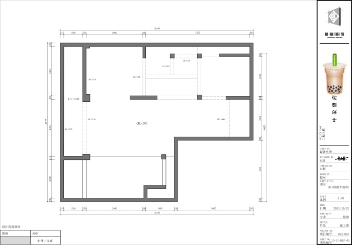
原始结构图
1F原始平面图_副本.jpg

B1F原始平面图_副本.jpg

B2F原始平面图_副本.jpg
回复 支持 反对

使用道具 举报

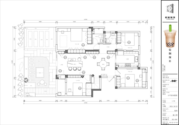
 楼主| 发表于 2021-11-7 10:12:03 | 显示全部楼层

平面布置图
1F平面布置图_副本.jpg

B1F平面布置图_副本.jpg

B2F平面布置图_副本.jpg
回复 支持 反对

使用道具 举报

 楼主| 发表于 2021-11-7 10:13:37 | 显示全部楼层

开工前准备
IMG_9560.JPG

IMG_9562.JPG

IMG_9561.JPG

IMG_9563.JPG

IMG_9564.JPG
回复 支持 反对

使用道具 举报

 楼主| 发表于 2021-11-7 10:14:40 | 显示全部楼层

下水管加保护盖保护
IMG_9566.JPG

IMG_9565.JPG

IMG_9567.JPG

IMG_9568.JPG

IMG_9570.JPG
回复 支持 反对

使用道具 举报

 楼主| 发表于 2021-11-7 10:14:59 | 显示全部楼层

临时马桶
IMG_9569.JPG
回复 支持 反对

使用道具 举报

 楼主| 发表于 2021-11-7 10:15:27 | 显示全部楼层

进户保护
IMG_9571.JPG

IMG_9572.JPG

IMG_9573.JPG

IMG_9574.JPG

IMG_9575.JPG
回复 支持 反对

使用道具 举报

 楼主| 发表于 2021-11-7 10:16:47 | 显示全部楼层

进户对角保护
IMG_9576.JPG

IMG_9577.JPG

IMG_9578.JPG

IMG_9579.JPG

IMG_9580.JPG
回复 支持 反对

使用道具 举报

 楼主| 发表于 2021-11-7 10:17:45 | 显示全部楼层
电梯口保护
IMG_9581.JPG

IMG_9582.JPG

IMG_9583.JPG

IMG_9584.JPG

IMG_9585.JPG
回复 支持 反对

使用道具 举报

 楼主| 发表于 2021-11-7 10:18:18 | 显示全部楼层

电梯口对角保护
IMG_9586.JPG

IMG_9587.JPG

IMG_9588.JPG

IMG_9589.JPG

IMG_9590.JPG
回复 支持 反对

使用道具 举报

您需要登录后才可以回帖 登录 | 立即注册

本版积分规则

全国统一客服电话
0570-8028505

24x7小时免费咨询

  • 官方在线客服

    QQ客服:小西

    点击交谈

    QQ客服:良子

    点击交谈

    QQ客服:闵月

    点击交谈
  • 衢州市柯城区财富中心3号楼2楼

  • 衢州格堂装饰有限公司

  • 扫一扫关注官方微信

    获取一手特惠信息

快速回复 返回顶部 返回列表