• 手机版

    扫码体验手机版

  • 微信公众号

    扫码关注公众号

登录注册
游客您好
第三方账号登陆

[衢州] 上童自建别墅#290㎡新中式——清风雾月

[复制链接]
发表于 2021-11-1 11:35:57 | 显示全部楼层 |阅读模式
上童自建别墅#290㎡新中式——清风雾月

格堂装饰为您全程记录装修全过程!

小区名称
上童
房屋面积
290㎡
户型结构
别墅
装修风格
新中式
装修方式
半包
装修造价
查看请联系客服万元
设计师
何工
项目经理
余工
装修公司
格堂装饰
完工实景
完工实景
水电全景
水电全景
VR全景
VR全景
设计说明
设计,并不是单一的复刻,而是在理性中凝练人文的蕴涵。
尊重传统,追溯本源,以稳重、平和、和谐为特征,近而不浮,远而不尽。
在国际化的思潮中,保持原有地域或民族性,重新解读传统与传承,细节中体现艺术的传承和时光的印记!
更多信息
效果图。

效果图1.png

效果图2.png
回复

使用道具 举报

 楼主| 发表于 2021-11-1 11:36:40 | 显示全部楼层
本帖最后由 格堂小飞。 于 2022-2-26 14:49 编辑

目      录

回复 支持 反对

使用道具 举报

 楼主| 发表于 2021-11-1 11:37:11 | 显示全部楼层
本帖最后由 格堂小飞。 于 2021-11-23 09:17 编辑

一楼原始结构图。
1.jpg

回复 支持 反对

使用道具 举报

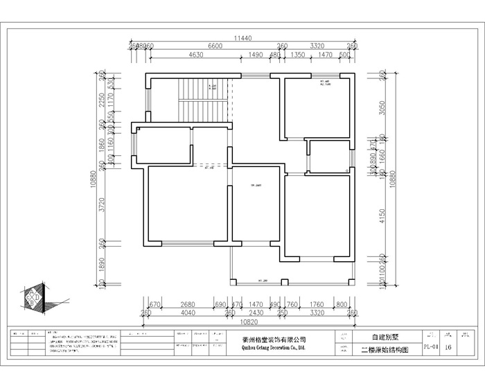
 楼主| 发表于 2021-11-1 11:37:32 | 显示全部楼层
本帖最后由 格堂小飞。 于 2021-11-23 09:16 编辑

二楼原始结构图。
2.jpg
回复 支持 反对

使用道具 举报

 楼主| 发表于 2021-11-1 11:37:58 | 显示全部楼层
本帖最后由 格堂小飞。 于 2021-11-23 09:16 编辑

三楼原始结构图。
3.jpg
回复 支持 反对

使用道具 举报

 楼主| 发表于 2021-11-1 13:33:00 | 显示全部楼层
本帖最后由 格堂小飞。 于 2021-11-23 09:14 编辑

一楼平面布置图。
11.jpg
回复 支持 反对

使用道具 举报

 楼主| 发表于 2021-11-1 13:33:20 | 显示全部楼层
本帖最后由 格堂小飞。 于 2021-11-23 09:13 编辑

二楼平面布置图。
22.jpg
回复 支持 反对

使用道具 举报

 楼主| 发表于 2021-11-1 13:35:02 | 显示全部楼层
本帖最后由 格堂小飞。 于 2021-11-23 09:13 编辑

三楼平面布置图。
33.jpg
回复 支持 反对

使用道具 举报

 楼主| 发表于 2021-11-1 13:46:32 | 显示全部楼层
本帖最后由 格堂小飞。 于 2021-11-20 09:15 编辑

门槛保护到位,防止施工中磕碰。
IMG_20211109_135604.jpg

IMG_20211109_135619.jpg

0c9623bab2b8fb2226476cae8dfbeca.jpg
回复 支持 反对

使用道具 举报

 楼主| 发表于 2021-11-1 13:48:47 | 显示全部楼层
临时马桶:每一个施工现场都会配备临时小便斗,并且时刻保持干净卫生、保证工地环境干净、整洁。
IMG_20211030_094839.jpg
回复 支持 反对

使用道具 举报

您需要登录后才可以回帖 登录 | 立即注册

本版积分规则

全国统一客服电话
0570-8028505

24x7小时免费咨询

  • 官方在线客服

    QQ客服:小西

    点击交谈

    QQ客服:良子

    点击交谈

    QQ客服:闵月

    点击交谈
  • 衢州市柯城区财富中心3号楼2楼

  • 衢州格堂装饰有限公司

  • 扫一扫关注官方微信

    获取一手特惠信息

快速回复 返回顶部 返回列表