• 手机版

    扫码体验手机版

  • 微信公众号

    扫码关注公众号

登录注册
游客您好
第三方账号登陆

[龙游] 西山排34号360㎡——经典中

[复制链接]
发表于 2021-10-31 14:00:10 | 显示全部楼层 |阅读模式
经典中式

格堂装饰为您全程记录装修全过程!

小区名称
西山排34号
房屋面积
360㎡
户型结构
别墅
装修风格
中式
装修方式
半包
装修造价
查看请联系客服万元
设计师
徐工
项目经理
杨工
装修公司
格堂装饰
完工实景
完工实景
水电全景
水电全景
VR全景
VR全景
设计说明
此案例以中式风格为主,结合顾客自身的需求与习惯。为了给业主创造一个简约,有内涵舒适的环境。设计中采用优雅的颜色,使整个空间庄重不失优雅
更多信息
本帖最后由 格堂小静 于 2022-2-18 13:37 编辑

效果图
IMG_1089(20211031-133245).JPG

IMG_1090(20211031-133248).JPG
原始结构图
IMG_1083.JPG

IMG_1084(20211031-133230).JPG

IMG_1085(20211031-133233).JPG
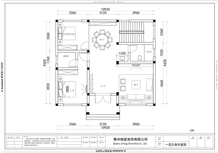
平面布置图
IMG_1086(20211031-133236).JPG

IMG_1088(20211031-133242).JPG

IMG_1087(20211031-133239).JPG

开工
水电自理
黄墙墙固
防水施工
木工材料
木工阶段施

泥工进场
木工中途
贴砖阶段
油漆材料
油漆施工

油漆中途
木门安装
灯具开关
卫浴完工

回复

使用道具 举报

 楼主| 发表于 2021-10-31 14:01:45 | 显示全部楼层
开工布置
IMG_0117.JPG

IMG_0118.JPG
回复 支持 反对

使用道具 举报

 楼主| 发表于 2021-10-31 14:02:49 | 显示全部楼层
本帖最后由 格堂小静 于 2021-10-31 14:04 编辑



IMG_0135.JPG

IMG_0139(1).JPG
回复 支持 反对

使用道具 举报

 楼主| 发表于 2021-10-31 14:05:12 | 显示全部楼层
仪式很短暂,家居装修却很长……与漫漫人生历程相比,这些短短一瞬,却包含了满满的心意。我们竭力用自己的专业技能,让每位业主拥有最接近梦想的家!恭祝开工大吉
IMG_0156(20211024-090643).JPG
回复 支持 反对

使用道具 举报

 楼主| 发表于 2021-10-31 14:05:57 | 显示全部楼层

装修开工第一锤应该敲在要拆除的墙体的墙角(即拐角)上,象征一锤定音的意思,也是新房动土的一种表示方式。
IMG_0157(20211024-090758).JPG
回复 支持 反对

使用道具 举报

 楼主| 发表于 2021-10-31 14:07:34 | 显示全部楼层
本帖最后由 格堂小静 于 2021-10-31 14:12 编辑

拆改自理
IMG_0162(20211024-103022).JPG

IMG_0159(20211024-103014).JPG

IMG_0160(20211024-103017).JPG







IMG_0158(20211024-103012).JPG
回复 支持 反对

使用道具 举报

 楼主| 发表于 2021-10-31 14:09:34 | 显示全部楼层


IMG_0163(20211024-103024).JPG

IMG_0164(20211024-103026).JPG

IMG_0166(20211024-103033).JPG

IMG_0167(20211024-103036).JPG

IMG_0165(20211024-103030).JPG


回复 支持 反对

使用道具 举报

 楼主| 发表于 2021-10-31 14:11:25 | 显示全部楼层

水电自理
IMG_0168(20211024-103040).JPG

IMG_0170(20211024-103048).JPG


IMG_0171(20211024-103051).JPG

IMG_0172(20211024-103054).JPG

IMG_0169(20211024-103043).JPG
回复 支持 反对

使用道具 举报

 楼主| 发表于 2021-10-31 14:11:48 | 显示全部楼层


IMG_0174(20211025-005148).JPG
回复 支持 反对

使用道具 举报

 楼主| 发表于 2021-10-31 14:13:38 | 显示全部楼层


IMG_0119.JPG

IMG_0122.JPG

IMG_0130.JPG
回复 支持 反对

使用道具 举报

您需要登录后才可以回帖 登录 | 立即注册

本版积分规则

全国统一客服电话
0570-8028505

24x7小时免费咨询

  • 官方在线客服

    QQ客服:小西

    点击交谈

    QQ客服:良子

    点击交谈

    QQ客服:闵月

    点击交谈
  • 衢州市柯城区财富中心3号楼2楼

  • 衢州格堂装饰有限公司

  • 扫一扫关注官方微信

    获取一手特惠信息

快速回复 返回顶部 返回列表