• 手机版

    扫码体验手机版

  • 微信公众号

    扫码关注公众号

登录注册
游客您好
第三方账号登陆

常山漫悦湾5-2-3#160㎡现代——魔方

[复制链接]
发表于 2021-10-26 09:16:54 | 显示全部楼层 |阅读模式
常山漫悦湾5-2-3#160㎡现代——魔方

格堂装饰实景完工案例欣赏!

小区名称
常山漫悦湾
房屋面积
160㎡
户型结构
复式
装修风格
现代
装修方式
半包
装修造价
查看请联系客服万元
设计师
郑工
项目经理
施工
装修公司
格堂装饰
装修过程
装修日记
设计说明
.........
更多信息
7E1A9591.jpg


回复

使用道具 举报

 楼主| 发表于 2021-10-26 09:23:17 | 显示全部楼层
本帖最后由 格堂方俊 于 2021-11-16 11:39 编辑


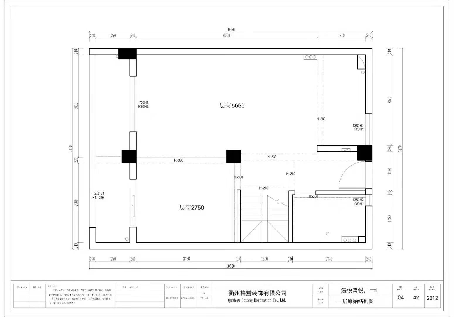
原始构图▼▼▼

113406i24p2ap2nz4f4122.jpg

113406wgngej8p45l1nfk1.jpg

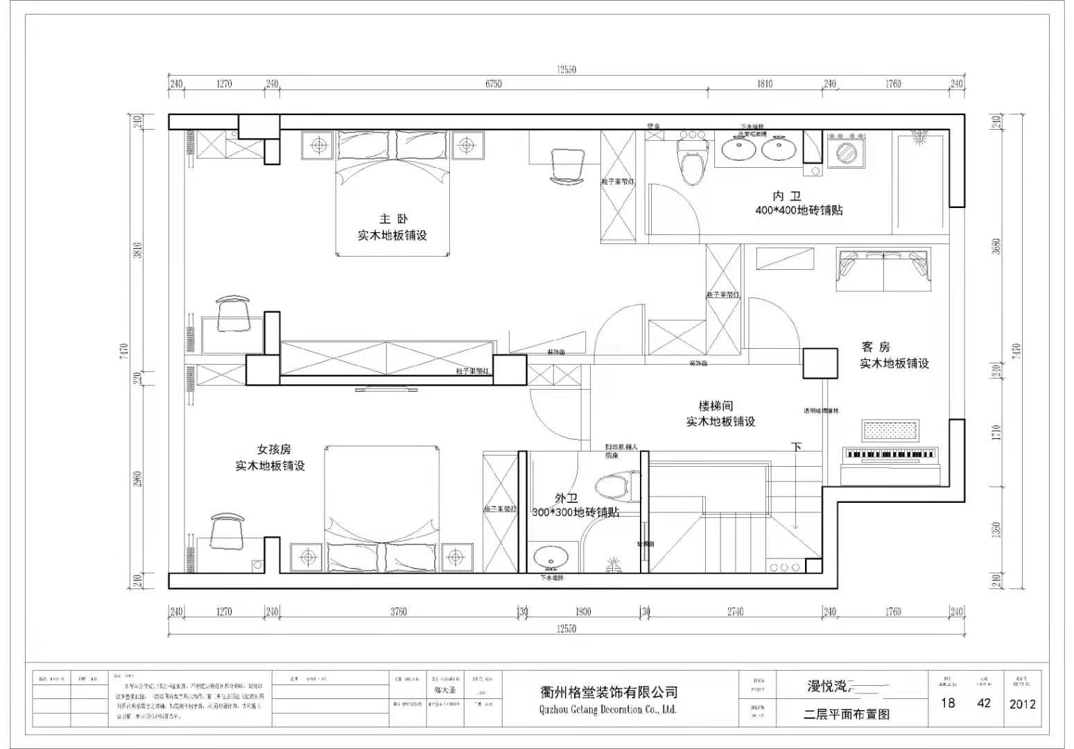
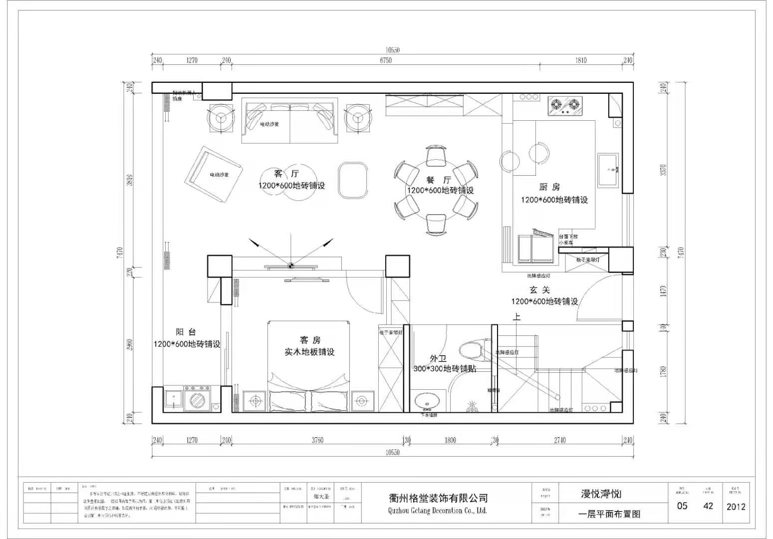
平面布置图▼▼▼

113442boae2zv2azdlolup.jpg

113442zwiyw5rz5h3wwhdw.jpg

客厅▼▼▼
7E1A9588.jpg

7E1A9589.jpg

7E1A9590.jpg

7E1A9591.jpg

7E1A9592.jpg

7E1A9598.jpg

餐厅▼▼▼

7E1A9599.jpg

7E1A9600.jpg

7E1A9603.jpg

7E1A9604.jpg

7E1A9601.jpg

厨房▼▼▼
7E1A9611.jpg

7E1A9610.jpg

7E1A9609.jpg

玄关▼▼▼
7E1A9606.jpg

7E1A9607.jpg

7E1A9608.jpg

楼梯间▼▼▼

7E1A9645.jpg

7E1A9643.jpg

主卧▼▼▼
7E1A9619.jpg

7E1A9620.jpg

7E1A9621.jpg

7E1A9622.jpg

7E1A9623.jpg


次卧▼▼▼
7E1A9615.jpg

7E1A9616.jpg

主卫▼▼▼
7E1A9624.jpg

7E1A9626.jpg

7E1A9625.jpg

次卫▼▼▼
7E1A9618.jpg

外卫▼▼▼
7E1A9629.jpg

次卧▼▼▼
7E1A9631.jpg

阳台▼▼▼
7E1A9632.jpg

小景▼▼▼
7E1A9634.jpg

7E1A9639.jpg






回复 支持 反对

使用道具 举报

您需要登录后才可以回帖 登录 | 立即注册

本版积分规则

全国统一客服电话
0570-8028505

24x7小时免费咨询

  • 官方在线客服

    QQ客服:小西

    点击交谈

    QQ客服:良子

    点击交谈

    QQ客服:闵月

    点击交谈
  • 衢州市柯城区财富中心3号楼2楼

  • 衢州格堂装饰有限公司

  • 扫一扫关注官方微信

    获取一手特惠信息

快速回复 返回顶部 返回列表