• 手机版

    扫码体验手机版

  • 微信公众号

    扫码关注公众号

登录注册
游客您好
第三方账号登陆

观棠府35-1-9#111㎡现代 —温馨港湾

[复制链接]
发表于 2021-9-28 11:25:09 | 显示全部楼层 |阅读模式
观棠府35-1-9#111㎡现代 —温馨港湾

格堂装饰实景完工案例欣赏!

小区名称
观棠府
房屋面积
111㎡
户型结构
套房
装修风格
现代
装修方式
半包
装修造价
查看请联系客服万元
设计师
吴工
项目经理
余工
装修公司
格堂装饰
装修过程
装修日记
设计说明
设计说明:男主外,女主内,帅气的哥哥,可爱的妹妹,非常有爱的一家四口,跟女主人碰面沟通的机会较多,一家人都贴别的和善,好说话,令人非常羡慕,通过沟通,家里的储物量非常的多,实用间美观的完美结合,期待最后成品。
更多信息
7E1A8866.jpg


回复

使用道具 举报

 楼主| 发表于 2021-9-28 11:28:05 | 显示全部楼层
本帖最后由 格堂方俊 于 2021-9-28 11:30 编辑


原始构图▼▼▼
155514xb09stvvd2t0c0tx.jpg

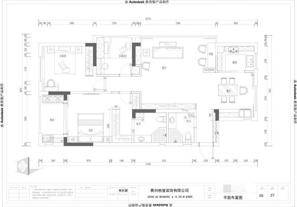
平面布置图
155526vlm6wcqgs9lgo9uz.jpg

客厅▼▼▼
7E1A8866.jpg

7E1A8868.jpg

7E1A8867.jpg

7E1A8869.jpg

7E1A8871.jpg


餐厅▼▼▼
7E1A8876.jpg

7E1A8877.jpg

7E1A8874.jpg

厨房▼▼▼
7E1A8881.jpg


7E1A8884.jpg

7E1A8880.jpg

玄关▼▼▼
7E1A8889.jpg

7E1A8890.jpg

主卧▼▼▼
7E1A8938.jpg

7E1A8935.jpg

7E1A8942.jpg

小孩房▼▼▼
7E1A8992.jpg

7E1A8995.jpg

7E1A8993.jpg

次卧▼▼▼
7E1A8991.jpg

7E1A8990.jpg

7E1A8989.jpg

衣帽间▼▼▼

7E1A8986.jpg

主卫▼▼▼
7E1A8987.jpg

7E1A8988.jpg

次卫▼▼▼

7E1A8996.jpg

小景▼▼▼
7E1A8899.jpg

7E1A8895.jpg

7E1A8919.jpg

7E1A8905.jpg

7E1A8924.jpg

7E1A8984.jpg

7E1A8973.jpg

7E1A8974.jpg





回复 支持 反对

使用道具 举报

您需要登录后才可以回帖 登录 | 立即注册

本版积分规则

全国统一客服电话
0570-8028505

24x7小时免费咨询

  • 官方在线客服

    QQ客服:小西

    点击交谈

    QQ客服:良子

    点击交谈

    QQ客服:闵月

    点击交谈
  • 衢州市柯城区财富中心3号楼2楼

  • 衢州格堂装饰有限公司

  • 扫一扫关注官方微信

    获取一手特惠信息

快速回复 返回顶部 返回列表