• 手机版

    扫码体验手机版

  • 微信公众号

    扫码关注公众号

登录注册
游客您好
第三方账号登陆

[开化] 国金悦江府6#93㎡现代--暖韵

[复制链接]
发表于 2021-9-3 10:53:00 | 显示全部楼层 |阅读模式
国金悦江府6#93㎡现代--暖韵

格堂装饰为您全程记录装修全过程!

小区名称
国金悦江府
房屋面积
93㎡
户型结构
三房两厅一厨
装修风格
现代
装修方式
半包
装修造价
查看请联系客服万元
设计师
邱工
项目经理
毛工
装修公司
格堂装饰
完工实景
完工实景
水电全景
水电全景
VR全景
VR全景
设计说明
化繁从简,以简单的方式呈现复杂的关系。无即是有,庞大的信息通过梳理以简单的方式呈现出来。
更多信息
回复

使用道具 举报

 楼主| 发表于 2021-9-3 11:06:17 | 显示全部楼层

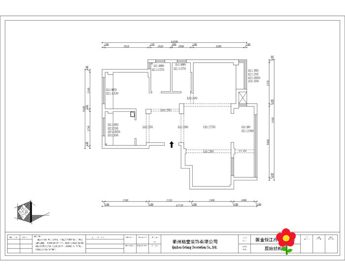
原始结构图
微信图片_202109031049261_副本.jpg
回复 支持 反对

使用道具 举报

 楼主| 发表于 2021-9-3 11:06:31 | 显示全部楼层

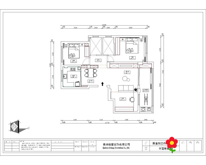
平面布置图
微信图片_20210903104926_副本.jpg
回复 支持 反对

使用道具 举报

 楼主| 发表于 2021-9-17 11:25:43 | 显示全部楼层
开工前准备
IMG_2006.JPG

IMG_2005.JPG
回复 支持 反对

使用道具 举报

 楼主| 发表于 2021-9-17 11:26:37 | 显示全部楼层

电梯口保护
IMG_2120.JPG

IMG_2121.JPG

IMG_2122.JPG

IMG_2123.JPG

IMG_2124.JPG
回复 支持 反对

使用道具 举报

 楼主| 发表于 2021-9-17 11:27:28 | 显示全部楼层

电梯口对角保护
IMG_2125.JPG

IMG_2126.JPG

IMG_2127.JPG

IMG_2128.JPG

IMG_2129.JPG
回复 支持 反对

使用道具 举报

 楼主| 发表于 2021-9-17 11:28:27 | 显示全部楼层

吉时到,我们开工咯
IMG_2272.JPG
回复 支持 反对

使用道具 举报

 楼主| 发表于 2021-9-17 11:29:03 | 显示全部楼层

装修开工第一锤应该敲在要拆除的墙体的墙角(即拐角)上,象征一锤定音的意思,也是新房动土的一种表示方式。
IMG_2273.JPG
回复 支持 反对

使用道具 举报

 楼主| 发表于 2021-9-17 13:57:17 | 显示全部楼层

次卧原始结构
IMG_2007.JPG

IMG_2008.JPG

IMG_2009.JPG

IMG_2010.JPG

IMG_2011.JPG
回复 支持 反对

使用道具 举报

 楼主| 发表于 2021-9-17 13:58:14 | 显示全部楼层

次卧对角原始结构
IMG_2012.JPG

IMG_2013.JPG

IMG_2014.JPG

IMG_2015.JPG

IMG_2016.JPG
回复 支持 反对

使用道具 举报

您需要登录后才可以回帖 登录 | 立即注册

本版积分规则

全国统一客服电话
0570-8028505

24x7小时免费咨询

  • 官方在线客服

    QQ客服:小西

    点击交谈

    QQ客服:良子

    点击交谈

    QQ客服:闵月

    点击交谈
  • 衢州市柯城区财富中心3号楼2楼

  • 衢州格堂装饰有限公司

  • 扫一扫关注官方微信

    获取一手特惠信息

快速回复 返回顶部 返回列表