• 手机版

    扫码体验手机版

  • 微信公众号

    扫码关注公众号

登录注册
游客您好
第三方账号登陆

[开化] 国金悦江府8#90㎡现代轻奢----·让梦心安

[复制链接]
发表于 2021-8-25 15:31:27 | 显示全部楼层 |阅读模式
国金悦江府8#90㎡现代轻奢----·让梦心安

格堂装饰为您全程记录装修全过程!

小区名称
国金悦江府
房屋面积
90㎡
户型结构
3房2厅1厨1阳台
装修风格
现代轻奢
装修方式
全包
装修造价
查看请联系客服万元
设计师
蒋工
项目经理
姜工
装修公司
格堂装饰
完工实景
完工实景
水电全景
水电全景
VR全景
VR全景
设计说明
现代风格家居设计彰显个性,具有浓郁现代感,现代风格家居设计的特色是,其设计的元素、材料都很单一,这种设计风格已经成为越来越多时尚潮人装修的首选,现代风格家居设计从整体到局部、从空间到室内陈设塑造,精雕细琢,给人一丝不苟的印象。
更多信息
回复

使用道具 举报

 楼主| 发表于 2021-8-25 15:32:26 | 显示全部楼层
本帖最后由 格堂小韩 于 2021-8-28 10:52 编辑

原始结构图
微信图片_20210828104718_副本.jpg
回复 支持 反对

使用道具 举报

 楼主| 发表于 2021-8-25 15:32:40 | 显示全部楼层
本帖最后由 格堂小韩 于 2021-8-28 10:52 编辑

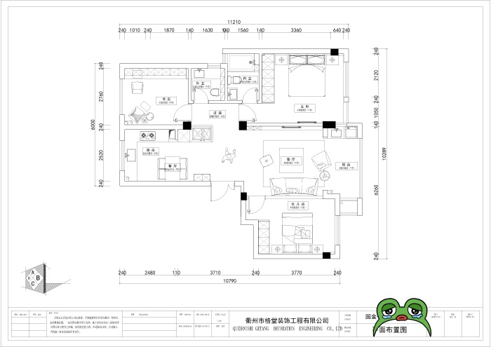
平面布置图
微信图片_20210828104735_副本.jpg
回复 支持 反对

使用道具 举报

 楼主| 发表于 2021-8-25 15:33:40 | 显示全部楼层

电梯及大门保护
IMG_9978.JPG

IMG_9979.JPG
回复 支持 反对

使用道具 举报

 楼主| 发表于 2021-8-25 15:34:16 | 显示全部楼层

开工前准备
IMG_9977.JPG

IMG_9955.JPG

IMG_9956.JPG
回复 支持 反对

使用道具 举报

 楼主| 发表于 2021-8-25 15:34:37 | 显示全部楼层

吉时到,我们开工了
IMG_9998.JPG
回复 支持 反对

使用道具 举报

 楼主| 发表于 2021-8-25 15:35:17 | 显示全部楼层

装修开工第一锤应该敲在要拆除的墙体的墙角(即拐角)上,象征一锤定音的意思,也是新房动土的一种表示方式。
IMG_9999.JPG
回复 支持 反对

使用道具 举报

 楼主| 发表于 2021-8-25 15:35:46 | 显示全部楼层

拆墙放样
IMG_0001.JPG

IMG_0002.JPG

IMG_0003.JPG

IMG_0004.JPG

IMG_0005.JPG
回复 支持 反对

使用道具 举报

 楼主| 发表于 2021-8-25 15:36:57 | 显示全部楼层

拆墙放样
IMG_0006.JPG

IMG_0007.JPG

IMG_0008.JPG

IMG_0009.JPG

IMG_0010.JPG
回复 支持 反对

使用道具 举报

 楼主| 发表于 2021-8-25 15:37:16 | 显示全部楼层

拆墙放样
IMG_0012.JPG

IMG_0011.JPG

IMG_0013.JPG
回复 支持 反对

使用道具 举报

您需要登录后才可以回帖 登录 | 立即注册

本版积分规则

全国统一客服电话
0570-8028505

24x7小时免费咨询

  • 官方在线客服

    QQ客服:小西

    点击交谈

    QQ客服:良子

    点击交谈

    QQ客服:闵月

    点击交谈
  • 衢州市柯城区财富中心3号楼2楼

  • 衢州格堂装饰有限公司

  • 扫一扫关注官方微信

    获取一手特惠信息

快速回复 返回顶部 返回列表