• 手机版

    扫码体验手机版

  • 微信公众号

    扫码关注公众号

登录注册
游客您好
第三方账号登陆

[常山] 常山百悦城12-1-14#132㎡日式——以水润木,恣意生活

[复制链接]
发表于 2021-8-21 16:49:00 | 显示全部楼层 |阅读模式
常山百悦城12-1-14#136㎡日式——以水润木,恣意生活

格堂装饰为您全程记录装修全过程!

小区名称
百悦城
房屋面积
132㎡
户型结构
套房
装修风格
日式
装修方式
半包
装修造价
查看请联系客服万元
设计师
江工
项目经理
施工
装修公司
格堂装饰
完工实景
完工实景
水电全景
水电全景
VR全景
VR全景
设计说明
浮躁与喧嚣所裹挟的城市过去与未来,
变化与融合以设计艺术隔绝尘世纷扰,
营造触发内心深处柔软温和感受的体验空间。
整体区域褪去浮华的装饰,以原木色为基调,
温润的木质,营造出治愈而优雅的灵魂居所。
更多信息
回复

使用道具 举报

 楼主| 发表于 2021-8-21 16:49:16 | 显示全部楼层
本帖最后由 格堂小丽 于 2021-8-24 11:29 编辑

原始结构图
b1f4afe8e7df502840264ce31f817a9.jpg
回复 支持 反对

使用道具 举报

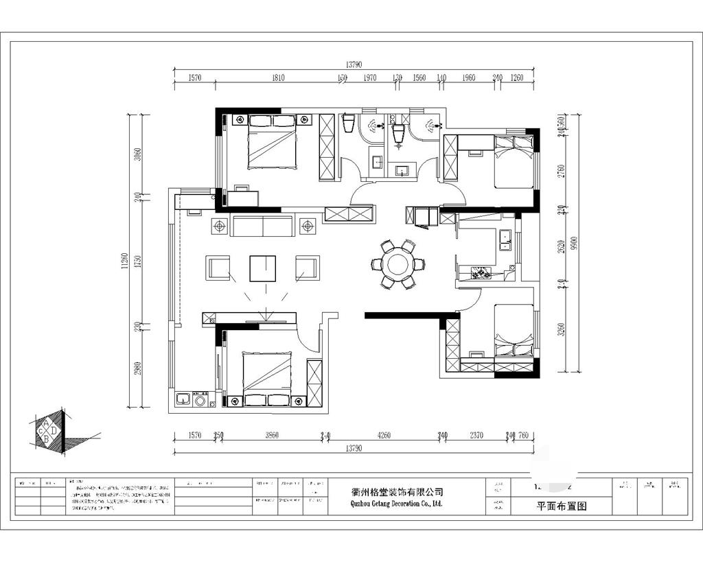
 楼主| 发表于 2021-8-21 16:49:29 | 显示全部楼层
本帖最后由 格堂小丽 于 2021-8-24 11:30 编辑

平面布置图 f0e9d7030ba19e1b818165e04508e71.jpg

回复 支持 反对

使用道具 举报

 楼主| 发表于 2021-8-21 16:50:09 | 显示全部楼层
本帖最后由 格堂小丽 于 2021-9-13 14:25 编辑

良辰吉日,开工咯!开工仪式准备好。
d904be3352fd2fcad876f3f625378d5.jpg
回复 支持 反对

使用道具 举报

 楼主| 发表于 2021-8-21 16:50:35 | 显示全部楼层
本帖最后由 格堂小丽 于 2021-9-13 14:26 编辑

鲜花礼炮也要一起准备好
e1bcb14e541a135619978483886560a.jpg

37370fab00c14ad591a51a8fcdda650.jpg


回复 支持 反对

使用道具 举报

 楼主| 发表于 2021-8-21 16:51:03 | 显示全部楼层
本帖最后由 格堂小丽 于 2021-8-24 11:31 编辑

大门保护,防止后期磕碰到
eec5430bbede8440a3f05730c197f7c.jpg
回复 支持 反对

使用道具 举报

 楼主| 发表于 2021-8-21 16:51:31 | 显示全部楼层
本帖最后由 格堂小丽 于 2021-8-24 11:31 编辑

门槛也要保护好
00ff77102565c1ac08f59b74ac59016.jpg
回复 支持 反对

使用道具 举报

 楼主| 发表于 2021-8-21 16:53:43 | 显示全部楼层
本帖最后由 格堂小丽 于 2021-8-24 11:32 编辑

卫生间简易马桶安装到位,防止后期施工中沙石堵塞进入,既美观又干净!
154739zjdv8g041odjh5cu.jpg
回复 支持 反对

使用道具 举报

 楼主| 发表于 2021-8-21 16:54:08 | 显示全部楼层
本帖最后由 格堂小丽 于 2021-8-24 11:32 编辑

排水管道用格堂专用保护盖保护,防止后期施工中砂石 堵塞管道
154809ztusj0gmmem2m070.jpg

154809lalvvqyvvwsooksq.jpg

154809ouuy9y48py4lkb8r.jpg


回复 支持 反对

使用道具 举报

 楼主| 发表于 2021-8-21 16:55:25 | 显示全部楼层
本帖最后由 格堂小丽 于 2021-9-13 14:27 编辑

电梯口过道,地面瓷砖做好保护,防止后期施工中磕碰到。
5625c3d996b635cd62540b501f5ae87.jpg

bd87348d0e12c90b9146bd563e3e50e.jpg

436ea5549d707c6713bf205bcb64621.jpg

aef3704e6726aaf2401e1291729c7b3.jpg

c9d56d6f75bc8aa891c143f27d77083.jpg


回复 支持 反对

使用道具 举报

您需要登录后才可以回帖 登录 | 立即注册

本版积分规则

全国统一客服电话
0570-8028505

24x7小时免费咨询

  • 官方在线客服

    QQ客服:小西

    点击交谈

    QQ客服:良子

    点击交谈

    QQ客服:闵月

    点击交谈
  • 衢州市柯城区财富中心3号楼2楼

  • 衢州格堂装饰有限公司

  • 扫一扫关注官方微信

    获取一手特惠信息

快速回复 返回顶部 返回列表