• 手机版

    扫码体验手机版

  • 微信公众号

    扫码关注公众号

登录注册
游客您好
第三方账号登陆

[开化] 国金悦江府5#115㎡现代简约----越界

[复制链接]
发表于 2021-8-17 15:21:47 | 显示全部楼层 |阅读模式
国金悦江府5#115㎡现代简约----越界

格堂装饰为您全程记录装修全过程!

小区名称
国金悦江府
房屋面积
115㎡
户型结构
4房2厅2卫1厨1阳台
装修风格
现代
装修方式
半包
装修造价
查看请联系客服万元
设计师
余工
项目经理
姜工
装修公司
格堂装饰
完工实景
完工实景
水电全景
水电全景
VR全景
VR全景
设计说明
好用是基础,好看是结果

顷刻,一万公顷的森林(Instanly,10000 hectares of forest)
更多信息
回复

使用道具 举报

 楼主| 发表于 2021-8-18 10:06:23 | 显示全部楼层

原始结构图
原始结构图_副本.jpg
回复 支持 反对

使用道具 举报

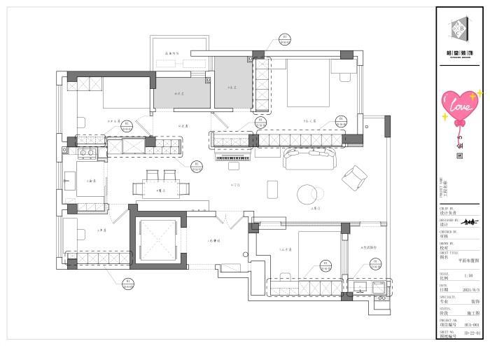
 楼主| 发表于 2021-8-18 10:06:37 | 显示全部楼层

平面布置图
平面布置图_副本.jpg
回复 支持 反对

使用道具 举报

 楼主| 发表于 2021-8-18 10:09:40 | 显示全部楼层

大门,地面,卫生间保护
IMG_9575.JPG

IMG_9501.JPG

IMG_9500.JPG

IMG_9574.JPG
回复 支持 反对

使用道具 举报

 楼主| 发表于 2021-8-18 10:10:17 | 显示全部楼层

四大工种的施工规范牌,同样展示到位,方便检查和验收。进度控制表,使工地进度按预定的目标进行,确保按期完工。
IMG_9499.JPG
回复 支持 反对

使用道具 举报

 楼主| 发表于 2021-8-18 10:10:55 | 显示全部楼层

吉时到,开工大吉
IMG_9572.JPG
回复 支持 反对

使用道具 举报

 楼主| 发表于 2021-8-18 10:11:19 | 显示全部楼层

装修开工第一锤应该敲在要拆除的墙体的墙角(即拐角)上,象征一锤定音的意思,也是新房动土的一种表示方式。
IMG_9573.JPG
回复 支持 反对

使用道具 举报

 楼主| 发表于 2021-8-18 10:12:50 | 显示全部楼层

女儿房原始结构
IMG_9502.JPG

IMG_9503.JPG

IMG_9504.JPG

IMG_9505.JPG

IMG_9506.JPG
回复 支持 反对

使用道具 举报

 楼主| 发表于 2021-8-18 10:13:21 | 显示全部楼层

女儿房对角原始结构
IMG_9507.JPG

IMG_9509.JPG

IMG_9510.JPG

IMG_9511.JPG
回复 支持 反对

使用道具 举报

 楼主| 发表于 2021-8-18 10:14:31 | 显示全部楼层

书房原始结构
IMG_9512.JPG

IMG_9513.JPG

IMG_9514.JPG

IMG_9515.JPG

IMG_9516.JPG
回复 支持 反对

使用道具 举报

您需要登录后才可以回帖 登录 | 立即注册

本版积分规则

全国统一客服电话
0570-8028505

24x7小时免费咨询

  • 官方在线客服

    QQ客服:小西

    点击交谈

    QQ客服:良子

    点击交谈

    QQ客服:闵月

    点击交谈
  • 衢州市柯城区财富中心3号楼2楼

  • 衢州格堂装饰有限公司

  • 扫一扫关注官方微信

    获取一手特惠信息

快速回复 返回顶部 返回列表