• 手机版

    扫码体验手机版

  • 微信公众号

    扫码关注公众号

登录注册
游客您好
第三方账号登陆

[开化] 国金悦江府4#106㎡现代简约----静候

[复制链接]
发表于 2021-8-17 14:43:41 | 显示全部楼层 |阅读模式
国金悦江府4#106㎡现代简约----静候

格堂装饰为您全程记录装修全过程!

小区名称
国金悦江府
房屋面积
106㎡
户型结构
3房2厅1厨2卫1阳台
装修风格
现代
装修方式
全包
装修造价
查看请联系客服万元
设计师
余工
项目经理
姜工
装修公司
格堂装饰
完工实景
完工实景
水电全景
水电全景
VR全景
VR全景
设计说明
做一个安静的人,静候生活的到来(Do a quiet person,quietly waiting for the arrival of the years)
更多信息
回复

使用道具 举报

 楼主| 发表于 2021-8-18 10:32:23 | 显示全部楼层

原始结构图
原始结构图_副本.jpg
回复 支持 反对

使用道具 举报

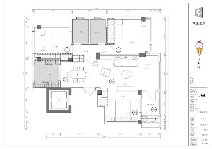
 楼主| 发表于 2021-8-18 10:32:40 | 显示全部楼层

平面布置图
平面布置图_副本.jpg
回复 支持 反对

使用道具 举报

 楼主| 发表于 2021-8-18 10:33:36 | 显示全部楼层

厨房,卫生间,门槛石,地面保护
微信图片_20210806145023.jpg

微信图片_202108061450231.jpg

微信图片_202108061450232.jpg

微信图片_202108061450233.jpg
回复 支持 反对

使用道具 举报

 楼主| 发表于 2021-8-18 10:34:26 | 显示全部楼层

鲜花,王老吉准备到位
IMG_9381.JPG

IMG_9428.JPG

IMG_9429.JPG
回复 支持 反对

使用道具 举报

 楼主| 发表于 2021-8-18 10:35:21 | 显示全部楼层

四大工种的施工规范牌,同样展示到位,方便检查和验收。进度控制表,使工地进度按预定的目标进行,确保按期完工。
IMG_9415.JPG

IMG_9416.JPG

IMG_9430.JPG
回复 支持 反对

使用道具 举报

 楼主| 发表于 2021-8-18 10:35:49 | 显示全部楼层

吉时到,开工大吉!!!
IMG_9481.JPG
回复 支持 反对

使用道具 举报

 楼主| 发表于 2021-8-18 10:36:38 | 显示全部楼层

装修开工第一锤应该敲在要拆除的墙体的墙角(即拐角)上,象征一锤定音的意思,也是新房动土的一种表示方式
IMG_9480.JPG
回复 支持 反对

使用道具 举报

 楼主| 发表于 2021-8-18 10:39:03 | 显示全部楼层

主卧原始结构
IMG_9383.JPG

IMG_9384.JPG

IMG_9385.JPG

IMG_9387.JPG

IMG_9388.JPG
回复 支持 反对

使用道具 举报

 楼主| 发表于 2021-8-18 10:40:11 | 显示全部楼层

主卧对角原始结构
IMG_9389.JPG

IMG_9390.JPG

IMG_9391.JPG

IMG_9392.JPG

IMG_9393.JPG
回复 支持 反对

使用道具 举报

您需要登录后才可以回帖 登录 | 立即注册

本版积分规则

全国统一客服电话
0570-8028505

24x7小时免费咨询

  • 官方在线客服

    QQ客服:小西

    点击交谈

    QQ客服:良子

    点击交谈

    QQ客服:闵月

    点击交谈
  • 衢州市柯城区财富中心3号楼2楼

  • 衢州格堂装饰有限公司

  • 扫一扫关注官方微信

    获取一手特惠信息

快速回复 返回顶部 返回列表