• 手机版

    扫码体验手机版

  • 微信公众号

    扫码关注公众号

登录注册
游客您好
第三方账号登陆

[衢州] 壹号院45-#㎡自然风——格调生活

[复制链接]
发表于 2021-8-12 09:01:07 | 显示全部楼层 |阅读模式
格调生活

格堂装饰为您全程记录装修全过程!

小区名称
壹号院
房屋面积
349㎡
户型结构
别墅
装修风格
自然风
装修方式
半包
装修造价
查看请联系客服万元
设计师
万工
项目经理
周工
装修公司
格堂装饰
完工实景
完工实景
水电全景
水电全景
VR全景
VR全景
设计说明
面对着冰冷的钢筋混凝土建筑,快节奏的生活状态与自然结合越来越少,所以产生了渴望回归自然的心理迫切。自由清新,与环境融为一年的居室设计就像把家轻轻放在大自然中,所有的疲惫和倦怠都烟消云散。这样回归自然的心态形成了一种新的居住概念——自然主义。
更多信息
回复

使用道具 举报

 楼主| 发表于 2021-8-12 09:01:53 | 显示全部楼层

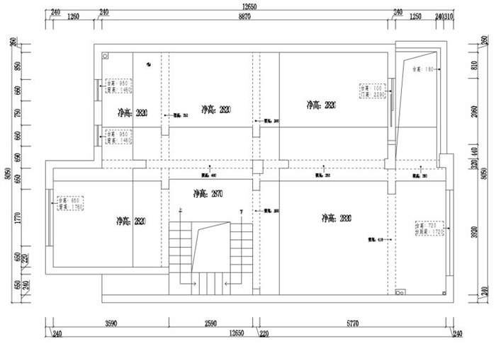
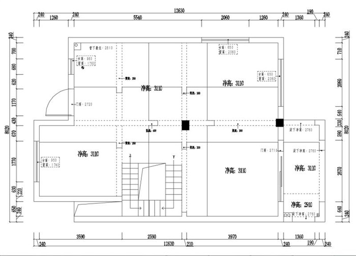
原始结构图
IMG_6026.JPG

IMG_6028.JPG

IMG_6030.JPG

IMG_6032.JPG
回复 支持 反对

使用道具 举报

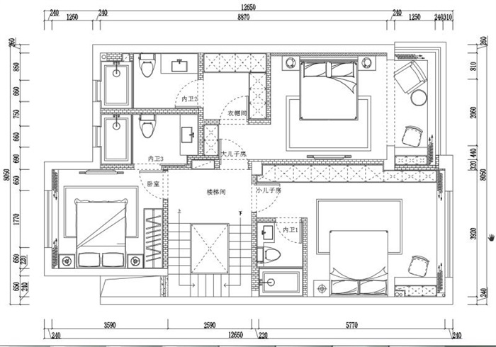
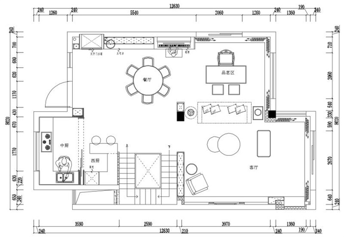
 楼主| 发表于 2021-8-12 09:02:19 | 显示全部楼层

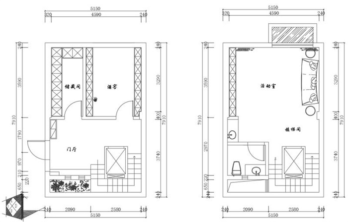
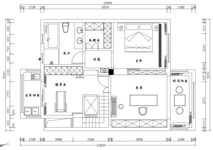
平面布置图
IMG_6027.JPG

IMG_6029.JPG

IMG_6031.JPG

IMG_6033.JPG
回复 支持 反对

使用道具 举报

 楼主| 发表于 2021-8-12 09:06:16 | 显示全部楼层

大门保护到位,防止磕碰哦!
IMG_4882.JPG

IMG_4883.JPG
回复 支持 反对

使用道具 举报

 楼主| 发表于 2021-8-12 09:07:02 | 显示全部楼层
临时马桶安装到位,方便师傅使用,要讲究卫生间哦!
IMG_4881.JPG
回复 支持 反对

使用道具 举报

 楼主| 发表于 2021-8-12 09:08:08 | 显示全部楼层
本帖最后由 格堂飞飞 于 2021-8-12 09:15 编辑

煤气表也要保护起来,防止磕碰哦!
IMG_4884.JPG
回复 支持 反对

使用道具 举报

 楼主| 发表于 2021-8-12 09:10:01 | 显示全部楼层
本帖最后由 格堂飞飞 于 2021-8-12 09:13 编辑

一切准备就绪,就等开工吉时啦!
IMG_4885.JPG

IMG_4886.JPG

IMG_4887.JPG
回复 支持 反对

使用道具 举报

 楼主| 发表于 2021-8-12 09:10:53 | 显示全部楼层

吉时已到,恭祝业主大人,开工大吉!
IMG_4938.JPG
回复 支持 反对

使用道具 举报

 楼主| 发表于 2021-8-12 09:12:35 | 显示全部楼层

开工第一锤,由业主大人,亲自来哦!
IMG_4934.JPG
装修开工第一锤应该敲在要拆除的墙体的墙角(即拐角),象征一锤定音的意思,也是新房动土的一种表示方式。

IMG_4936.JPG
回复 支持 反对

使用道具 举报

 楼主| 发表于 2021-8-12 09:16:41 | 显示全部楼层
一楼
IMG_0649.JPG

IMG_0652.JPG

IMG_0653.JPG

IMG_0650.JPG

IMG_0654.JPG
回复 支持 反对

使用道具 举报

您需要登录后才可以回帖 登录 | 立即注册

本版积分规则

全国统一客服电话
0570-8028505

24x7小时免费咨询

  • 官方在线客服

    QQ客服:小西

    点击交谈

    QQ客服:良子

    点击交谈

    QQ客服:闵月

    点击交谈
  • 衢州市柯城区财富中心3号楼2楼

  • 衢州格堂装饰有限公司

  • 扫一扫关注官方微信

    获取一手特惠信息

快速回复 返回顶部 返回列表