• 手机版

    扫码体验手机版

  • 微信公众号

    扫码关注公众号

登录注册
游客您好
第三方账号登陆

[衢州] 花园岗小区9-2-9#95㎡中式——归家.自在融和

[复制链接]
发表于 2021-6-30 16:19:51 | 显示全部楼层 |阅读模式
归家.自在融和

格堂装饰为您全程记录装修全过程!

小区名称
花园岗小区
房屋面积
95㎡
户型结构
套房
装修风格
中式
装修方式
半包
装修造价
查看请联系客服万元
设计师
王工
项目经理
余工
装修公司
格堂装饰
完工实景
完工实景
水电全景
水电全景
VR全景
VR全景
设计说明
中式的美,是超越了一切的物质而到达的一种精神境界的追求,它宁谧自然,清幽静美,像一股清泉般静静地流淌在空间里。清风入堂,辉光漫洒,斟上半盏清茗相邻而坐,宁静的不止是空间,更是心境。
更多信息
本帖最后由 格堂月红 于 2021-9-25 17:22 编辑

效果图
mmexport1624936471286.png

mmexport1624936467963.png
拆改
砌墙
水电放样
水电材料
开槽
水电完工图
水电细节
水电验收
线槽修补
防水
回复

使用道具 举报

 楼主| 发表于 2021-6-30 16:20:18 | 显示全部楼层

原始结构图
mmexport1624936482062.jpg
回复 支持 反对

使用道具 举报

 楼主| 发表于 2021-6-30 16:20:52 | 显示全部楼层

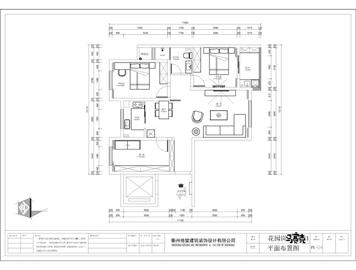
平面布置图
mmexport1624936477341.jpg
回复 支持 反对

使用道具 举报

 楼主| 发表于 2021-6-30 16:23:12 | 显示全部楼层

开工前,项目经理正在验房。
IMG_20210628_070625.jpg

IMG_20210628_071036.jpg

IMG_20210628_070635.jpg

IMG_20210628_071046.jpg

IMG_20210628_071138.jpg
回复 支持 反对

使用道具 举报

 楼主| 发表于 2021-6-30 16:23:52 | 显示全部楼层

煤气表已经保护到位
IMG_20210628_070550.jpg
回复 支持 反对

使用道具 举报

 楼主| 发表于 2021-6-30 16:26:01 | 显示全部楼层

下水管用格堂专用保护盖保护,防止砂石堵塞管道。
IMG_20210628_070553.jpg

IMG_20210628_070602.jpg
回复 支持 反对

使用道具 举报

 楼主| 发表于 2021-6-30 16:26:34 | 显示全部楼层
礼炮已经准备好了
IMG_20210628_070141.jpg
回复 支持 反对

使用道具 举报

 楼主| 发表于 2021-6-30 16:28:54 | 显示全部楼层

开工锤已经准备好了
IMG_20210628_070137.jpg
回复 支持 反对

使用道具 举报

 楼主| 发表于 2021-6-30 16:30:43 | 显示全部楼层

临时马桶:每一个施工现场都会配备临时小便斗,并且时刻保持干净卫生、保证工地环境干净、整洁。
IMG_20210628_070605.jpg
回复 支持 反对

使用道具 举报

 楼主| 发表于 2021-6-30 16:31:55 | 显示全部楼层

配电箱盖拆下来了,请业主带回去保管,后期还要拿回来安装的哦
IMG_20210628_071622.jpg

IMG_20210628_071629.jpg
回复 支持 反对

使用道具 举报

您需要登录后才可以回帖 登录 | 立即注册

本版积分规则

全国统一客服电话
0570-8028505

24x7小时免费咨询

  • 官方在线客服

    QQ客服:小西

    点击交谈

    QQ客服:良子

    点击交谈

    QQ客服:闵月

    点击交谈
  • 衢州市柯城区财富中心3号楼2楼

  • 衢州格堂装饰有限公司

  • 扫一扫关注官方微信

    获取一手特惠信息

快速回复 返回顶部 返回列表