• 手机版

    扫码体验手机版

  • 微信公众号

    扫码关注公众号

登录注册
游客您好
第三方账号登陆

[衢州] 国金旭辉城7-2-3#116㎡现代 ——向阳

[复制链接]
发表于 2021-6-30 15:07:44 | 显示全部楼层 |阅读模式
向阳

格堂装饰为您全程记录装修全过程!

小区名称
国金旭辉城
房屋面积
116㎡
户型结构
套房
装修风格
现代
装修方式
半包
装修造价
查看请联系客服万元
设计师
郑工
项目经理
周工
装修公司
格堂装饰
完工实景
完工实景
水电全景
水电全景
VR全景
VR全景
设计说明
每个人都在朝着自己的幸福目标而奋斗着,在拿到新房钥匙的那一刻,都会憧憬未来家的样子。每个人心中都有一个理想王国,却又很难清楚表达出来。每次设计师都说:业主心里有一张彩色的图片,但描述给我们的时候就成了一张黑白图片,设计师的能力就在于能将黑白图片还原出业主心中的那张彩色图片,如此便是设计。
更多信息
回复

使用道具 举报

 楼主| 发表于 2021-6-30 15:08:07 | 显示全部楼层

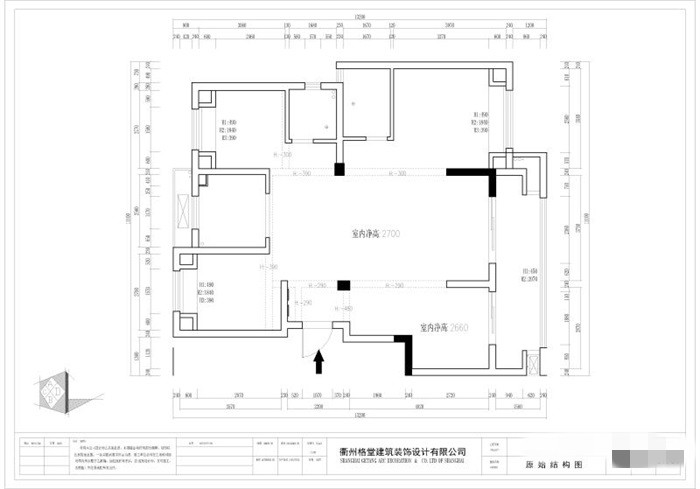
原始结构图
IMG_1564.JPG
回复 支持 反对

使用道具 举报

 楼主| 发表于 2021-6-30 15:08:24 | 显示全部楼层

平面布置图
IMG_1566.JPG
回复 支持 反对

使用道具 举报

 楼主| 发表于 2021-6-30 15:09:10 | 显示全部楼层

正在做开工前的准备工作。
IMG_1122.JPG

IMG_1123.JPG

IMG_1124.JPG

IMG_1125.JPG
回复 支持 反对

使用道具 举报

 楼主| 发表于 2021-6-30 15:10:20 | 显示全部楼层

项目经理正在安装,临时马桶,方便师傅使用,要讲究卫生哦!
IMG_1126.JPG

IMG_1127.JPG
回复 支持 反对

使用道具 举报

 楼主| 发表于 2021-6-30 15:11:52 | 显示全部楼层

水管用格堂专用保护盖保护,防止砂石堵塞管道。

IMG_1131.JPG

IMG_1129.JPG

IMG_1130.JPG

IMG_1132.JPG
回复 支持 反对

使用道具 举报

 楼主| 发表于 2021-6-30 15:12:43 | 显示全部楼层

师傅正在电梯间,墙面和地面保护,防止磕碰哦!
IMG_1128.JPG

IMG_1168.JPG
回复 支持 反对

使用道具 举报

 楼主| 发表于 2021-6-30 15:13:33 | 显示全部楼层

开工前大门也要。保护起来哦!
IMG_1136.JPG

IMG_1137.JPG

IMG_1157.JPG
回复 支持 反对

使用道具 举报

 楼主| 发表于 2021-6-30 15:14:31 | 显示全部楼层

门槛保护到位,防止磕碰哦!
IMG_1167.JPG
回复 支持 反对

使用道具 举报

 楼主| 发表于 2021-6-30 15:15:47 | 显示全部楼层

一切准备就绪,就等开工吉时啦!
IMG_1138.JPG

IMG_1139.JPG
回复 支持 反对

使用道具 举报

您需要登录后才可以回帖 登录 | 立即注册

本版积分规则

全国统一客服电话
0570-8028505

24x7小时免费咨询

  • 官方在线客服

    QQ客服:小西

    点击交谈

    QQ客服:良子

    点击交谈

    QQ客服:闵月

    点击交谈
  • 衢州市柯城区财富中心3号楼2楼

  • 衢州格堂装饰有限公司

  • 扫一扫关注官方微信

    获取一手特惠信息

快速回复 返回顶部 返回列表