• 手机版

    扫码体验手机版

  • 微信公众号

    扫码关注公众号

登录注册
游客您好
第三方账号登陆

[开化] 御景湾21#363㎡新中式--东方御

[复制链接]
发表于 2021-5-25 09:52:57 | 显示全部楼层 |阅读模式
御景湾21#363㎡新中式--东方御

格堂装饰为您全程记录装修全过程!

小区名称
御景湾
房屋面积
363㎡
户型结构
排屋
装修风格
新中式
装修方式
半包
装修造价
查看请联系客服万元
设计师
蒋工
项目经理
童工
装修公司
格堂装饰
完工实景
完工实景
水电全景
水电全景
VR全景
VR全景
设计说明
东方韵味和简约现代风格的融合,将金属、玻璃等这样的现代化元素与厚重、硬朗的实木相互融合,产生出的既有复合现代人居住需求的功能,又有国人对于东方国风的审美追求。完美的体现了主人既有传统国韵的文化内涵,又有不断接纳现代派新潮事物的审美观。
更多信息
回复

使用道具 举报

 楼主| 发表于 2021-5-25 09:54:33 | 显示全部楼层

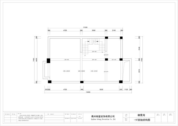
-1F原始结构图
-1F原始_看图王.jpg
1F原始结构图
1F原始_看图王.jpg
2F原始结构图
2F原始_看图王.jpg
3F原始结构图
3F原始_看图王.jpg
回复 支持 反对

使用道具 举报

 楼主| 发表于 2021-5-25 09:55:33 | 显示全部楼层

-1F平面布置图
-1F_看图王.jpg
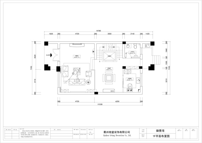
1F平面布置图
1F_看图王.jpg
2F平面布置图
2F_看图王.jpg
3F平面布置图
3F_看图王.jpg
回复 支持 反对

使用道具 举报

 楼主| 发表于 2021-7-15 10:44:21 | 显示全部楼层

吉时到,开工大吉
IMG_2503.JPG
回复 支持 反对

使用道具 举报

 楼主| 发表于 2021-7-15 10:45:26 | 显示全部楼层

装修开工第一锤应该敲在要拆除的墙体的墙角(即拐角)上,象征一锤定音的意思,也是新房动土的一种表示方式。
IMG_2504.JPG
回复 支持 反对

使用道具 举报

 楼主| 发表于 2021-7-15 10:46:02 | 显示全部楼层

客厅原始结构
IMG_2505.JPG

IMG_2506.JPG

IMG_2507.JPG

IMG_2508.JPG

IMG_2509.JPG
回复 支持 反对

使用道具 举报

 楼主| 发表于 2021-7-15 10:46:45 | 显示全部楼层

客厅对角原始结构
IMG_2510.JPG

IMG_2511.JPG

IMG_2512.JPG

IMG_2513.JPG

IMG_2514.JPG
回复 支持 反对

使用道具 举报

 楼主| 发表于 2021-7-15 10:48:06 | 显示全部楼层

餐厅原始结构
IMG_2515.JPG

IMG_2516.JPG

IMG_2517.JPG

IMG_2518.JPG

IMG_2519.JPG
回复 支持 反对

使用道具 举报

 楼主| 发表于 2021-7-15 10:49:01 | 显示全部楼层

餐厅对角原始结构
IMG_2520.JPG

IMG_2521.JPG

IMG_2522.JPG

IMG_2523.JPG

IMG_2524.JPG
回复 支持 反对

使用道具 举报

 楼主| 发表于 2021-7-15 10:49:48 | 显示全部楼层

厨房原始结构
IMG_2525.JPG

IMG_2526.JPG

IMG_2528.JPG

IMG_2529.JPG

IMG_2530.JPG
回复 支持 反对

使用道具 举报

您需要登录后才可以回帖 登录 | 立即注册

本版积分规则

全国统一客服电话
0570-8028505

24x7小时免费咨询

  • 官方在线客服

    QQ客服:小西

    点击交谈

    QQ客服:良子

    点击交谈

    QQ客服:闵月

    点击交谈
  • 衢州市柯城区财富中心3号楼2楼

  • 衢州格堂装饰有限公司

  • 扫一扫关注官方微信

    获取一手特惠信息

快速回复 返回顶部 返回列表