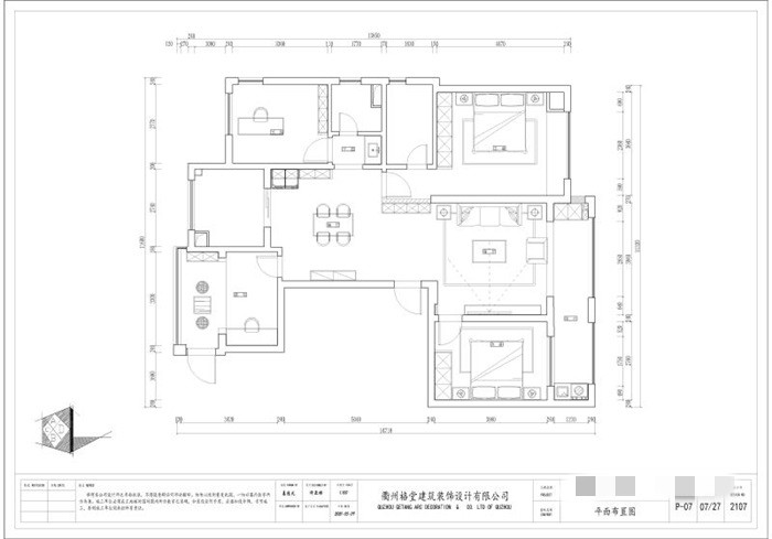
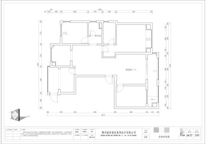
[衢州] 壹号院4-1-21#130㎡ 日式——璞之华 |
|
璞之华
格堂装饰为您全程记录装修全过程! 设计说明
美,最终是沉于时光的产物,它可以赐予、创造和完善生命的状态,时间在它的引导之下,被定格为一个个难以复刻的瞬间。而当我们走进空间的那个瞬间,即能被设计所传达的生活方式与艺术情感所感染,何必在意当下流行的风吹草动,空间气韵在自由流动的超然形态下,不囿于某一种边界,而是如此亲切可及的生活之美。
更多信息
|
| |


在线客服
微信客服
关注有礼