• 手机版

    扫码体验手机版

  • 微信公众号

    扫码关注公众号

登录注册
游客您好
第三方账号登陆

[衢州] 观棠府13-1-3#94.6㎡ 现代——纯粹空间

[复制链接]
发表于 2021-5-20 14:42:41 | 显示全部楼层 |阅读模式
纯粹空间

格堂装饰为您全程记录装修全过程!

小区名称
观棠府
房屋面积
94.6㎡
户型结构
套房
装修风格
现代
装修方式
全包
装修造价
查看请联系客服万元
设计师
王工
项目经理
彭工
装修公司
格堂装饰
完工实景
完工实景
水电全景
水电全景
VR全景
VR全景
设计说明
纯粹的空间,应该是简单而美好的,有光,有质感,有伸手可及触摸的到的温度,没有任何多余而繁杂的修饰。
更多信息

效果图
图片5.png

图片4.png

图片6.png
回复

使用道具 举报

 楼主| 发表于 2021-5-20 14:43:05 | 显示全部楼层

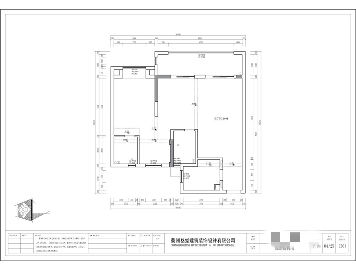
原始结构图
图片2.png
回复 支持 反对

使用道具 举报

 楼主| 发表于 2021-5-20 14:43:23 | 显示全部楼层

平面布置图
图片3.png
回复 支持 反对

使用道具 举报

 楼主| 发表于 2021-5-20 14:44:46 | 显示全部楼层

开工前准备工作,先要做好哦!
IMG_9325.JPG
大门保护到位,防止磕碰哦!
IMG_9335.JPG

IMG_9336.JPG
回复 支持 反对

使用道具 举报

 楼主| 发表于 2021-5-20 14:45:21 | 显示全部楼层

门槛也保护到位,防止磕碰哦!
IMG_9334.JPG
回复 支持 反对

使用道具 举报

 楼主| 发表于 2021-5-20 14:46:14 | 显示全部楼层

临时马桶安装到位,方便师傅使用,要讲究卫生哦!
IMG_9320.JPG

IMG_9321.JPG
回复 支持 反对

使用道具 举报

 楼主| 发表于 2021-5-20 14:47:16 | 显示全部楼层

水管用格堂专用保护盖保护,防止砂石堵塞管道。

IMG_9319.JPG
回复 支持 反对

使用道具 举报

 楼主| 发表于 2021-5-20 14:47:54 | 显示全部楼层

煤气表也要保护起来,防止磕碰哦!
IMG_9323.JPG
回复 支持 反对

使用道具 举报

 楼主| 发表于 2021-5-20 14:48:37 | 显示全部楼层

准备就绪,就等开工吉时啦!
IMG_9327.JPG

IMG_9328.JPG

IMG_9329.JPG
回复 支持 反对

使用道具 举报

 楼主| 发表于 2021-5-20 14:50:12 | 显示全部楼层

吉时已到,恭祝业主大人,开工大吉!
IMG_9353.JPG
回复 支持 反对

使用道具 举报

您需要登录后才可以回帖 登录 | 立即注册

本版积分规则

全国统一客服电话
0570-8028505

24x7小时免费咨询

  • 官方在线客服

    QQ客服:小西

    点击交谈

    QQ客服:良子

    点击交谈

    QQ客服:闵月

    点击交谈
  • 衢州市柯城区财富中心3号楼2楼

  • 衢州格堂装饰有限公司

  • 扫一扫关注官方微信

    获取一手特惠信息

快速回复 返回顶部 返回列表