• 手机版

    扫码体验手机版

  • 微信公众号

    扫码关注公众号

登录注册
游客您好
第三方账号登陆

[衢州] 悦澜湾3-2-5#㎡105现代——介壳

[复制链接]
发表于 2021-5-9 16:40:53 | 显示全部楼层 |阅读模式
介壳

格堂装饰为您全程记录装修全过程!

小区名称
悦澜湾
房屋面积
105㎡
户型结构
套房
装修风格
现代
装修方式
半包
装修造价
查看请联系客服万元
设计师
毛工
项目经理
周工
装修公司
格堂装饰
完工实景
完工实景
水电全景
水电全景
VR全景
VR全景
设计说明
“壳”是表皮。而动与静、虚与实、素简与丰饶、清醒和恍惚等无限的空间想象则在这个家的内部碰撞营织,微隙间气息婉转而漫长,叙写多元而多样的生活。
更多信息

效果图
IMG_6622.JPG

IMG_6623.JPG
回复

使用道具 举报

 楼主| 发表于 2021-5-9 16:41:57 | 显示全部楼层

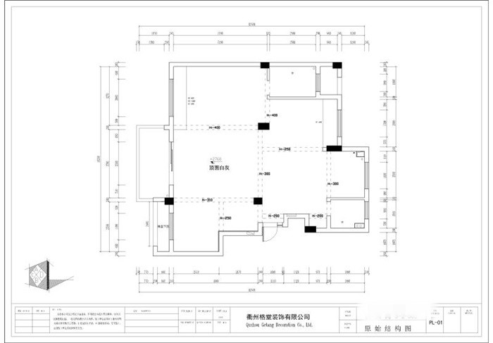
原始结构图
IMG_6620.JPG
回复 支持 反对

使用道具 举报

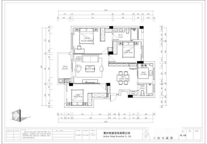
 楼主| 发表于 2021-5-9 16:42:17 | 显示全部楼层

平面布置图
IMG_6621.JPG
回复 支持 反对

使用道具 举报

 楼主| 发表于 2021-5-9 16:43:53 | 显示全部楼层

项目经理正在做,开工前的准备工作哦!
IMG_5388.JPG

IMG_5390.JPG

IMG_5392.JPG

IMG_5395.JPG
回复 支持 反对

使用道具 举报

 楼主| 发表于 2021-5-9 16:44:53 | 显示全部楼层

师傅正在保护煤气表,防止磕碰哦!
IMG_5391.JPG

IMG_5393.JPG
回复 支持 反对

使用道具 举报

 楼主| 发表于 2021-5-9 16:46:18 | 显示全部楼层

临时马桶安装到位,方便师傅使用,要讲究卫生间哦!
IMG_5389.JPG
回复 支持 反对

使用道具 举报

 楼主| 发表于 2021-5-9 16:47:08 | 显示全部楼层

下水管用格堂专用保护盖保护,防止砂石堵塞管道。

IMG_5394.JPG

IMG_5389.JPG

IMG_5396.JPG
回复 支持 反对

使用道具 举报

 楼主| 发表于 2021-5-9 16:47:59 | 显示全部楼层

大门也要保护起来,防止磕碰哦!
IMG_5397.JPG

IMG_5413.JPG

IMG_5412.JPG
回复 支持 反对

使用道具 举报

 楼主| 发表于 2021-5-9 16:49:27 | 显示全部楼层
检查发现墙面有空鼓,需要处理。
IMG_5533.JPG

IMG_5534.JPG

IMG_5535.JPG

IMG_5536.JPG

IMG_5532.JPG



回复 支持 反对

使用道具 举报

 楼主| 发表于 2021-5-9 16:51:33 | 显示全部楼层

一切准备就绪,等待开工吉时喽!
IMG_5399.JPG

IMG_5400.JPG
回复 支持 反对

使用道具 举报

您需要登录后才可以回帖 登录 | 立即注册

本版积分规则

全国统一客服电话
0570-8028505

24x7小时免费咨询

  • 官方在线客服

    QQ客服:小西

    点击交谈

    QQ客服:良子

    点击交谈

    QQ客服:闵月

    点击交谈
  • 衢州市柯城区财富中心3号楼2楼

  • 衢州格堂装饰有限公司

  • 扫一扫关注官方微信

    获取一手特惠信息

快速回复 返回顶部 返回列表