• 手机版

    扫码体验手机版

  • 微信公众号

    扫码关注公众号

登录注册
游客您好
第三方账号登陆

[衢州] 壹号院35-#285㎡现代轻奢——:清风淡雅

[复制链接]
发表于 2021-4-30 16:44:19 | 显示全部楼层 |阅读模式
:清风淡雅

格堂装饰为您全程记录装修全过程!

小区名称
壹号院
房屋面积
285㎡
户型结构
别墅
装修风格
现代轻奢
装修方式
半包
装修造价
查看请联系客服万元
设计师
王工
项目经理
施工
装修公司
格堂装饰
完工实景
完工实景
水电全景
水电全景
VR全景
VR全景
设计说明
微风轻拂的麦田”是本案的灵感来源,怀着归家的欣喜,品读家的情怀。本案借艺术化的语言解读每个空间带来的温暖和感动,以此调动身体的感官来感受空间里的一切。
更多信息
回复

使用道具 举报

 楼主| 发表于 2021-4-30 16:44:48 | 显示全部楼层

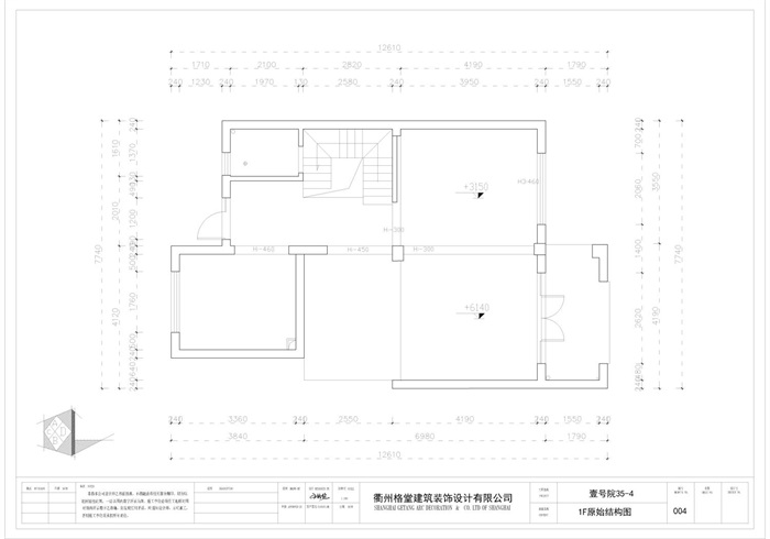
原始结构图
IMG_4648.JPG
回复 支持 反对

使用道具 举报

 楼主| 发表于 2021-4-30 16:45:12 | 显示全部楼层

平面布置图
IMG_4647.JPG
回复 支持 反对

使用道具 举报

 楼主| 发表于 2021-4-30 16:52:36 | 显示全部楼层

开工前准备工作,先要做好哦!
IMG_2806 - 副本.JPG

IMG_2807.JPG
回复 支持 反对

使用道具 举报

 楼主| 发表于 2021-4-30 16:53:15 | 显示全部楼层

煤气表也要保护起来,防止磕碰哦!
IMG_2808.JPG
回复 支持 反对

使用道具 举报

 楼主| 发表于 2021-4-30 16:54:29 | 显示全部楼层

临时马桶安装到位,方便师傅使用,要讲究卫生哦!
IMG_2809.JPG

IMG_2810.JPG
回复 支持 反对

使用道具 举报

 楼主| 发表于 2021-4-30 16:55:33 | 显示全部楼层

准备就绪,就等开工吉时喽!
IMG_2813.JPG
回复 支持 反对

使用道具 举报

 楼主| 发表于 2021-4-30 16:56:14 | 显示全部楼层

吉时已到,恭祝业主大人,开工大吉!
IMG_2821.JPG
回复 支持 反对

使用道具 举报

 楼主| 发表于 2021-4-30 16:57:55 | 显示全部楼层

开工第一锤,由业主大人,亲自来哦!
IMG_2825.JPG
回复 支持 反对

使用道具 举报

 楼主| 发表于 2021-4-30 16:58:52 | 显示全部楼层

项目经理和设计师正在沟通,准备墙面拆改放样。
IMG_2814.JPG

IMG_2815.JPG

IMG_2817.JPG

IMG_2819.JPG
回复 支持 反对

使用道具 举报

您需要登录后才可以回帖 登录 | 立即注册

本版积分规则

全国统一客服电话
0570-8028505

24x7小时免费咨询

  • 官方在线客服

    QQ客服:小西

    点击交谈

    QQ客服:良子

    点击交谈

    QQ客服:闵月

    点击交谈
  • 衢州市柯城区财富中心3号楼2楼

  • 衢州格堂装饰有限公司

  • 扫一扫关注官方微信

    获取一手特惠信息

快速回复 返回顶部 返回列表