• 手机版

    扫码体验手机版

  • 微信公众号

    扫码关注公众号

登录注册
游客您好
第三方账号登陆

[衢州] 通策兰堡20-1-110#86㎡现代——对偶

[复制链接]
发表于 2021-4-22 16:10:14 | 显示全部楼层 |阅读模式
对偶

格堂装饰为您全程记录装修全过程!

小区名称
通策兰堡
房屋面积
86㎡
户型结构
套房
装修风格
现代
装修方式
全包
装修造价
查看请联系客服万元
设计师
王工
项目经理
郑工
装修公司
格堂装饰
完工实景
完工实景
水电全景
水电全景
VR全景
VR全景
设计说明
相比传统家庭氛围,
我们更希望“家”是一处独立的私密空间,
每一处的设计均围绕着自己的生活方式而展开。
原本86m2空间并不宽敞,
简洁的黑白灰带来神秘、含蓄的空间感受
更多信息

回复

使用道具 举报

 楼主| 发表于 2021-4-22 16:14:04 | 显示全部楼层
效果图


微信图片_20210422155415.jpg


微信图片_202104221554151.jpg
回复 支持 反对

使用道具 举报

 楼主| 发表于 2021-4-22 16:14:27 | 显示全部楼层
本帖最后由 格堂小范 于 2021-4-22 16:18 编辑

原始结构图


图片1.png


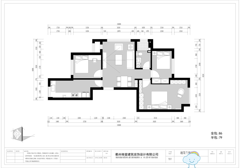
平面布置图


图片2.png
回复 支持 反对

使用道具 举报

 楼主| 发表于 2021-4-22 16:19:10 | 显示全部楼层
施工之前瓷砖保护


微信图片_202104221554152.jpg


微信图片_202104221554153.jpg



微信图片_202104221554154.jpg




微信图片_202104221554155.jpg
回复 支持 反对

使用道具 举报

 楼主| 发表于 2021-4-22 16:21:36 | 显示全部楼层
下水管  煤气表  保护

微信图片_202104221554157.jpg


微信图片_202104221554156.jpg
回复 支持 反对

使用道具 举报

 楼主| 发表于 2021-4-22 16:23:09 | 显示全部楼层
施工之前先验房


微信图片_202104221554158.jpg


微信图片_202104221554159.jpg


微信图片_2021042215541510.jpg



微信图片_2021042215541511.jpg



微信图片_2021042215541512.jpg
回复 支持 反对

使用道具 举报

 楼主| 发表于 2021-4-22 16:27:58 | 显示全部楼层
验房


微信图片_2021042215541514.jpg

微信图片_2021042215541515.jpg


微信图片_2021042215541513.jpg



微信图片_2021042215541516.jpg



微信图片_2021042215541517.jpg
回复 支持 反对

使用道具 举报

 楼主| 发表于 2021-4-22 16:28:20 | 显示全部楼层
验房记录单

微信图片_2021042215541518.jpg
回复 支持 反对

使用道具 举报

 楼主| 发表于 2021-4-22 16:28:48 | 显示全部楼层
开工准备


微信图片_2021042215541519.jpg
回复 支持 反对

使用道具 举报

 楼主| 发表于 2021-4-22 16:38:46 | 显示全部楼层
开工大吉


微信图片_2021042215541520.jpg

装修开工第一锤应该由业主敲在要拆除的墙体的墙角(即拐角)上,象征一锤定音的意思,也是新房动土的一种表示方式。

微信图片_2021042215541521.jpg
回复 支持 反对

使用道具 举报

您需要登录后才可以回帖 登录 | 立即注册

本版积分规则

全国统一客服电话
0570-8028505

24x7小时免费咨询

  • 官方在线客服

    QQ客服:小西

    点击交谈

    QQ客服:良子

    点击交谈

    QQ客服:闵月

    点击交谈
  • 衢州市柯城区财富中心3号楼2楼

  • 衢州格堂装饰有限公司

  • 扫一扫关注官方微信

    获取一手特惠信息

快速回复 返回顶部 返回列表